Kaltmiete: 1.600 €
Nebenkosten: voraussichtl. 180 €
Wohnfläche: ca. 160 m² (+ ca. 30 m² ausgebautes Dachgeschoss - individuell nutzbar)
Zimmer: 5 + Einzimmerwohnung
Bezugsfrei ab: Frühjahr 2026
Ort: Müglitztal OT Schmorsdorf
Kaution: 3 Nettokaltmieten
Objektbeschreibung:
Willkommen in Ihrem neuen Zuhause! Dieses energetisch kernsanierte, energieeffiziente Einfamilienhaus mit separater Einzimmerwohnung bietet modernen Wohnkomfort in ländlich-idyllischer Lage in Schmorsdorf – perfekt für Familien, Mehrgenerationenwohnen oder Wohnen & Arbeiten unter einem Dach.
Auf ca. 160 m² Wohnfläche erwartet Sie zeitgemäßer und nachhaltiger Wohnkomfort: Fußbodenheizung, effiziente Wärmepumpe, Mieterstrom aus der hauseigenen Photovoltaikanlage, und eine moderne Lüftungsanlage, dazu ein großzügiger Garten mit Terrasse zur alleinigen Nutzung. Weiterhin steht ein großes, ausgebautes und beheiztes Dachgeschoss zur individuellen Nutzung zur Verfügung.
Erstbezug nach Kernsanierung, EFH mit Einzimmerwohnung und Garten
Schmorsdorf 1,
01809 Müglitztal
Auf Karte anzeigen
Infos
| Haustyp | Einfamilienhaus |
|---|---|
| Etagenzahl | 2 |
| Wohnfläche ca. | 160 m2 |
| Grundstücksfläche | 500 m2 |
| Bezugsfrei ab | 1.5.2026 |
| Zimmer | 6 |
| Schlafzimmer | 4 |
| Badezimmer | 3 |
| Haustiere | Ja |
| Garage/Stellplatz | Außenstellplatz |
| Anzahl Garage/Stellplatz | 3 |
Kosten
| Kaltmiete |
1.600 € |
|---|---|
| Nebenkosten | + 180 € |
| Heizkosten | keine Angabe |
| Gesamtmiete | 1.780 € (zzgl. Heizkosten) |
| Kaution o. Genossenschaftsanteile | 4.800,00 |
Weiter mieten oder doch kaufen?
Wer in Miete wohnt, überweist dem Vermieter im Laufe der Jahre hohe Summen, die sich
auch in die eigenen vier Wände investieren lassen könnten.
Bausubstanz & Energieausweis
| Letzte Sanierung | 2025 |
|---|---|
| Objektzustand | Erstbezug nach Sanierung |
| Qualität der Austattung | Normal |
| Heizungsart | Wärmepumpe |
| Wesentliche Energieträger | Solarheizung, Strom |
| Energieausweis | liegt zur Besichtigung vor |
Beschreibung des Objekts
Ausstattung
Ausstattung:
• Erstbezug nach vollständiger Kernsanierung (2025/2026)
• EFH mit separater barrierearmer Einzimmerwohnung (eigener Hauseingang) – ideal für Familienangehörige, Gäste, Au-pair oder Home-Office
• Effizienzhaus 70 EE – energieeffizient, sehr geringe und stabile Nebenkosten:
o Wärmepumpenheizung
o Fußbodenheizung in allen Etagen
o Außen- und Innendämmung der Wände
o Mieterstrom aus PV-Anlage – Strom günstiger als vom Stromversorger
o Lüftungsanlage mit Wärmerückgewinnung und Luftfilter – hoher Wohnkomfort & gesundes Raumklima
• Großzügiges, beheiztes Dachgeschoss
• 3 Tageslichtbäder mit DU/WC und 1 Badewanne
• Netzwerkdoppeldosen in den einzelnen Räumen
• Große Wohnküche mit Zugang zur Terrasse
• Eigener Garten
• 3 PKW-Stellplätze direkt am Haus, davon 1 überdacht im Carport
• Wallbox vorbereitet
• Glasfaseranschluss – demnächst verfügbar
• Schuppen vorhanden (aktuell noch nicht renoviert)
Lage
Lage:
• Ruhige, naturnahe Lage in Nachbarschaft zum Naturdenkmal „Schmorsdorfer Linde“ mit Lindenmuseum „Clara Schumann“
• Gute Erreichbarkeit mit PKW – Dresden ist in wenigen Minuten erreichbar:
o Autobahn A17: ca. 8 Minuten
o Kaufpark Nickern: ca. 13 Minuten
o Hauptbahnhof Dresden: ca. 20 Minuten
o Nächstgelegener Bahnhof Weesenstein: 6 Minuten
o Schulbusverbindung nach Dohna, Heidenau und Mühlbach
• Bäcker, Gasthof, Schloss und Naturbühne im Nachbarort Maxen (ca. 2 km)
• Ausflugsziele in der näheren Umgebung: Müglitztal mit Schloss Weesenstein und Uhrenstadt Glashütte, Elbtal und Sächsische Schweiz, Wintersport- und Wanderregion Erzgebirge
Sonstige Angaben
Sonstiges:
• Einbauküchen können auf Wunsch des Mieters gegen einen entsprechenden Mietaufschlag vom Vermieter eingebaut werden
• Haustiere nach Absprache möglich
• Nichtraucher erwünscht
Mietpreis:
Kaltmiete: 1.600 €
Nebenkosten: ca. 180 €
Die Kosten für die Müllabfuhr sind in der o.g. Nebenkostenvorauszahlung nicht enthalten und sind direkt an den Zweckverband zu entrichten.
Für die Stromversorgung (Haushaltsstrom, Warmwasserbereitung und Heizung über Wärmepumpe) bieten wir als Vermieter ein Mieterstrommodell an. Da der Strom zum Teil mit der hauseigenen PV-Anlage erzeugt wird, kann der Strom zu einem besonders günstigen Preis angeboten werden, der unter dem Tarif des günstigsten Stromanbieters liegt.
Interesse geweckt?
Kontaktieren Sie uns gerne für weitere Informationen oder einen Besichtigungstermin!
Telefonnummer: 0162 9891965
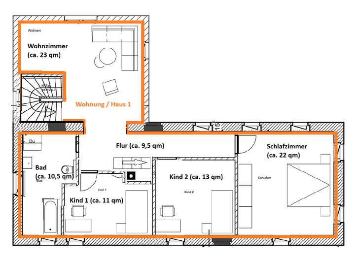
Da die Sanierungsarbeiten noch voll im Gange sind, können aktuell nur die Grundrisse zur Verfügung gestellt werden. Weitere Fotos werden parallel zum Sanierungsfortschritt ergänzt.
Grundriss
Grundriss OG
>
>
Grundriss_DG
>
>
Grundriss_EG
>
>
Adresse
Schmorsdorf 1, 01809 Müglitztal
Interessante Orte
Preis- und Lageinformationen
Preistrend für Bestandsimmobilien in Müglitztal