Zum Hauptinhalt springen
1/20
2/20
3/20
4/20
5/20
6/20
7/20
8/20
9/20
10/20
11/20
12/20
13/20
14/20
15/20
16/20
17/20
18/20
19/20
20/20
Junge erwachsene Frau in urbaner Umgebung, in die Ferne schauend. Mit Angebot zu Tagesgeldkonto im Overlay.
Tagesgeldkonto
Neu: jetzt mit 1,00% Zinsen p.a.
Sonderzinsen sichern!

4-Zimmer Loftwohnung mit großer Dachterrasse im Zentrum von Erlangen

Hauptstraße 75, 91054 Erlangen
Auf Karte anzeigen
Logo ImmoScout24 Logo ImmoScout24

Infos

Wohnungskategorie Dachgeschoss
Etage 4 von 4
Wohnfläche ca. 151 m2
Nutzfläche 171 m2
Bezugsfrei ab 1.1.2026
Zimmer 4
Schlafzimmer 3
Badezimmer 1
Haustiere Ja

Kosten

Kaltmiete 1.930 €
Nebenkosten + 300 €
Heizkosten in Nebenkosten enthalten
Gesamtmiete 2.230 €
Kaution o. Genossenschaftsanteile 4500

Weiter mieten oder doch kaufen?

Wer in Miete wohnt, überweist dem Vermieter im Laufe der Jahre hohe Summen, die sich auch in die eigenen vier Wände investieren lassen könnten.
In Ihrem Bundesland müssen Sie mit % Nebenkosten rechnen. Diese werden von dem finalen Betrag abgezogen.

Ihr Ergebnis

Mit diesen Zahlen können wir nicht rechnen.
Glückwunsch!
Sie können sich Ihr Traumzuhause im Wert von 308.894 € leisten!
Bitte geben Sie ein höheres Eigenkapital an. In der aktuell von Ihnen eingegebenen Konstellation sind die angenommenen Nebenkosten höher als das von Ihnen eingebrachte Eigenkapital.
*Basierend auf einem Zinssatz von % / % anfängliche Tilgung
Der Rechner soll Sie bei der Beantwortung der Frage: „Wie viel Haus kann ich mir eigentlich leisten?“ unterstützen. Das Ergebnis wird auf Grundlage der von Ihnen eingegebenen Daten und angenommenen pauschalisierten Werten errechnet. Für eine auf Sie zugeschnittene Aussage empfehlen wir Ihnen eine persönliche Beratung.

Details zur Berechnung

Bausubstanz & Energieausweis

Baujahr 1980
Letzte Sanierung 2025
Objektzustand Gepflegt
Qualität der Austattung Gehoben
Heizungsart Zentralheizung
Wesentliche Energieträger Gas, Strom
Energieausweis liegt vor
Energieausweistyp Verbrauchsausweis
Energie­ver­brauchs­kennwert 157,0 kWh/(m²*a)
Energieeffizienzklasse E
157,0 kWh/(m²*a)

Energieeffizienzklasse E

  • A+
  • A
  • B
  • C
  • D
  • E
  • F
  • G
  • H
  • 0
  • 25
  • 50
  • 75
  • 100
  • 125
  • 150
  • 175
  • 200
  • 225
  • >250

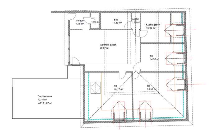
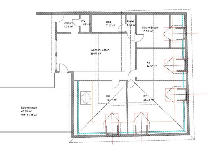
Grundriss

Wohnzimmer Wohnzimmer >

Adresse

Hauptstraße 75, 91054 Erlangen

Interessante Orte

Bäckereien
Schulen
Ärzte

Preis- und Lageinformationen

Preistrend für Bestandsimmobilien in Zentrum
Sept. 2022 Sept. 2023 Sept. 2024 Sept. 2025 11,67 €/m² 12,17 €/m² 4,28 % 5,18 %

Dieser Zeitraum ist nur für eingeloggte User sichtbar.

Jetzt einloggen

Ansprechpartner