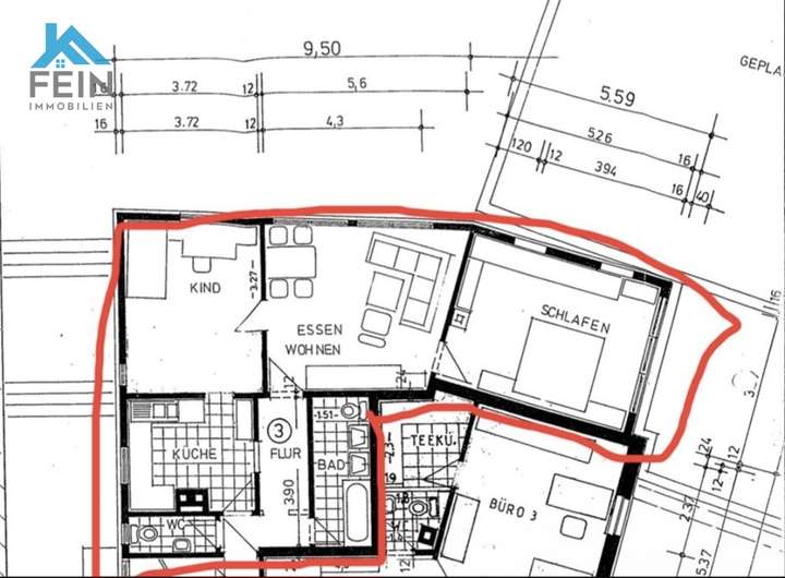
Diese helle und gut geschnittene 3,5-Zimmer-Wohnung befindet sich im 3. Obergeschoss eines gepflegten Mehrfamilienhauses und bietet ein angenehmes Wohnambiente mit durchdachter Raumaufteilung.
Der großzügige Wohn- und Essbereich schafft viel Platz für Wohnen und Alltag, während die separaten Zimmer flexibel als Schlafzimmer, Kinderzimmer oder Homeoffice genutzt werden können.
Große Fenster sorgen für eine freundliche Atmosphäre, zusätzliche Abstellflächen erhöhen den Wohnkomfort.
Ein Kellerraum sowie ein Tiefgaragenstellplatz runden das Angebot ab.
Infos
| Wohnungskategorie | Etagenwohnung |
|---|---|
| Etage | 3 von |
| Wohnfläche ca. | 84 m2 |
| Bezugsfrei ab | Sofort |
| Zimmer | 3 |
| Schlafzimmer | 2 |
| Badezimmer | 1 |
Kosten
| Kaltmiete |
1.300 € |
|---|---|
| Nebenkosten | + 280 € |
| Heizkosten | keine Angabe |
| Gesamtmiete | 1.580 € (zzgl. Heizkosten) |
| Kaution o. Genossenschaftsanteile | 3750 |
Weiter mieten oder doch kaufen?
Wer in Miete wohnt, überweist dem Vermieter im Laufe der Jahre hohe Summen, die sich
auch in die eigenen vier Wände investieren lassen könnten.
Bausubstanz & Energieausweis
| Baujahr | 1900 |
|---|---|
| Objektzustand | Gepflegt |
| Heizungsart | Zentralheizung |
| Wesentliche Energieträger | Gas |
Beschreibung des Objekts
Ausstattung
ca. 84 m² Wohnfläche
3,5 Zimmer
Großzügiger Wohn- und Essbereich
Einbauküche
Badezimmer mit moderner, ebenerdiger Dusche
Separates Gäste-WC
Praktischer Abstellraum
Kellerraum inklusive
Tiefgaragenstellplatz vorhanden
Gepflegtes Mehrfamilienhaus
Ruhige Wohnung im oberen Geschoss
Lage
Die Wohnung liegt in einer attraktiven Wohngegend von Ludwigsburg, die sich durch eine gute Infrastruktur und kurze Wege auszeichnet.
Einkaufsmöglichkeiten, Schulen, Kindergärten sowie medizinische Versorgung befinden sich in der Nähe.
Der öffentliche Nahverkehr ist gut erreichbar, ebenso die Anbindung an die Innenstadt und die umliegenden Stadtteile.
Zahlreiche Freizeit- und Erholungsmöglichkeiten sowie eine gute Verkehrsanbindung in Richtung Stuttgart machen die Lage besonders attraktiv.
Sonstige Angaben
Gerne können wir Ihnen bei einer Besichtigung der Immobilie mehr präsentieren.
Machen Sie sich ein eigenes Bild von einer zentralen und ruhigen Wohnung.
Über das Kontaktformular können sie gerne einen unverbindlichen Besichtigungstermin mit uns vereinbaren.
Um ihre Anfrage bearbeiten zu können, bitten wir sie bei Kontaktaufnahme ihre VOLLSTÄNDIGE Adresse und Telefonnummer anzugeben.
Adresse
Schorndorfer Straße 57, 71638 Ludwigsburg
Interessante Orte
Preis- und Lageinformationen
Preistrend für Bestandsimmobilien in Ludwigsburg