Dieses gepflegte Einfamilienhaus aus dem Baujahr 1989 bietet mit ca. 120 m² Wohnfläche und fünf Zimmern ausreichend Platz für Familien oder Paare mit erhöhtem Platzbedarf. Das Haus befindet sich auf einem ca. 331 m² großen Grundstück und überzeugt durch eine durchdachte Raumaufteilung mit klarer Trennung von Gemeinschafts- und Rückzugsbereichen.
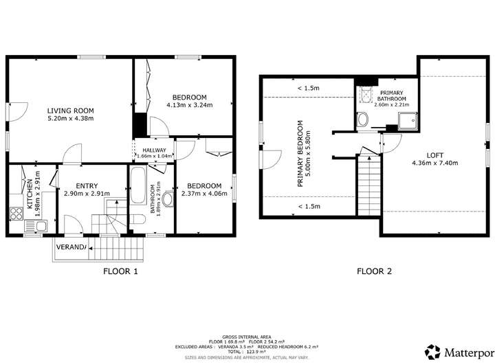
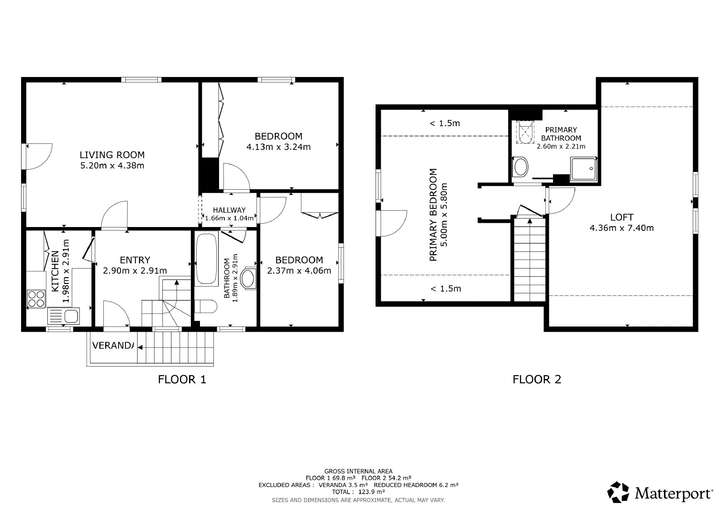
Das Haus erstreckt sich über das Erdgeschoss sowie ein ausgebautes Dachgeschoss und ist voll unterkellert.
Im Erdgeschoss gelangt man über einen kleinen Flurbereich mit Platz für eine Garderobe in das großzügige und helle Wohnzimmer. Von hier aus besteht direkter Zugang zur Terrasse und in den Garten, was den Wohnbereich besonders einladend macht. Die angrenzende Küche ist funktional ausgestattet und bereits mit einer Einbauküche versehen.
Ebenfalls im Erdgeschoss befinden sich ein Badezimmer sowie zwei weitere Zimmer, die flexibel als Kinderzimmer, Gästezimmer oder Büro genutzt werden können. Damit eignet sich diese Ebene ideal als gemeinschaftlicher Wohn- und Lebensbereich.
Das Dachgeschoss verfügt über zwei großzügige Zimmer sowie ein weiteres Badezimmer. Diese Etage bietet sich besonders als privater Rückzugsbereich an, etwa für Schlafzimmer. Zusätzlich steht hier ein kleiner Balkon zur Verfügung, der auch im oberen Geschoss einen Außenbezug ermöglicht.
Der Keller bietet viel Abstellfläche und eignet sich zudem ideal für Hobby- oder Lagerräume.
Das Einfamilienhaus ist mit einer modernen Gasheizung in Brennwerttechnik ausgestattet, die für eine effiziente und wirtschaftliche Wärmeversorgung sorgt. Der energetische Zustand des Gebäudes ist der Energieeffizienzklasse E zugeordnet.
Der Gesamtzustand des Hauses ist gepflegt und zeitgemäß, sodass ein sofortiger Bezug ohne größere Maßnahmen möglich ist.
Das Haus eignet sich ideal für Familien mit Kindern sowie für Paare mit Platzbedarf.
Haustiere sind ausdrücklich erlaubt, was das Objekt besonders attraktiv für Tierhalter macht.
Kommen Sie bei Interesse gerne auf uns zu!
Familientraum in ruhiger Wohnlage!
74821 Mosbach
Die vollständige Adresse der Immobilie erhalten Sie vom Anbieter.
Auf Karte anzeigen
Die vollständige Adresse der Immobilie erhalten Sie vom Anbieter.
Infos
| Haustyp | Einfamilienhaus |
|---|---|
| Etagenzahl | 1 |
| Wohnfläche ca. | 120 m2 |
| Nutzfläche | 50 m2 |
| Grundstücksfläche | 331 m2 |
| Bezugsfrei ab | ab 01.02.2026 |
| Zimmer | 5 |
| Schlafzimmer | 4 |
| Badezimmer | 2 |
| Haustiere | Ja |
| Garage/Stellplatz | Außenstellplatz |
| Anzahl Garage/Stellplatz | 2 |
Kosten
| Kaltmiete |
1.625 € |
|---|---|
| Nebenkosten | + 100 € |
| Heizkosten | keine Angabe |
| Gesamtmiete | 1.725 € (zzgl. Heizkosten) |
| Kaution o. Genossenschaftsanteile | 3.250 |
Weiter mieten oder doch kaufen?
Wer in Miete wohnt, überweist dem Vermieter im Laufe der Jahre hohe Summen, die sich
auch in die eigenen vier Wände investieren lassen könnten.
Bausubstanz & Energieausweis
| Baujahr | 1989 |
|---|---|
| Objektzustand | Gepflegt |
| Heizungsart | Zentralheizung |
| Wesentliche Energieträger | Gas |
Beschreibung des Objekts
Lage
Nachfolgend die Entfernungen zu den relevantesten Orten in der Umgebung:
- Mosbach Innenstadt: ca. 2,5 km – ca. 5 Minuten mit dem Auto, ca. 10 Minuten mit dem Fahrrad
- Supermärkte (z. B. REWE, EDEKA): ca. 1,5–2,0 km – ca. 4–6 Minuten Fahrzeit
- Bäckereien & kleinere Geschäfte: im Umkreis von ca. 1–2 km
- Kindergarten: ca. 1,0–1,5 km – ca. 3–5 Minuten mit dem Auto
- Grundschule: ca. 1,5 km – ca. 5 Minuten Fahrzeit
- Weiterführende Schulen (Realschule, Gymnasium): ca. 2,0–3,0 km – ca. 6–8 Minuten Fahrzeit
- Ärzte & Apotheken: ca. 2,0–2,5 km – ca. 6–7 Minuten Fahrzeit
- Neckar-Odenwald-Klinikum Mosbach: ca. 3,0 km – ca. 8 Minuten mit dem Auto
- Bushaltestelle: ca. 400–600 m – fußläufig in ca. 5–8 Minuten
- Bahnhof Mosbach (Baden): ca. 3,0 km – ca. 8 Minuten Fahrzeit - Anbindung Richtung Heidelberg, Neckarelz, Osterburken
- B27: ca. 5 km – ca. 10 Minuten Fahrzeit
- A81 (Anschluss Osterburken): ca. 30 km – ca. 30 Minuten Fahrzeit
- Heidelberg: ca. 45 km – ca. 45–50 Minuten Fahrzeit
- Heilbronn: ca. 40 km – ca. 50–55 Minuten Fahrzeit
- Spazier- und Radwege: in unmittelbarer Umgebung
- Sportvereine & Freizeiteinrichtungen: innerhalb von ca. 2–4 km
Grundriss
Grundriss
>
>
Adresse
74821 Mosbach
Interessante Orte
Preis- und Lageinformationen
Preistrend für Bestandsimmobilien in Mosbach