Diese charmante 3-Zimmer-Wohnung mit ca. 81 m² Wohnfläche befindet sich im 3. Obergeschoss eines gepflegten Mehrfamilienhauses in Freital. Nach umfassender Sanierung im Jahr 2025/26 steht sie nun als Erstbezug zur Verfügung. Das Baujahr des Gebäudes ist 1926. Die Wohnung bietet ein helles und freundliches Wohnambiente mit normaler Ausstattungsqualität. Ein Badezimmer ist vorhanden. Die Beheizung erfolgt über eine moderne Brennwertgasheizung. Haustiere sind in dieser Wohnung leider nicht gestattet. Die Wohnung wird ab dem 1. April 2026 bezugsfrei.
Wenn Sie rechtzeitig zum Mietvertrag kommen, besteht die Chance, die Tapeten oder Wandfarben selbst auszuwählen und wunschgemäß ins neue Heim zu starten.
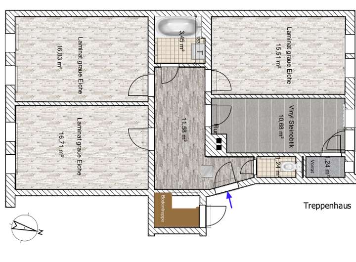
Die Bilder der Räume zeigen den alten Zustand vor der Rekonstruktion. Die Fußbodenbeläge sind bereits ausgewählt.
Erstbezug nach Sanierung: 3-Zi.-Wohnung im 3. OG in Freital
Sachsenplatz 1,
01705 Freital
Auf Karte anzeigen
Infos
| Wohnungskategorie | Etagenwohnung |
|---|---|
| Etage | 3 von 3 |
| Wohnfläche ca. | 81 m2 |
| Nutzfläche | 80 m2 |
| Bezugsfrei ab | 1.4.2026 |
| Zimmer | 3 |
| Schlafzimmer | 2 |
| Badezimmer | 1 |
| Haustiere | Nein |
Kosten
| Kaltmiete |
800 € |
|---|---|
| Nebenkosten | + 130 € |
| Heizkosten | + 75 € |
| Gesamtmiete | 1.005 € (zzgl. Heizkosten) |
| Kaution o. Genossenschaftsanteile | 2.400,00 |
Weiter mieten oder doch kaufen?
Wer in Miete wohnt, überweist dem Vermieter im Laufe der Jahre hohe Summen, die sich
auch in die eigenen vier Wände investieren lassen könnten.
Bausubstanz & Energieausweis
| Baujahr | 1926 |
|---|---|
| Letzte Sanierung | 2025 |
| Objektzustand | Vollständig Renoviert |
| Qualität der Austattung | Normal |
| Heizungsart | Gas-Heizung |
| Wesentliche Energieträger | Gas |
| Energieausweis | liegt vor |
| Energieausweistyp | Verbrauchsausweis |
| Energieverbrauchskennwert | 59,0 kWh/(m²*a) |
| Energieeffizienzklasse | C |
59,0
kWh/(m²*a)
Energieeffizienzklasse C
- A+
- A
- B
- C
- D
- E
- F
- G
- H
- 0
- 25
- 50
- 75
- 100
- 125
- 150
- 175
- 200
- 225
- >250
Beschreibung des Objekts
Ausstattung
Zum Mietobjekt gehören ein Dachboden, ein Fahrradabstellraum und der gemeinsam nutzbare Müllraum. Das Bad und die gesonderte Toi ist gefliest. Küche und Bad haben Vinylböden, alle anderen Räume sind mit neuen Laminat neu belegt.
Lage
Freital, gelegen im Landkreis Sächsische Schweiz-Osterzgebirge, bietet eine gute Infrastruktur mit zahlreichen Einkaufsmöglichkeiten, Ärzten und Schulen. Die Anbindung an den öffentlichen Nahverkehr ist durch verschiedene Buslinien gewährleistet, die eine schnelle Erreichbarkeit von Dresden und umliegenden Gemeinden ermöglichen. Zahlreiche Grünflächen und Parks laden zur Erholung ein und bieten Freizeitmöglichkeiten in der Natur.
Weitere Dokumente
Energieausweis_NWG 1Adresse
Sachsenplatz 1, 01705 Freital
Interessante Orte
Preis- und Lageinformationen
Preistrend für Bestandsimmobilien in Freital