Die Wohnung ist Teil des Wohnprojekts HEINRICH CARRÉ und liegt im Düsseldorfer Stadtteil Rath.
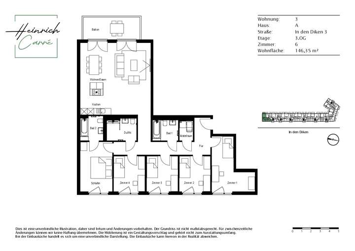
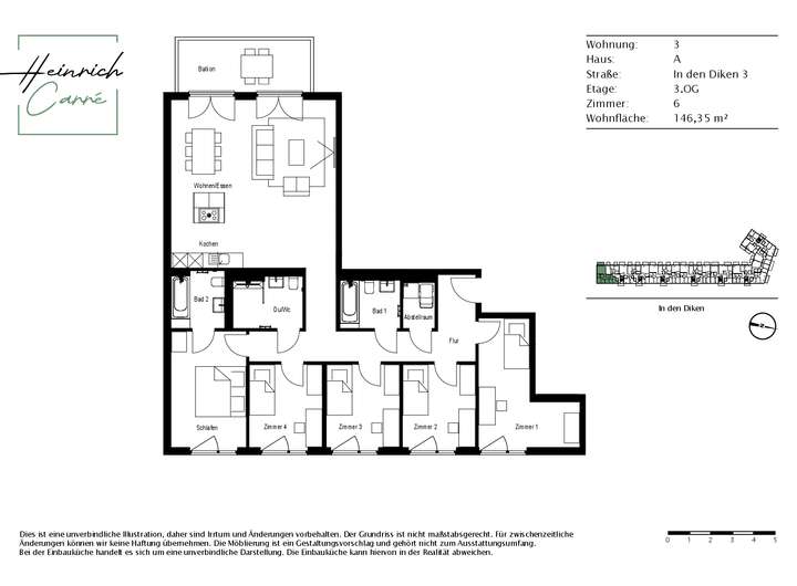
Die inserierte Wohnung verfügt über ein Schlafzimmer mit einem Wannenbad en Suite, vier weiteren Zimmern und einen Wohn- und Essbereich mit offener Küche, sowie einem Duschbad, einem Wannenbad und einem Abstellraum. Der Balkon lädt zum Verweilen ein.
Insgesamt entstanden im Heinrich Carré 97 Wohnungen und 9 Townhouses, sowie eine Tiefgarage mit 75 PKW-Stellplätzen für die Mieter. Der begrünte Innenhof bietet Sitzflächen und dient als Begegnungsort der Wohnanlage.
Ihr neues Familienzuhause: 6-Zimmer-Wohnung mit Balkon
In den Diken 3,
40472 Düsseldorf
Auf Karte anzeigen
Infos
| Wohnungskategorie | Etagenwohnung |
|---|---|
| Etage | 3 von 4 |
| Wohnfläche ca. | 146 m2 |
| Bezugsfrei ab | 16.01.2026 |
| Zimmer | 6 |
| Schlafzimmer | 5 |
| Badezimmer | 3 |
| Garage/Stellplatz | Tiefgarage |
| Anzahl Garage/Stellplatz | 1 |
Kosten
| Kaltmiete |
2.345 € |
|---|---|
| Nebenkosten | + 515 € |
| Heizkosten | in Nebenkosten enthalten |
| Gesamtmiete | 2.860 € |
| Miete für Garage/Stellplatz | 105 € |
| Kaution o. Genossenschaftsanteile | 7.035,00 |
Weiter mieten oder doch kaufen?
Wer in Miete wohnt, überweist dem Vermieter im Laufe der Jahre hohe Summen, die sich
auch in die eigenen vier Wände investieren lassen könnten.
Bausubstanz & Energieausweis
| Baujahr | 2024 |
|---|---|
| Objektzustand | Neuwertig |
| Qualität der Austattung | Gehoben |
| Heizungsart | Fußbodenheizung |
| Energieausweis | liegt vor |
| Energieausweistyp | Bedarfsausweis |
| Energieverbrauchskennwert | 48,6 kWh/(m²*a) |
| Energieeffizienzklasse | A |
48,6
kWh/(m²*a)
Energieeffizienzklasse A
- A+
- A
- B
- C
- D
- E
- F
- G
- H
- 0
- 25
- 50
- 75
- 100
- 125
- 150
- 175
- 200
- 225
- >250
Beschreibung des Objekts
Ausstattung
Modern und praktisch geschnitten bietet die Wohnung nicht nur einen hohen energetischen Standard, sondern auch eine schicke Innenausstattung.
Eine hochwertige Einbauküche, bodentiefe Fenster, Marken-Badkeramik, eine bodengleiche Dusche und ein zeitloses Wand- und Bodendesign bieten die perfekte Grundlage für eine individuelle Gestaltung der Wohnung.
- Eichenechtholzparkett in den Wohnräumen
- Hochwertige Fliesenböden in den Bädern
- zusätzlicher Handtuchheizkörper in den Bädern
- Fußbodenheizung
- Einbauküche mit Markengeräten von AEG
- Mehr-Scheiben-Isolierverglasung
- elektrisch bedienbare Rollläden
- Balkon
- Aufzug
- Gegensprechanlage
- Digitale Haustafel
- Begrünte Außenanlagen und Spielflächen
Lage
Das Wohnquartier Heinrich Quartier profitiert von der gewachsenen Infrastruktur im Viertel. Ob täglicher Einkauf oder Spielplatzbesuch, Sporttreiben oder Essengehen – alles ist unkompliziert und auf kurzen Wegen möglich. Das Bildungsangebot im Stadtteil reicht von drei Grundschulen bis zu zwei weiterführenden Schulen.
Am nahe gelegenen Bahnhof Düsseldorf-Rath hält die S-Bahn-Linie 6 (Köln-Essen). Von hier aus ist der Düsseldorfer Hauptbahnhof in nur 12 Minuten zu erreichen. Neben der Straßenbahnlinie 701, den Buslinien 730 und 776, bietet auch die Stadtbahnlinie U 72, die in unmittelbarer Nähe des Objekts hält, bequeme Mobilität innerhalb des Stadtteils und darüber hinaus.
Die Nähe zum Aaper Wald, der nicht nur puren Naturgenuss, sondern auch eine Vielzahl an Sportanlagen wie bspw. das Rather Waldstadion oder die 7-Hügel MTB BMX bietet, begeistert nicht nur Familien. Ebenso begeisternd ist die Nähe zur Düsseldorfer Innenstadt, wo man neben Shopping und Sightseeing auch das bunte Kultur- und Nachtleben genießen kann.
Sonstige Angaben
Wir bitten Sie Terminanfragen über das Kontaktformular zu senden.
Bei den Bildern handelt es sich um Bilder einer vergleichbaren Wohnung.
Wir weisen vorsorglich darauf hin, dass Leistungen des Jobcenters oder ein Wohnberechtigungsschein nicht berücksichtigt werden können.
Im Falle einer Anmietung wird mietvertraglich ein Kündigungsverzicht von 12 Monaten vereinbart.
HAFTUNGSAUSSCHLUSS:
Diese Anzeige dient nur der ersten Information und stellt kein Vertragsangebot dar. Die Anzeige begründet keine vertraglichen Ansprüche. Der Inhalt und die Angaben wurden nach bestem Wissen und Gewissen ermittelt. Für Richtigkeit und Vollständigkeit wird keine Haftung übernommen.
Grundriss
Grundriss
>
>
Adresse
In den Diken 3, 40472 Düsseldorf
Interessante Orte
Preis- und Lageinformationen
Preistrend für Bestandsimmobilien in Rath