Objektreferenz: 1040/1110/86
Die schöne 3-Zimmer-Wohnung befindet sich im 3. Obergeschoss eines neuwertigen Mehrfamilienhauses
Toll geschnittene Wohnung mit Platz für die Familie
Domstr. 70,
63067 Offenbach am Main
Auf Karte anzeigen
Infos
| Wohnungskategorie | Etagenwohnung |
|---|---|
| Etage | 3 von |
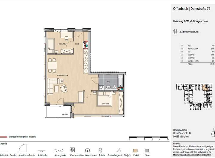
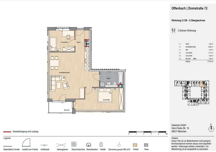
| Wohnfläche ca. | 77 m2 |
| Bezugsfrei ab | 01.01.2026 |
| Zimmer | 3 |
| Badezimmer | 1 |
Kosten
| Kaltmiete |
1.180 € |
|---|---|
| Nebenkosten | + 180 € |
| Heizkosten | + 260 € |
| Gesamtmiete | 1.620 € (zzgl. Heizkosten) |
| Kaution o. Genossenschaftsanteile | 3.538,77 € |
Weiter mieten oder doch kaufen?
Wer in Miete wohnt, überweist dem Vermieter im Laufe der Jahre hohe Summen, die sich
auch in die eigenen vier Wände investieren lassen könnten.
Bausubstanz & Energieausweis
| Baujahr | 2020 |
|---|---|
| Heizungsart | Zentralheizung |
| Wesentliche Energieträger | Fernwärme |
| Energieausweis | liegt vor |
| Energieausweistyp | Bedarfsausweis |
| Energieverbrauchskennwert | 64,5 kWh/(m²*a) |
| Energieeffizienzklasse | B |
64,5
kWh/(m²*a)
Energieeffizienzklasse B
- A+
- A
- B
- C
- D
- E
- F
- G
- H
- 0
- 25
- 50
- 75
- 100
- 125
- 150
- 175
- 200
- 225
- >250
Beschreibung des Objekts
Ausstattung
3-Zimmer-Wohnung mit Küche inkl. Einbauküche, Bad mit Badewanne und WC, Balkon, Flur, Abstellraum, Kellerraum und Kabelanschluss. Die Wohnung wird mittels Fußbodenheizung beheizt und ist mit Parkett-Böden ausgestattet.
Je nach Verfügbarkeit besteht die Möglichkeit, zusätzlich einen PKW-Stellplatz für 91,00 Euro/Monat anzumieten. Bitte sprechen Sie uns bei Interesse darauf an.
- Zusätzliche Merkmale: elektrische Rollläden, Handtuchheizkörper, Waschmaschinenanschluss vorhanden
Lage
Das Gebäude liegt genau zwischen der Domstraße 72 und der Berliner Straße.
Zahlreiche kulturelle Einrichtungen, Gastronomiebetriebe und Einkaufsmöglichkeiten bieten eine perfekte Infrastruktur. Von der Dom- bzw. Berliner Straße benötigen Sie nur wenige Minuten zum Zentrum, zum Main oder zum Büsingpark. Alle Einrichtungen des täglichen Bedarfs, wie Einkaufsmöglichkeiten, Ärzte, Schulen oder Kindergärten befinden sich in der direkten Umgebung.
Die Einbindung in das öffentliche Verkehrsnetz ist ausgezeichnet und die S-Bahnstation Ledermuseum befindet sich in unmittelbarer Nähe. Die Verkehrsanbindung durch die A3 / A 661 im Stadtgebiet ist ideal. Der Flughafen Rhein-Main ist in unter 30 Minuten erreichbar.
Sonstige Angaben
Es wird ein Staffelmietvertrag mit einer jährlichen Staffel von 2 % abgeschlossen.
Nach erfolgter Besichtigung und anschließendem Interesse bitten wir Sie, Ihre folgenden Unterlagen auf Ihrem Immomio-Profil hochzuladen:
-Kopien der letzten 3 Gehaltsabrechnungen (oder Kostenzusicherung Jobcenter / Rentennachweis)
-Farbige Ausweiskopien
Vielen Dank.
HINWEIS ZUR BEWERBUNG:
Um Ihnen den bestmöglichen Service zu bieten, können Sie sich bei uns digital bewerben. Kopieren Sie den untenstehenden Link in die Adresszeile Ihres Browsers und folgen Sie der Anleitung.
https://rdr.immomio.com/6Npb4
Grundriss
Grundriss.PNG
>
>
Adresse
Domstr. 70, 63067 Offenbach am Main
Interessante Orte
Preis- und Lageinformationen
Preistrend für Bestandsimmobilien in Stadtmitte