In Viersen-Dülken befindet sich dieser hochwertige Neubau aus dem Jahr 2025. Die Immobilie überzeugt durch ihre moderne Architektur und eine exklusive Ausstattung auf hohem Niveau. Das Haus ist vollunterkellert und verfügt über einen stilvollen Spa-Bereich, der höchsten Wohnkomfort bietet. Ein Garten ergänzt das Angebot und schafft zusätzlichen Raum für Erholung im Freien. Insgesamt handelt es sich um ein modernes Zuhause, das zeitgemäßes Wohnen mit gehobenem Anspruch verbindet.
*Hochwertiger Neubau in ruhiger Wohnlage zu vermieten*
41751 Viersen
Die vollständige Adresse der Immobilie erhalten Sie vom Anbieter.
Auf Karte anzeigen
Die vollständige Adresse der Immobilie erhalten Sie vom Anbieter.
Infos
| Haustyp | Einfamilienhaus |
|---|---|
| Etagenzahl | 3 |
| Wohnfläche ca. | 180 m2 |
| Grundstücksfläche | 315 m2 |
| Bezugsfrei ab | 01.02.2026 |
| Zimmer | 5 |
| Schlafzimmer | 4 |
| Badezimmer | 3 |
| Garage/Stellplatz | Garage |
| Anzahl Garage/Stellplatz | 3 |
Kosten
| Kaltmiete |
2.500 € |
|---|---|
| Nebenkosten | + 150 € |
| Heizkosten | keine Angabe |
| Gesamtmiete | 2.750 € (zzgl. Heizkosten) |
| Miete für Garage/Stellplatz | 100 € |
| Kaution o. Genossenschaftsanteile | 7500 |
Weiter mieten oder doch kaufen?
Wer in Miete wohnt, überweist dem Vermieter im Laufe der Jahre hohe Summen, die sich
auch in die eigenen vier Wände investieren lassen könnten.
Bausubstanz & Energieausweis
| Baujahr | 2025 |
|---|---|
| Objektzustand | Erstbezug |
| Qualität der Austattung | Luxus |
| Heizungsart | Wärmepumpe |
| Wesentliche Energieträger | Strom |
| Energieausweis | liegt zur Besichtigung vor |
Beschreibung des Objekts
Ausstattung
Dieser großzügige Neubau bietet alles, was das Herz begehrt: Mit 5 Zimmern, einer modernen Küche, 3 Dielen, 3 Bädern und einem Gäste-WC bietet dieses Zuhause viel Platz für die Familie. Ein Balkon sowie ein wunderschöner Garten laden zum Entspannen ein.
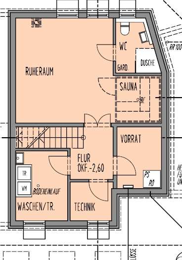
Die Immobilie ist vollunterkellert, mit einer Waschküche, einem Kellerraum und einem potenziellen Spa-Bereich. Luxuriöse Einbauten und viel Raum bieten eine perfekte Grundlage für den anspruchsvollen Lebensstil. Die Wärmepumpe mit Fußbodenheizung sorgt für angenehme Wärme und Komfort.
Zur Gartenbewässerung steht eine 10.000 L Zisterne zur Verfügung, und eine automatische Gartenbewässerung sowie ein Mähroboter erleichtern die Pflege des gepflegten Gartens. Ein Innenkamin (Gas) und ein Außenkamin (Holz) schaffen zusätzliche Gemütlichkeit.
Die hochwertigen Parkett- und Fliesenböden sowie die vom Schreiner gefertigte Einbauküche mit Quooker (Möbelserie Team 7) unterstreichen die Qualität des Hauses. Eine Terrassenüberdachung rundet das Gesamtbild ab.
Lage
Das Haus befindet sich in Viersen, einem charmanten Ort mit guter Infrastruktur. Die Umgebung bietet eine angenehme Wohnatmosphäre mit guter Anbindung an öffentliche Verkehrsmittel und Einkaufsmöglichkeiten für den täglichen Bedarf. Nahegelegene Grünflächen laden zu Freizeitaktivitäten im Freien ein und tragen zur hohen Lebensqualität bei.
Sonstige Angaben
Weitere Angebote finden Sie auf unserer Homepage www.gaden-immobilien.de
Grundriss
KG
>
>
EG
>
>
OG
>
>
DG
>
>
Adresse
41751 Viersen
Interessante Orte
Preis- und Lageinformationen
Preistrend für Bestandsimmobilien in Viersen