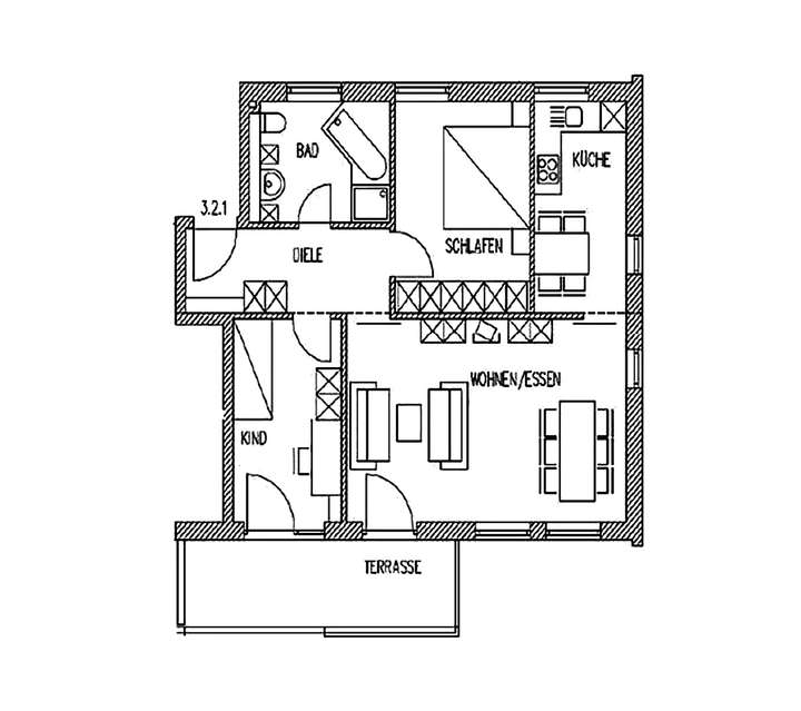
Helle 3-Zimmer-Dachgeschosswohnung im 2. OG der Mercystraße. Der durchdachte Grundriss mit großzügigem Westbalkon und hohen Decken schafft ein wohnliches, luftiges Ambiente.
Wohn-/Essbereich mit Parkett öffnet sich zum Balkon – perfekt für Feierabendsonne und entspannte Momente. Zwei weitere Zimmer eignen sich flexibel als Schlafzimmer, Kinder- oder Homeoffice. Eines der Zimmer hat ebenfalls Zugang zu dem großen Balkon. Die Küche mit Fenster bietet Platz für den täglichen Ablauf. Das Tageslichtbad punktet mit Fußbodentemperierung und Handtuchwärmer; Küche und Bad sind pflegeleicht und modern gefliest.
Zur Wohnung gehören ein gemauertes Kellerabteil, ein gemeinschaftlicher Wasch-/Trockenraum sowie ein Tiefgaragenstellplatz im Haus – mit trockener und bequemer Anbindung ins Treppenhaus. Die Anlage (überschaubare 11 Parteien) ist gepflegt und wertig. Die Nachbarschaft ist eine freundliche und ruhige Gemeinschaft.
Helle Wohnung mit hohen Decken, Balkon, Garage & tollem Schnitt, zentral & ruhig
Mercystraße 79,
85051 Ingolstadt
Auf Karte anzeigen
Infos
| Wohnungskategorie | Dachgeschoss |
|---|---|
| Etage | 2 von 2 |
| Wohnfläche ca. | 87 m2 |
| Nutzfläche | 87 m2 |
| Bezugsfrei ab | 1.2.2026 |
| Zimmer | 3 |
| Schlafzimmer | 1 |
| Badezimmer | 1 |
| Haustiere | Nach Vereinbarung |
| Garage/Stellplatz | Tiefgarage |
| Anzahl Garage/Stellplatz | 1 |
Kosten
| Kaltmiete |
1.264 € |
|---|---|
| Nebenkosten | + 200 € |
| Heizkosten | in Nebenkosten enthalten |
| Gesamtmiete | 1.464 € |
| Miete für Garage/Stellplatz | 60 € |
| Kaution o. Genossenschaftsanteile | 3.792,00 |
Weiter mieten oder doch kaufen?
Wer in Miete wohnt, überweist dem Vermieter im Laufe der Jahre hohe Summen, die sich
auch in die eigenen vier Wände investieren lassen könnten.
Bausubstanz & Energieausweis
| Objektzustand | Vollständig Renoviert |
|---|---|
| Qualität der Austattung | Gehoben |
| Heizungsart | Fernwärme |
| Wesentliche Energieträger | Fernwärme |
| Energieausweis | liegt zur Besichtigung vor |
Beschreibung des Objekts
Lage
Die Mercystraße 79 befindet sich im beliebten Stadtteil Südwest von Ingolstadt. Dieser Stadtteil zeichnet sich durch eine gute Erreichbarkeit öffentlicher Verkehrsmittel aus, darunter die S-Bahn-Linie S1 sowie die Buslinien 10 und 20. Südwest bietet eine gute Mischung aus Mehrfamilien- und Einfamilienhäusern, grünen Parks und Einkaufsmöglichkeiten in der Nähe, was ihn zu einem attraktiven Wohnort für junge Familien und Berufstätige macht.
Sonstige Angaben
Dem Mieter steht die Wahl frei, vorhandene Möbel zu nutzen oder die Wohnung unmöbliert zu übernehmen.
Geben Sie bei Interesse bitte eine Selbstauskunft ab.
Grundriss
Grundriss
>
>
Adresse
Mercystraße 79, 85051 Ingolstadt
Interessante Orte
Preis- und Lageinformationen
Preistrend für Bestandsimmobilien in Südwest