Bei diesem Reihenendhaus handelt es sich um ein modernes Gebäude mit gehobener Ausstattung. Auf insgesamt 4 Zimmern, verteilt auf 2 große Schlafzimmer, ein geräumiges Wohnzimmer und einem ausgebauten Spitzboden der als Abstellraum dient bietet das Haus ausreichend Platz für eine Familie. Das Badezimmer ist mit hochwertigen Fliesen ausgestattet und verfügt über eine moderne Dusche und einer Badewanne. Der Bodenbelag besteht aus edlem Vinylboden und Fliesen.
Im Außenbereich befindet sich ein Außenstellplatz, auf dem Sie Ihr Auto parken können. Ein zusätzlicher Abstellraum bietet Platz für Fahrräder oder Gartengeräte. Für den täglichen Komfort verfügt das Haus über ein Gäste-WC und eine moderne Einbauküche, die bereits im Mietpreis enthalten ist.
Der Garten lädt zu gemütlichen Stunden im Freien ein und bietet Raum für Spiel und Spaß für Kinder. Das Haus befindet sich in der beliebten Gemeinde Stockelsdorf und wird durch eine energiesparende Wärmepumpe beheizt. Profitieren Sie von der ruhigen und dennoch zentralen Lage und vereinbaren Sie einen Besichtigungstermin. Wir freuen uns auf Ihre Anfrage!
Top modernes Reihenendhaus in Stockelsdorf - Neuwertig - Garten
Schulweg 21,
23617 Stockelsdorf
Auf Karte anzeigen
Infos
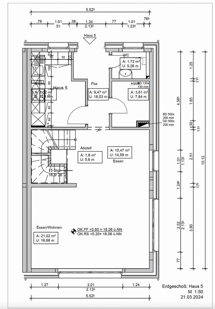
| Wohnfläche ca. | 108 m2 |
|---|---|
| Grundstücksfläche | 150 m2 |
| Bezugsfrei ab | 01.03.2026 |
| Zimmer | 4 |
| Schlafzimmer | 2 |
| Badezimmer | 1 |
| Haustiere | Nach Vereinbarung |
| Anzahl Garage/Stellplatz | 1 |
Kosten
| Kaltmiete |
2.190 € |
|---|---|
| Nebenkosten | + 200 € |
| Heizkosten | keine Angabe |
| Gesamtmiete | 2.390 € |
| Miete für Garage/Stellplatz | 90 € |
| Kaution o. Genossenschaftsanteile | 6570 |
Weiter mieten oder doch kaufen?
Wer in Miete wohnt, überweist dem Vermieter im Laufe der Jahre hohe Summen, die sich
auch in die eigenen vier Wände investieren lassen könnten.
Bausubstanz & Energieausweis
| Baujahr | 2024 |
|---|---|
| Objektzustand | Neuwertig |
| Qualität der Austattung | Gehoben |
| Heizungsart | Wärmepumpe |
| Wesentliche Energieträger | Strom |
| Energieausweis | liegt vor |
| Energieausweistyp | Bedarfsausweis |
| Energieverbrauchskennwert | 36,1 kWh/(m²*a) |
| Energieeffizienzklasse | A |
36,1
kWh/(m²*a)
Energieeffizienzklasse A
- A+
- A
- B
- C
- D
- E
- F
- G
- H
- 0
- 25
- 50
- 75
- 100
- 125
- 150
- 175
- 200
- 225
- >250
Beschreibung des Objekts
Ausstattung
- massiver Neubau in Verblendbauweise
- Süd-West Terrasse
- moderne Einbauküche
- Fußbodenheizung
- Kfz-Stellplatz
- Holztreppe in den Spitzboden
- ausgebauter Spitzboden, ausgebauter Raum
- Luft-Wärmepumpe
- Glasfaseranschluss vorbereitet
- Entkalkungsanlage
- 3-fach Verglasung
- elektr. Außenrolläden
- Gartenhaus
Lage
Schöner Wohnen in Stockelsdorf,
Diese Immobilie befindet sich in ruhiger und zentraler Lage von Stockelsdorf. Das Haus liegt in gesuchter und familienfreundlicher Lage.
Stockelsdorf zählt zu den beliebtesten Wohnorten im nahen Umkreis der Hansestadt Lübeck.
- 2 Autominuten ins Ortszentrum,
- Schulen und Kindergärten fußläufig zu erreichen
- 5 Autominuten zum Autobahnanschluß Lübeck Mitte
- Alle Einkaufsmöglichkeiten, Ärzte, etc. im Ort vorhanden und in wenigen Minuten erreichbar
Sonstige Angaben
Alle Angaben erfolgen nach Auskunft unseres Auftraggebers.
Für die Richtigkeit wird keine Gewähr übernommen.
Dieses Angebot ist freibleibend.
Für Rückfragen sowie die Vereinbarung von Besichtigungsterminen stehen wir Ihnen gerne unter 04 51- 48058911 oder 0176-2002 6733 zur Verfügung.
Weitere Objekte finden Sie auf unserer Homepage unter www.wendtcompany.de
WICHTIG:
Bei der Kontaktaufnahme per E-Mail benötigen wir generell folgende Angaben: Vor- und Nachname, vollständige Adresse, eine Telefonnummer, unter der Sie tagsüber zu erreichen sind. Wir bitten um Ihr Verständnis!
Weitere Dokumente
Energieausweis VAZ Schulweg 21Grundriss
Erdgeschoss
>
>
Obergeschoss
>
>
Dachgeschoss
>
>
Adresse
Schulweg 21, 23617 Stockelsdorf
Interessante Orte
Preis- und Lageinformationen
Preistrend für Bestandsimmobilien in Stockelsdorf