Diese hochwertige 3-Zimmer-Wohnung befindet sich im Obergeschoss eines modernen 5-Familien-Hauses in zweiter Reihe und überzeugt durch ihre ruhige sowie zentrale Lage in 63834 Sulzbach am Main. Ein großzügiger Balkon in Südausrichtung rundet das attraktive Wohnangebot ab.
Mietkonditionen:
Kaltmiete: 1.200 € monatlich
Nebenkosten: 200 € monatlich
2 Stellplätze à 25 € monatlich
Die Küche kann vom aktuellen Mieter übernommen werden
Einzug: 01.04.2026, nach Absprache auch früher möglich
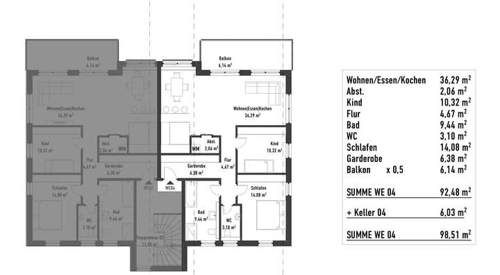
Aufteilung der Wohnung:
Badezimmer mit Tageslicht
Gäste-WC
Schlafzimmer 1
Schlafzimmer 2
Offener Wohn-, Ess- und Kochbereich
Garderobe
Flur
Südseitiger Balkon
Abstell- bzw. Speisekammer mit Anschluss für Waschmaschine und Trockner
Eigener Kellerraum mit Anschluss für Waschmaschine und Trockner
Gebäude & Technik:
Das Mehrfamilienhaus wurde in moderner, energieeffizienter Bauweise als KfW-55-Haus errichtet. Die Beheizung erfolgt über eine Luft-Wärmepumpe neuesten Standards und bietet eine kostengünstige, energiesparende sowie zukunftsorientierte Versorgung aller fünf Wohnungen.
Die 3-fach verglasten Fenster sind mit elektrischen Rollläden ausgestattet. Sämtliche Wohnräume verfügen über eine Fußbodenheizung mit Einzelraumregelung sowie eine kontrollierte Wohnraumlüftung.
Ausstattung:
Bodentiefe Fenster
Fußbodenheizung mit Einzelraumregelung
Kontrollierte Wohnraumlüftung
Begehbare Dusche und Badewanne im Tageslichtbad
Zusätzliches Gäste-WC
Hochwertige Bodenbeläge
Parkplätze direkt vor dem Haus (2 Stellplätze pro Wohnung, je 25 € monatlich)
*** Die Kaution beträgt drei Monatsmieten.
Kontaktaufnahme:
Bitte kontaktieren Sie mich schriftlich und teilen Sie mir folgende Informationen mit:
* Name, Anschrift und Telefonnummer
* Für wie viele Personen Sie die Wohnung suchen und ab wann
* In welchem Unternehmen Sie tätig sind und welche Position Sie dort ausüben
* Ob Haustiere vorhanden sind (falls ja, welche)
Ich melde mich anschließend zeitnah bei Ihnen.
Traumhafte Neubau-3-Zimmer-Wohnung mit Südbalkon
63834 Sulzbach am Main
Die vollständige Adresse der Immobilie erhalten Sie vom Anbieter.
Auf Karte anzeigen
Die vollständige Adresse der Immobilie erhalten Sie vom Anbieter.
Infos
| Wohnungskategorie | Etagenwohnung |
|---|---|
| Etage | 1 von 3 |
| Wohnfläche ca. | 92 m2 |
| Nutzfläche | 6 m2 |
| Bezugsfrei ab | 1.4.2026 |
| Zimmer | 3 |
| Schlafzimmer | 2 |
| Badezimmer | 2 |
| Haustiere | Nein |
| Garage/Stellplatz | Außenstellplatz |
| Anzahl Garage/Stellplatz | 2 |
Kosten
| Kaltmiete |
1.200 € |
|---|---|
| Nebenkosten | + 200 € |
| Heizkosten | in Nebenkosten enthalten |
| Gesamtmiete | 1.400 € |
| Miete für Garage/Stellplatz | 50 € |
| Kaution o. Genossenschaftsanteile | 3.6 |
Weiter mieten oder doch kaufen?
Wer in Miete wohnt, überweist dem Vermieter im Laufe der Jahre hohe Summen, die sich
auch in die eigenen vier Wände investieren lassen könnten.
Bausubstanz & Energieausweis
| Baujahr | 2023 |
|---|---|
| Objektzustand | Neuwertig |
| Qualität der Austattung | Gehoben |
| Heizungsart | Wärmepumpe |
| Wesentliche Energieträger | Strom |
| Energieausweis | liegt vor |
| Energieausweistyp | Bedarfsausweis |
| Energieverbrauchskennwert | 12,3 kWh/(m²*a) |
| Energieeffizienzklasse | A+ |
12,3
kWh/(m²*a)
Energieeffizienzklasse A+
- A+
- A
- B
- C
- D
- E
- F
- G
- H
- 0
- 25
- 50
- 75
- 100
- 125
- 150
- 175
- 200
- 225
- >250
Beschreibung des Objekts
Grundriss
Grundriss Wohnung
>
>
Grundriss Keller
>
>
Adresse
63834 Sulzbach am Main
Interessante Orte
Preis- und Lageinformationen
Preistrend für Bestandsimmobilien in Sulzbach am Main