Willkommen in dieser traumhaften Doppelhaushälfte in einer kleinen Anlage, welche mit einem Fokus auf Eleganz und Energieersparnis in ruhiger Lage erbaut wurde. Mit einer Wohn-/ Nutzfläche von etwa 175 m² inkl. Vollkeller bietet dieses Zuhause ausreichend Raum für die Bedürfnisse Ihrer Familie.
4 Zimmer + ein wohnlicher Raum im Kellergeschoss, Badezimmer mit Wanne und bodengleicher Dusche und, Gäste-WC, offene Küche zum Wohnzimmer und insgesamt die moderne Ausstattung bieten Ihnen ein unvergleichliches Maß an Bequemlichkeit und Luxus.
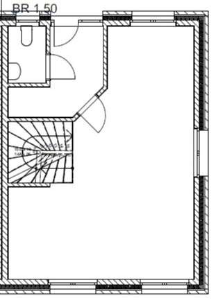
Bitte beachten Sie, dass das Badezimmer im OG während des Bau´s verändert wurde und der Grundriss des Badezimmers nicht aktuell ist.
Die Mindestmietzeit beträgt 24 Monate.
Traumhafte Doppelhaushälfte mit Wärmepumpe in idyllischer Lage
22889 Tangstedt
Die vollständige Adresse der Immobilie erhalten Sie vom Anbieter.
Auf Karte anzeigen
Die vollständige Adresse der Immobilie erhalten Sie vom Anbieter.
Infos
| Haustyp | Doppelhaushaelfte |
|---|---|
| Etagenzahl | 4 |
| Wohnfläche ca. | 125 m2 |
| Nutzfläche | 48,5 m2 |
| Grundstücksfläche | 15 m2 |
| Bezugsfrei ab | 01.02.2026 |
| Zimmer | 4 |
| Schlafzimmer | 3 |
| Badezimmer | 1 |
| Haustiere | Nach Vereinbarung |
| Garage/Stellplatz | Außenstellplatz |
| Anzahl Garage/Stellplatz | 1 |
Kosten
| Kaltmiete |
2.140 € |
|---|---|
| Nebenkosten | + 150 € |
| Heizkosten | keine Angabe |
| Gesamtmiete | 2.290 € (zzgl. Heizkosten) |
| Kaution o. Genossenschaftsanteile | 6.420 |
Weiter mieten oder doch kaufen?
Wer in Miete wohnt, überweist dem Vermieter im Laufe der Jahre hohe Summen, die sich
auch in die eigenen vier Wände investieren lassen könnten.
Bausubstanz & Energieausweis
| Baujahr | 2022 |
|---|---|
| Qualität der Austattung | Gehoben |
| Heizungsart | Wärmepumpe |
| Wesentliche Energieträger | Strom |
| Energieausweis | liegt vor |
| Energieausweistyp | Bedarfsausweis |
| Energieverbrauchskennwert | 31,0 kWh/(m²*a) |
| Energieeffizienzklasse | A |
31,0
kWh/(m²*a)
Energieeffizienzklasse A
- A+
- A
- B
- C
- D
- E
- F
- G
- H
- 0
- 25
- 50
- 75
- 100
- 125
- 150
- 175
- 200
- 225
- >250
Beschreibung des Objekts
Ausstattung
Das Haus zeichnet sich durch die erstklassige Bauweise, Ausstattung und die hohen Decken (ca. 2,55 m / auch im KG) aus. Die dreifach verglasten, zum Teil bodentiefen Fenster im Erd- und Obergeschoss sind mit elektrischen Rollläden ausgestattet, während sie gleichzeitig für optimale Wärmedämmung sorgen. Die Fußbodenheizung verwöhnt Sie mit angenehmer Wärme.
Die nahtlose Verbindung zwischen Küche (natürlich komplett ausgestattet) & Wohnbereich verleiht mehr Großzügigkeit und von hier aus haben Sie direkten Zugang zur geschützten & sonnigen Terrasse.
Das Dachgeschoss imponiert mit einem traumhaft großen Zimmer, einer luftigen Atmosphäre und gemütlichen Dachholzbalken. Der Raum im Untergeschoss wäre perfekt als Büro, oder für Gäste & Hobby.
Dieses Haus erfüllt die Wünsche anspruchsvoller Familien, die höchsten Wohnkomfort in einer Top Lage zu schätzen wissen.
Verbrauchsabhängige Kosten sind vom Mieter direkt mit den jeweiligen Versorgungsunternehmen abzurechnen.
Lage
Diese schöne Doppelhaushälfte liegt in einer attraktiven und ruhigen Lage in Tangstedt, einem kleinen, aber gut angebundenen Ort - besonders bei Familien beliebt.
In nur wenigen Minuten erreicht man mit dem Auto das Zentrum von Tangstedt, wo sich verschiedene Supermärkte, Bäckereien und Fachgeschäfte befinden. Der nächste REWE-Markt ist nur etwa 1,5 Kilometer entfernt. Auch kleinere Geschäfte für den täglichen Bedarf sowie Cafés und Restaurants finden sich in unmittelbarer Nähe.
Weitere Einkaufsmöglichkeiten befinden sich im benachbarten Quickborn (ca. 7 km), wo ein größeres Einkaufszentrum, unter anderem ein Edeka, Aldi und Lidl, sowie zahlreiche Fachgeschäfte und Dienstleister vorhanden sind.
Für die Gesundheitsversorgung ist in Tangstedt ebenfalls bestens gesorgt. Das Ärztezentrum Tangstedt befindet sich nur 1 km entfernt, sodass Arztbesuche schnell erledigt sind. In Quickborn sind zudem zahlreiche weitere Ärzte und Fachkliniken ansässig.
Die Grundschule Tangstedt ist etwa 1,2 km entfernt und daher in wenigen Minuten zu Fuß oder mit dem Fahrrad erreichbar. Weiterführende Schulen befinden sich im ca. 8 km entfernten Quickborn oder im ca. 13 km entfernten Bönningstedt. Auch die Berufsschule Quickborn ist gut erreichbar. Durch die Nähe zu diesen Schulen ist der tägliche Schulweg für Kinder und Jugendliche sehr gut organisiert.
Die Bushaltestelle "Tangstedt, Brookring" ist nur etwa 200 Meter entfernt und bietet regelmäßige Verbindungen nach Quickborn (ca. 7 km) sowie in das benachbarte Hamburg (ca. 25 km). Die S-Bahn-Station Quickborn ist mit dem Bus in nur etwa 15 Minuten erreichbar und ermöglicht eine schnelle Anbindung an die Hamburger Innenstadt (Fahrzeit ca. 30 Minuten). Darüber hinaus bietet der nahegelegene S-Bahnhof Hamburg-Ohlsdorf (ca. 20 km) Anschluss an die Hamburger U-Bahn und Schnellzüge, wodurch sich auch eine schnelle Anbindung an den Flughafen Hamburg sowie an das gesamte Hamburger Umland ergibt.
Sonstige Angaben
Besichtigungstermine sind ausschließlich nach Terminvereinbarung möglich!
Telefonische Erstauskünfte zum vorliegenden Objekt werden nicht erteilt - bitte fordern Sie daher zunächst unser Exposé unter Angabe
- Ihres vollständigen Vor- und Zunamens,
- Ihrer Meldeadresse sowie
- Ihrer gültigen Telefonnummer und
- Email-Adresse
auf der jeweiligen Internetplattform oder unserer Homepage an.
Bitte haben Sie Verständnis dafür, dass wir gegenüber den Eigentümern dieser Immobilie vertraglich verpflichtet sind, einen lückenlosen Nachweis in Bezug auf die Weitergabe der Objektinformationen zu erbringen.
Gern stehen wir Ihnen für eine Besichtigung dieses ansprechenden Mietobjektes zur Verfügung
Wir freuen uns auf Sie.
Haftungsausschluss: Trotz sorgfältiger Bearbeitung von Daten, Bildern und Informationen übernehmen wir keine Haftung für die Richtigkeit der Angaben, ebenso wenig für die Lieferfähigkeit des Angebotes bei Vermietung oder Verkauf.
Wir freuen uns über Ihre Anfrage über dieses Portal.
Grundriss
EG
>
>
OG
>
>
DG
>
>
KG
>
>
Adresse
22889 Tangstedt
Interessante Orte
Preis- und Lageinformationen
Preistrend für Bestandsimmobilien in Tangstedt