Ab dem 01.05.2026 steht diese gepflegte 2-Zimmer-Nichtraucherwohnung in der Weingärtnerstraße in Oberkirch zur Vermietung.
Die Wohnung befindet sich in einem ruhigen, zentralen Wohngebiet direkt an der Rench. Stadtmitte und Bahnhof sind fußläufig sehr gut erreichbar.
Das Mehrfamilienhaus (Baujahr 1999) besteht aus 6 Wohneinheiten. Die Wohnung liegt im 1. Obergeschoss.
⸻
Ausstattung
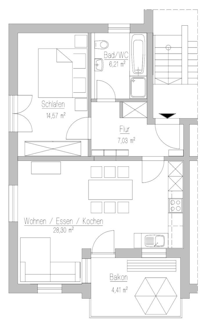
• Großer, heller Wohn- und Essbereich mit Einbauküche
• Südbalkon mit Blick auf die Rench inkl. Markise
• Tageslichtbad mit Dusche und Badewanne
• Großer Kellerraum
• Pkw-Stellplatz
• Gemeinschaftswaschraum im Keller
⸻
Kosten
• Kaltmiete: 670 €
• Stellplatz: 40 €
• Nebenkosten: ca. 210 € (inkl. Treppenhausreinigung und Hausmeisterservice für die Außenanlage)
Kaution: 3 Kaltmieten
⸻
Einbauküche
Die moderne Einbauküche mit Griffleisten (Miele-Backofen, Bosch-Spülmaschine, Siemens-Induktionskochfeld) sollte für 5.900 € VB übernommen werden.
⸻
Sonstiges
• Nichtraucherwohnung
• Haustierhaltung ist leider nicht vorgesehen
⸻
Kontakt
Bei Interesse freuen wir uns über Ihre Kontaktaufnahme mit kurzer Vorstellung.
Schöne 2-Zimmer-Wohnung mit Südbalkon zur Rench
77704 Oberkirch
Die vollständige Adresse der Immobilie erhalten Sie vom Anbieter.
Auf Karte anzeigen
Die vollständige Adresse der Immobilie erhalten Sie vom Anbieter.
Infos
| Wohnungskategorie | Etagenwohnung |
|---|---|
| Etage | 1 von 2 |
| Wohnfläche ca. | 60 m2 |
| Bezugsfrei ab | 1.5.2026 |
| Zimmer | 2 |
| Schlafzimmer | 1 |
| Badezimmer | 1 |
| Haustiere | Nein |
| Garage/Stellplatz | Außenstellplatz |
| Anzahl Garage/Stellplatz | 1 |
Kosten
| Kaltmiete |
670 € |
|---|---|
| Nebenkosten | + 210 € |
| Heizkosten | in Nebenkosten enthalten |
| Gesamtmiete | 880 € |
| Miete für Garage/Stellplatz | 40 € |
| Kaution o. Genossenschaftsanteile | 2.010,00 |
Weiter mieten oder doch kaufen?
Wer in Miete wohnt, überweist dem Vermieter im Laufe der Jahre hohe Summen, die sich
auch in die eigenen vier Wände investieren lassen könnten.
Bausubstanz & Energieausweis
| Baujahr | 1999 |
|---|---|
| Letzte Sanierung | 2020 |
| Objektzustand | Modernisiert |
| Qualität der Austattung | Gehoben |
| Heizungsart | Gas-Heizung |
| Energieausweis | liegt vor |
Beschreibung des Objekts
Lage
Oberkirch liegt idyllisch im Renchtal am Rande des Schwarzwalds und bietet eine sehr gute Infrastruktur. Einkaufsmöglichkeiten, Restaurants, Ärzte sowie der Bahnhof sind sehr gut erreichbar. Die Nähe zur Natur und die gute Anbindung machen Oberkirch zu einem attraktiven Wohnort.
Grundriss
Grundriss
>
>
Grundriss
>
>
Adresse
77704 Oberkirch
Interessante Orte
Preis- und Lageinformationen
Preistrend für Bestandsimmobilien in Oberkirch