Dieses neuwertige und bezugsfertige Haus bietet Ihnen Platz für die ganze Familie, oder Arbeiten und Wohnen unter einem Dach!
Mit einer großzügigen Wohnfläche von rund 244 m² ist diese Immobilie ein wahres Raumwunder und überzeugt durch hochwertige Ausstattung und modernste Haustechnik. Bereits beim Betreten des Hauses spüren Sie die hochwertige Qualität und die großzügige Atmosphäre.
In allen Ebenen, inklusive Untergeschoss, sorgt die Fußbodenheizung für ein angenehmes Raumklima.
Ein besonderes Highlight ist der pflegeleichte Süd-Westgarten mit der großzügigen, umlaufenden Terrasse, hier können Sie den ganzen Tag die Sonne genießen. Die zwei Südbalkone bieten einen herrlichen Weitblick ins Grüne. Hier sind Sie nicht von anderen Häusern umgeben, sondern haben freie Sicht.
Zur Immobilie gehören ein großzügig dimensionierter Stellplatz im Wöhr-Multiparker mit komfortabler Stellplatzbreite von 2,7 Metern sowie integrierter E-Ladestation, ergänzt durch einen Außenstellplatz unmittelbar am Hauseingang. Die Kaltmiete sowie die Stellplatzmiete sind für drei Jahre fest vereinbart. Ein späterer Eigenbedarf ist nicht vorgesehen – ein verlässlicher Rahmen für langfristige Planungssicherheit.
Platz für die ganze Familie! Großzügiges Haus am Waldrand
82402 Seeshaupt
Die vollständige Adresse der Immobilie erhalten Sie vom Anbieter.
Auf Karte anzeigen
Die vollständige Adresse der Immobilie erhalten Sie vom Anbieter.
Infos
| Haustyp | Reiheneckhaus |
|---|---|
| Etagenzahl | 3 |
| Wohnfläche ca. | 243 m2 |
| Nutzfläche | 84,68 m2 |
| Grundstücksfläche | 385 m2 |
| Bezugsfrei ab | ab sofort |
| Zimmer | 6,5 |
| Schlafzimmer | 5 |
| Badezimmer | 3 |
| Haustiere | Nach Vereinbarung |
| Garage/Stellplatz | Garage |
| Anzahl Garage/Stellplatz | 1 |
Kosten
| Kaltmiete |
3.900 € |
|---|---|
| Nebenkosten | + 350 € |
| Heizkosten | in Nebenkosten enthalten |
| Gesamtmiete | 4.500 € |
| Miete für Garage/Stellplatz | 150 € |
| Kaution o. Genossenschaftsanteile | 9400 |
Weiter mieten oder doch kaufen?
Wer in Miete wohnt, überweist dem Vermieter im Laufe der Jahre hohe Summen, die sich
auch in die eigenen vier Wände investieren lassen könnten.
Bausubstanz & Energieausweis
| Baujahr | 2022 |
|---|---|
| Objektzustand | Neuwertig |
| Heizungsart | Gas-Heizung |
| Wesentliche Energieträger | Erdgas leicht |
| Energieausweis | liegt vor |
| Energieausweistyp | Bedarfsausweis |
| Energieverbrauchskennwert | 39,0 kWh/(m²*a) |
| Energieeffizienzklasse | A |
39,0
kWh/(m²*a)
Energieeffizienzklasse A
- A+
- A
- B
- C
- D
- E
- F
- G
- H
- 0
- 25
- 50
- 75
- 100
- 125
- 150
- 175
- 200
- 225
- >250
Beschreibung des Objekts
Ausstattung
- Gut durchdachter Grundriss mit 5 Schlafzimmern
- Hochwertige Eichenparkettböden und großformatige, helle Fliesen
- Überhohe Decken für ein einzigartiges Raumgefühl
- Energieeffizient inkl. Solarthermie und Photovoltaik
- Fußbodenheizung in allen Geschossen
- Schuppen für Fahrräder, Gartengeräte und Mülltonnen
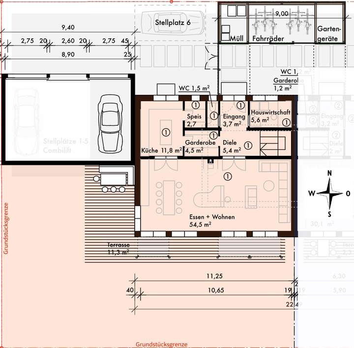
Erdgeschoss:
- Hochwertige Einbauküche mit Kochinsel und Markenelektrogeräten (im Mietpreis enthalten)
- Rund 55 m² großes, lichtdurchflutetes Wohnzimmer mit Kaminanschluss
- Praktische Garderobe und Speisekammer sowie Gäste-WC
- Büro oder Haushaltsraum
- Umlaufende Süd-Westterrasse und großer Garten
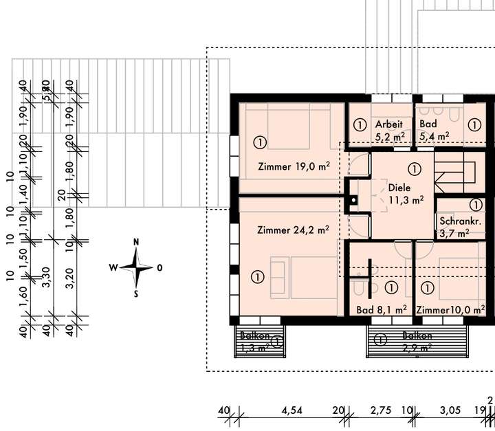
Obergeschoss:
- Drei Schlafzimmer, ein Arbeitszimmer und ein Schrankraum
- Zwei Badezimmer, eins mit Dusche und Balkonzugang, das andere mit Badewanne
- Zwei sonnige und überdachte Südbalkone mit Weitblick
Dachgeschoss:
- Weiteres Schlafzimmer sowie Duschbadezimmer
Untergeschoss:
- Beheizte, großzügige Hobbyräume mit Wohnraumqualität
Lage
Seeshaupt präsentiert sich als gewachsener, oberbayerischer Standort mit hoher Lebensqualität – malerisch gelegen am Südufer des Starnberger Sees und eingebettet in die sanfte Voralpenlandschaft mit den angrenzenden Osterseen. Die Gemeinde mit rund 3.300 Einwohnern vereint authentischen Ortscharakter, naturnahe Erholungsräume und eine solide Infrastruktur. Der Ort bietet zwei Kindergärten, eine Grundschule, ärztliche Versorgung sowie vielfältige Einkaufsmöglichkeiten für den täglichen Bedarf. Weiterführende Schulen stehen in den umliegenden Bildungszentren Penzberg, Tutzing und Weilheim zur Verfügung. Durch die direkte Anbindung an die Autobahn A95 sowie den Bahnanschluss erreichen Sie München komfortabel – mit dem Auto in etwa 35 Minuten, mit der Bahn in rund 45 Minuten. Seeshaupt begeistert mit seinen sonnigen Badeplätzen, Stegen und hervorragenden Wassersportbedingungen. Gut ausgebaute Rad- und Wanderwege eröffnen ein breites Spektrum an Freizeit- und Naturerlebnissen – ganzjährig und sowohl für ambitionierte Sportler als auch für entspannte Genießer.
Näheres gerne unter: www.seeshaupt.de
Objektlage:
Am Ende einer Sackgasse befindet sich das großzügige Haus, absolut ruhig am Waldrand gelegen. Die umliegende Infrastruktur eignet sich perfekt für Familien: Der nächste Kindergarten ist nur 700 m entfernt, was einen einfachen und fußläufigen Zugang ermöglicht. Die Grundschule ist ebenfalls in der Nähe und nur 800 m entfernt, ideal für Schulkinder. Zur Autobahnauffahrt der A95 sind es nur 6 km, was schnelle Verbindungen zu größeren Städten und zur Landeshauptstadt ermöglicht. Der Starnberger See sowie die Osterseen liegen bequem in fußläufiger Distanz und eröffnen ein attraktives Freizeitpotenzial direkt vor der Haustür.
Grundriss
Grundriss Erdgeschoss
>
>
Grundriss Obergeschoss
>
>
Grundriss Dachgeschoss
>
>
Grundriss Untergeschoss
>
>
Wohnflächenaufstellung
>
>
Adresse
82402 Seeshaupt
Interessante Orte
Preis- und Lageinformationen
Preistrend für Bestandsimmobilien in Seeshaupt