Willkommen in Ihrem neuen Zuhause!
Diese hochwertige Doppelhaushälfte (Baujahr 2022) vereint modernes Design, durchdachte Raumaufteilung und energieeffizientes Wohnen in attraktiver Lage von Wangen im Allgäu. Auf großzügigen ca. 135 m² Wohnfläche erwartet Sie ein Wohnkonzept, das Komfort, Funktionalität und Lebensqualität perfekt miteinander verbindet.
🏡 Raumaufteilung & Ausstattung:
Erdgeschoss:
- Sonnige Terrasse – ideal zum Entspannen oder für gesellige Abende
- Schlafzimmer / Büro – flexibel nutzbar
- Praktischer Abstellraum
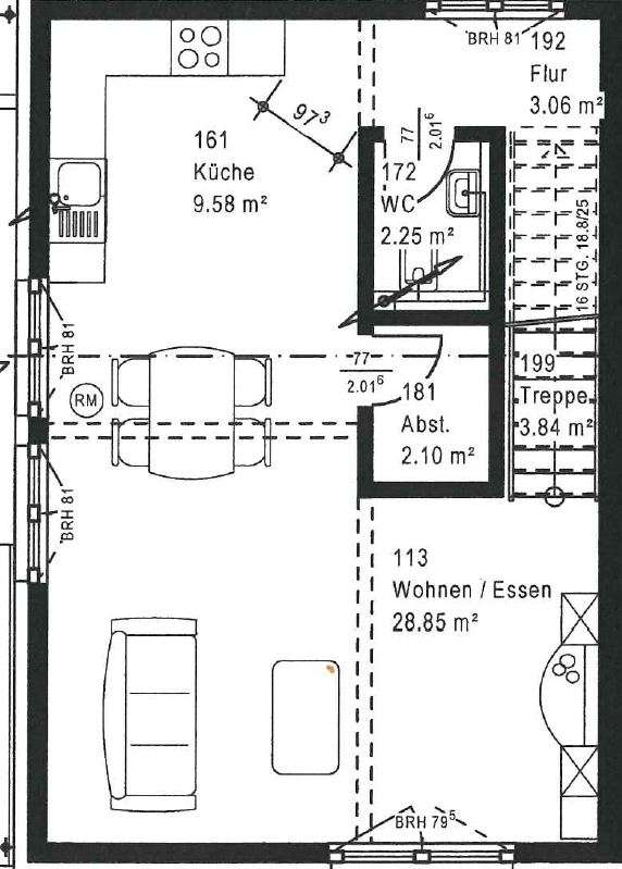
1. Obergeschoss:
- Gäste-WC
- Großzügiger, lichtdurchfluteter offener Wohn- und Essbereich
- Moderne Einbauküche integriert
- Weiterer Abstellraum für zusätzlichen Stauraum
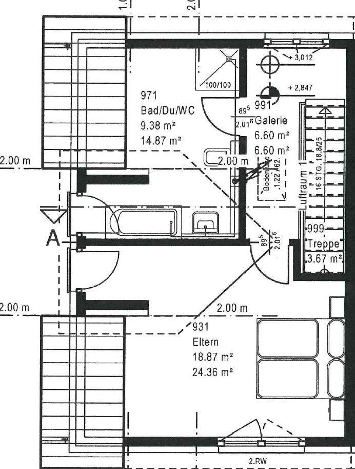
2. Obergeschoss:
- Offene Galerie
- Modernes Badezimmer mit Badewanne und Dusche
- Ruhiges Elternschlafzimmer
🌱 Energie & Nachhaltigkeit:
Gasheizung kombiniert mit Solaranlage
Besonderes Highlight:
Die durch die Solaranlage erzeugte Energie für Warmwasser wird den Mietern kostenfrei zur Verfügung gestellt – ein echter Mehrwert für Umwelt und Geldbeutel!
🚗 Parken:
2 private Stellplätze direkt am Haus
📍 Lage:
Wangen im Allgäu überzeugt durch hohe Lebensqualität, eine charmante Altstadt, sehr gute Infrastruktur sowie die Nähe zur Natur. Einkaufsmöglichkeiten, Schulen, Kindergärten und Freizeitangebote sind bequem erreichbar.
💰 Mietkonditionen:
Kaltmiete: 1.400 €
Nebenkosten: 225 €
Gesamtmiete: 1.625 € monatlich
📌 Wichtiger Hinweis:
- Eine positive Schufa-Auskunft ist Grundvoraussetzung für die Anmietung dieser Immobilie.
- Kein Garten vorhanden
✅ Fazit
Diese Doppelhaushälfte ist ideal für Paare, kleine Familien oder anspruchsvolle Mieter, die modernes, energieeffizientes Wohnen in ruhiger und dennoch zentraler Lage suchen.
📞 Haben wir Ihr Interesse geweckt?
Dann freuen wir uns auf Ihre Anfrage und vereinbaren gerne einen Besichtigungstermin!
Neuwertige Doppelhaushälfte mit 4 Zimmern in Wangen im Allgäu
88239 Wangen im Allgäu
Die vollständige Adresse der Immobilie erhalten Sie vom Anbieter.
Auf Karte anzeigen
Die vollständige Adresse der Immobilie erhalten Sie vom Anbieter.
Infos
| Haustyp | Doppelhaushaelfte |
|---|---|
| Etagenzahl | 3 |
| Wohnfläche ca. | 135 m2 |
| Nutzfläche | 135 m2 |
| Grundstücksfläche | 135 m2 |
| Bezugsfrei ab | 1.4.2026 |
| Zimmer | 4 |
| Schlafzimmer | 2 |
| Badezimmer | 1 |
| Haustiere | Nach Vereinbarung |
| Garage/Stellplatz | Außenstellplatz |
| Anzahl Garage/Stellplatz | 2 |
Kosten
| Kaltmiete |
1.400 € |
|---|---|
| Nebenkosten | + 225 € |
| Heizkosten | in Nebenkosten enthalten |
| Gesamtmiete | 1.625 € |
| Kaution o. Genossenschaftsanteile | 4.000,00 |
Weiter mieten oder doch kaufen?
Wer in Miete wohnt, überweist dem Vermieter im Laufe der Jahre hohe Summen, die sich
auch in die eigenen vier Wände investieren lassen könnten.
Bausubstanz & Energieausweis
| Baujahr | 2022 |
|---|---|
| Objektzustand | Neuwertig |
| Qualität der Austattung | Gehoben |
| Heizungsart | Gas-Heizung |
| Wesentliche Energieträger | Solarheizung, Gas |
| Energieausweis | liegt vor |
Beschreibung des Objekts
Lage
Wangen im Allgäu ist eine charmante Stadt mit einer guten Infrastruktur. Die Lage des Hauses in Wangen im Allgäu bietet eine gute Anbindung an öffentliche Verkehrsmittel und Einkaufsmöglichkeiten für den täglichen Bedarf. Freizeitmöglichkeiten in der Natur und kulturelle Angebote der Stadt sind gut erreichbar.
Grundriss
Erdgeschoss
>
>
Erster Stock
>
>
Zweiter Stock
>
>
Adresse
88239 Wangen im Allgäu
Interessante Orte
Preis- und Lageinformationen
Preistrend für Bestandsimmobilien in Wangen im Allgäu