Dieses exzeptionelle Architektenhaus im charakteristischen Bauhausstil präsentiert sich in neuwertigem Zustand und vereint klare, reduzierte Formen mit übergroßen Fensterfronten, die für maximale Lichtdurchflutung und eine nahtlose Verbindung von Innen- und Außenraum sorgen. Durch die großflächigen Glasfronten ergibt sich je nach Wetterlage ein faszinierendes Farbspiel, das das Innere des Hauses lebendig und atmosphärisch gestaltet. Die Architektur folgt dem Prinzip „Form folgt Funktion“ und besticht durch kubische Formensprache sowie große Glasflächen. Das Haus steht in einem exklusiven, gehobenen nachbarschaftlichen Umfeld, das höchsten Wohnkomfort und diskrete Privatsphäre garantiert. Durch die perfekte Süd-West-Ausrichtung erlebt man spektakuläre Sonnenuntergänge.
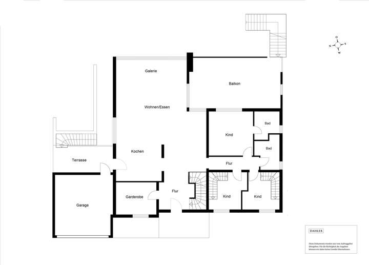
Bereits der repräsentative Eingangsbereich vermittelt ein Gefühl von Großzügigkeit und Stil. Im Erdgeschoss öffnet sich der lichtdurchflutete Wohnbereich mit offenem Kamin zu einer weiten Terrasse mit beeindruckendem Panoramablick betont durch die übergroßen Fensterfronten, die das Tageslicht eindrucksvoll einfangen. Die exklusive Designer-Küche mit dem angrenzenden Essbereich bildet das Herzstück des Hauses in ihrer klaren Linienführung und funktionalen Eleganz. Ein separater Wohntrakt mit eigenem Bad bietet ideale Rückzugsmöglichkeiten für Gäste oder das private Homeoffice.
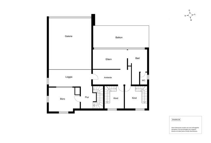
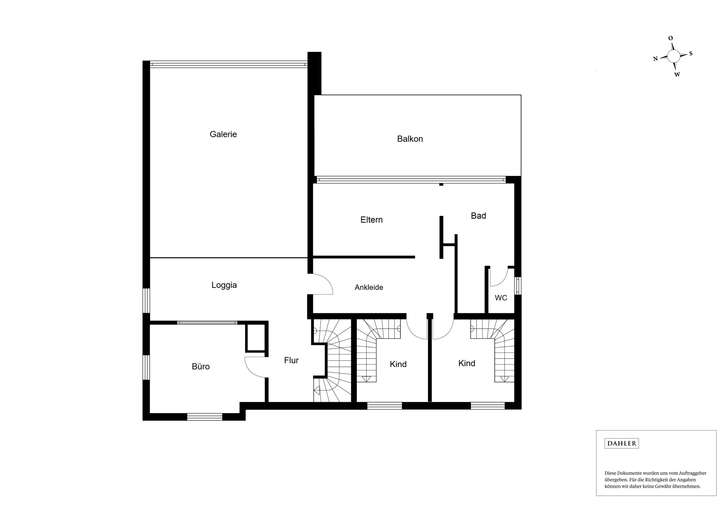
Im Obergeschoss befinden sich zwei, über zwei Ebenen angelegte Kinder- bzw. Jugendzimmer, ein besonders großzügiges Arbeitszimmer sowie die private Elternsuite. Der Masterbereich beeindruckt mit einem luxuriösen Bad, freistehender Wanne und eigenem Balkon, von dem die Ruhe und Weite des Ausblicks genossen werden können.
Im Gartengeschoss ergänzen funktionale Nebenräume und ein großzügiger Fitnessraum das Raumangebot. Direkt angrenzend liegt ein Badezimmer mit Dusche, das den Komfort für sportliche Aktivitäten und Entspannung abrundet. Zudem befindet sich auf der Ebene eine großzügige Einliegerwohnung mit separatem Zugang, bestehend aus zwei Zimmern, Küche und Bad – ideal für anspruchsvolle Gäste oder Personal.
Der große Garten mit teilweise altem Baumbestand ist ein Traum und perfekt angelegt . Die zwei verschiedenen Ebenen bieten vielfältige Nutzungsmöglichkeiten und lassen das Herz jedes Gartenliebhabers höher schlagen.
Dieses Architektenhaus verbindet die zeitlose Eleganz des Bauhausstils mit modernem Luxus und exklusiver Lage – ein Refugium für Menschen, die Architektur, Qualität und Lebensstil auf höchstem Niveau schätzen.
Exzeptionelles, neuwertiges Architektenhaus in sensationeller Weitblicklage von Bad Soden
65812 Bad Soden am Taunus
Die vollständige Adresse der Immobilie erhalten Sie vom Anbieter.
Auf Karte anzeigen
Die vollständige Adresse der Immobilie erhalten Sie vom Anbieter.
Infos
| Haustyp | Villa |
|---|---|
| Wohnfläche ca. | 445 m2 |
| Nutzfläche | 141 m2 |
| Grundstücksfläche | 1.248 m2 |
| Bezugsfrei ab | nach Vereinbarung |
| Zimmer | 8 |
| Schlafzimmer | 5 |
| Badezimmer | 4 |
| Garage/Stellplatz | Garage |
| Anzahl Garage/Stellplatz | 2 |
Kosten
| Kaltmiete |
8.500 € |
|---|---|
| Nebenkosten | + 1.210 € |
| Heizkosten | keine Angabe |
| Gesamtmiete | 9.710 € (zzgl. Heizkosten) |
| Kaution o. Genossenschaftsanteile | drei Nettokaltmieten |
Weiter mieten oder doch kaufen?
Wer in Miete wohnt, überweist dem Vermieter im Laufe der Jahre hohe Summen, die sich
auch in die eigenen vier Wände investieren lassen könnten.
Bausubstanz & Energieausweis
| Baujahr | 1967 |
|---|---|
| Objektzustand | Neuwertig |
| Qualität der Austattung | Luxus |
| Heizungsart | Fußbodenheizung |
| Wesentliche Energieträger | Strom |
| Energieausweis | liegt vor |
| Energieausweistyp | Bedarfsausweis |
| Energieverbrauchskennwert | 19,2 kWh/(m²*a) |
| Energieeffizienzklasse | A+ |
19,2
kWh/(m²*a)
Energieeffizienzklasse A+
- A+
- A
- B
- C
- D
- E
- F
- G
- H
- 0
- 25
- 50
- 75
- 100
- 125
- 150
- 175
- 200
- 225
- >250
Beschreibung des Objekts
Ausstattung
_ acht Zimmer
_ fünf Schlafzimmer
_ Einbauküche von Bulthaup mit V-Zug-Öfen und Mielegeräten
_ vier Badezimmer mit bodengleichen Duschen, freistehender Badewanne (Eltern) etc.
_ hochwertige Armaturen von Vola, Hans Grohe
_ große Garderobe in Eingangsbereich
_ diverse Nutzräume auf Gartengeschossebene
_ diverse Einbauschränke
_ Eichendielenböden, Fliesenböden sowie Natursteinböden im Eingangsbereich und auf der Treppe
_ separat zugängliche Einliegerwohnung
_ Fußbodenheizung
_ Malervlies an den Wänden
_ Holzkamin mit Panoramafenster
_ Deckenhöhe bis ca. 4,5 Meter
_ dreifach-isolierverglaste Stahlfenster
_ Sicherheitsverglasung
_ elektrische Jalousien
_ große Sonnenterasse und zwei Balkone mit Süd-Ost-Ausrichtung
_ Videogegensprechanlage
_ Smarthome-Ausstattung: alles über App steuerbar: Heizung, Licht, Rollläden/Jalousien, Gartenbewässerung, Alarmanlage und Videoüberwachung
_ Sicherheitstür
_ Alarmanlage
_ Doppelgarage mit Wallboxnutzung und einen Stellplatz
_automatische Gartenbewässerung
Lage
_Bad Soden steht vor allem für Idylle und Erholung
_Unweit von Frankfurt präsentiert sich Bad Soden als eine kleine Oase, die alles bietet was das Herz begehrt
_Die historische Altstadt ist vor allem durch ihre vielen Fachwerkhäuser geprägt
_Dort finden sich etwas versteckt viele Einzelhandelsgeschäfte wieder
_Hundertwasserhaus als architektonisches Highlight der Stadt
_Der Ort bietet vor allem die Möglichkeit zur Erholung im Grünen dank der Kurparkanlagen
_Über die S-Bahn Linie S3 lässt sich Bad Soden sehr einfach von Frankfurt aus erreichen
_Nach 20 Minuten reiner Fahrtzeit wird der Frankfurter Flughafen erreicht
Grundriss
Erdgeschoss
>
>
Obergeschoss
>
>
Untergeschoss
>
>
Adresse
65812 Bad Soden am Taunus
Interessante Orte
Preis- und Lageinformationen
Preistrend für Bestandsimmobilien in Bad Soden am Taunus