Zur Vermietung steht ein gepflegtes Einfamilienhaus in sonniger Ruhelage, unmittelbar am Golfplatz in Erpfendorf.
Das 2004 in Ziegelbauweise errichtete Haus hat 2 Etagen, im Erdgeschoss stehen ca. 106 m2 und im Untergeschoss ca. 120 m2 zur Verfügung. Vor dem Haus stehen noch ein ca. 12 m2 großer Abstellraum, ein Carport- und 2 Freistellplätze zur Verfügung.
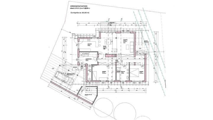
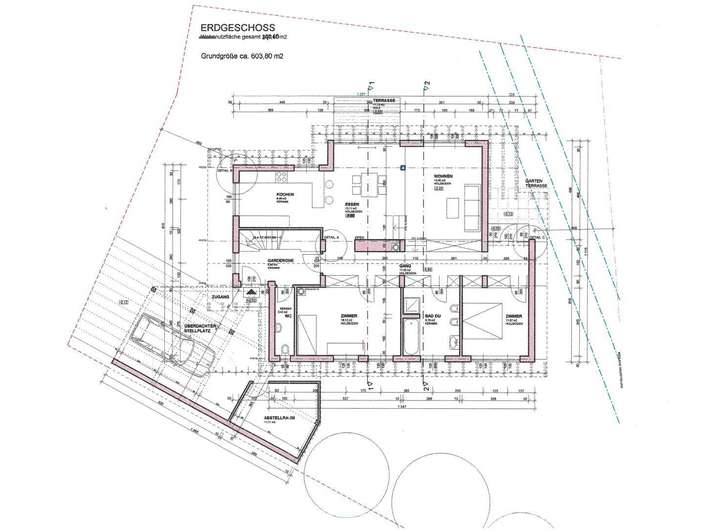
Im Erdgeschoss befindet sich die Diele/Garderobe mit Gäste-WC, der offene Wohn-Essbereich mit Sichtdachstuhl und eine Kombination aus Grundofen und Kaminofen. Angrenzend befindet sich die komplett ausgestattete Küche.
Vom Wohn-/Essbereich gelangt man auf eine großzügige Terrasse mit Markise und sodann in den gepflegten Garten.
Weiters auf dieser Ebene ist der Masterbedroom mit eigener Ankleide sowie ein weiteres Schlafzimmer mit Galerie und das großzügige Badezimmer mit Eckbadewanne und Dusche situiert.
Im Untergeschoss stehen mehrere sehr große Räume zur vielseitigen Nutzung zur Verfügung.
Weiters wurde soeben im Untergeschoss ein hochwertiges Badezimmer einbaut, somit verfügt die Liegenschaft über 2 getrennte Badezimmer.
Beheizt wird das Haus über eine Gas-Zentralheizung und im EG und UG vollflächig mit Fußbodenheizung
Eine Solaranlage für Warmwasser, eine Staubsaugeranlage und Rollo und Insektengitter an fast allen Fenstern sind ebenfalls vorhanden.
Im Garten gibt es einen bereits befestigten Unterbau für einen Pool. Ein Kunststoffschwimmbecken inkl. Filteranlage und Möglichkeit zum Beheizen mit Solar ist vorhanden.
Das Haus ist teilweise möbliert (Couch, Wohnzimmerschränke, TV-Halterung, usw. können aber auch auf Wunsch entfernt werden).
Die monatliche Miete beträgt € 2.600,00 brutto, zuzüglich ca. € 200,00 brutto Betriebskosten. Gesamtbelastung ca. € 2.800,00
Gas & Strom sind direkt vom Mieter bei den Versorgungseinrichtungen anzumelden und zu bezahlen.
Mindestmietdauer 1 Jahr + 3 Monate Kündigungsfrist, der Mietvertrag muss auf 3 Jahre abgeschlossen werden. Kaution 3 Monatsmieten.
Energiedaten: HWB 70 Klasse C, fGEE 0,86 Klasse B.
Sofort verfügbar.
Einfamilienhaus in sonniger Ruhelage am Golfplatz
6383 Kirchdorf in Tirol
Die vollständige Adresse der Immobilie erhalten Sie vom Anbieter.
Auf Karte anzeigen
Die vollständige Adresse der Immobilie erhalten Sie vom Anbieter.
Infos
| Haustyp | Einfamilienhaus |
|---|---|
| Etagenzahl | 2 |
| Wohnfläche ca. | 200 m2 |
| Grundstücksfläche | 596 m2 |
| Bezugsfrei ab | sofort |
| Zimmer | 6 |
| Schlafzimmer | 2 |
| Badezimmer | 2 |
| Anzahl Garage/Stellplatz | 3 |
Kosten
| Kaltmiete |
2.800 € |
|---|---|
| Nebenkosten | keine Angabe |
| Heizkosten | keine Angabe |
| Gesamtmiete | 2.800 € (zzgl. Nebenkosten) |
| Kaution o. Genossenschaftsanteile | 7798.8 |
Weiter mieten oder doch kaufen?
Wer in Miete wohnt, überweist dem Vermieter im Laufe der Jahre hohe Summen, die sich
auch in die eigenen vier Wände investieren lassen könnten.
Bausubstanz & Energieausweis
| Baujahr | 2004 |
|---|---|
| Objektzustand | Gepflegt |
| Heizungsart | Fußbodenheizung |
| Wesentliche Energieträger | Solarheizung, Gas |
Beschreibung des Objekts
Grundriss
Grundriss-Erdgeschoss
>
>
Grundriss-Kellergeschoss
>
>