Modernisierte 4-Zimmer-Endreihenhaus mit Teilkeller und Carport.
Nettokaltmiete € 1.800,00 zzgl. € 165,00 Betriebskosten und Gas/Strom/Kabelfernsehen per Direktzahlung. Carport-Stellplatz € 40,00/monatlich.
Flächenaufteilung:
- Ca. 140 m² – Wohnfläche
- Ca. 31 m² – Nutzfläche (Teilkeller)
- Ca. 180 m² – Grundstück
Vertragsinformationen:
- die ordentliche Kündigung wird für die ersten 2 Jahre ausgeschlossen
komplett modernisiertes 4-Zimmer-Endreihenhaus in Buxtehude (Nord)
Gartenstraße 1,
21614 Buxtehude
Auf Karte anzeigen
Infos
| Haustyp | Reiheneckhaus |
|---|---|
| Etagenzahl | 2 |
| Wohnfläche ca. | 140 m2 |
| Nutzfläche | 31 m2 |
| Grundstücksfläche | 180 m2 |
| Bezugsfrei ab | Nach Vereinbarung |
| Zimmer | 4 |
| Schlafzimmer | 3 |
| Badezimmer | 1 |
| Haustiere | Nach Vereinbarung |
| Garage/Stellplatz | Carport |
| Anzahl Garage/Stellplatz | 1 |
Kosten
| Kaltmiete |
1.800 € |
|---|---|
| Nebenkosten | + 165 € |
| Heizkosten | keine Angabe |
| Gesamtmiete | 1.965 € |
| Miete für Garage/Stellplatz | 40 € |
| Kaution o. Genossenschaftsanteile | 3 Nettokaltmieten |
Weiter mieten oder doch kaufen?
Wer in Miete wohnt, überweist dem Vermieter im Laufe der Jahre hohe Summen, die sich
auch in die eigenen vier Wände investieren lassen könnten.
Bausubstanz & Energieausweis
| Baujahr | 1977 |
|---|---|
| Letzte Sanierung | 2025 |
| Objektzustand | Erstbezug nach Sanierung |
| Qualität der Austattung | Gehoben |
| Heizungsart | Gas-Heizung |
| Wesentliche Energieträger | Gas |
| Energieausweis | liegt vor |
| Energieausweistyp | Bedarfsausweis |
| Energieverbrauchskennwert | 170,3 kWh/(m²*a) |
| Energieeffizienzklasse | F |
170,3
kWh/(m²*a)
Energieeffizienzklasse F
- A+
- A
- B
- C
- D
- E
- F
- G
- H
- 0
- 25
- 50
- 75
- 100
- 125
- 150
- 175
- 200
- 225
- >250
Beschreibung des Objekts
Ausstattung
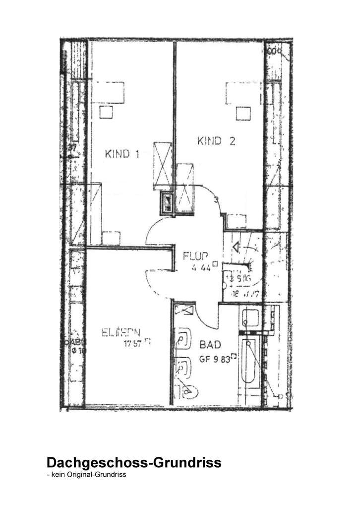
Baujahr 1977; neu gefliester Erdgeschossflur mit Fußbodenheizung und Garderobenplatz; neu gefliestes Gäste-WC mit Fußbodenheizung und Fenster; Küche mit Fußbodenheizung und neuer Einbauküche (Geschirrspüler, Induktionskochfeldern etc.); großer, neu gefliester Essbereich (ca. 15 m²) mit Fußbodenheizung; großer Wohnbereich (ca. 30 m²) mit Terrassenausgang, Fußbodenheizung Vinylfußboden sowie TV- und LAN-Anschluss; große Süd-/West-Terrasse mit elektrischer Markise, Abstellraum und Sichtschutz; ca. 180 m² großes und angelegtes Grundstück; Holztreppe zum Dachgeschoss; Dachgeschossflur mit Vinylfußboden; großes Schlafzimmer (ca. 18 m²) mit Vinylfußboden, elektrischen Außenrollläden sowie TV- und LAN-Anschluss; neues Badezimmer mit Badewanne, Dusche inkl. Duschkabine, Fußbodenerwärmung, Handtuchheizung und Fenster; großes großes Kinderzimmer I (ca. 23 m²) mit Vinylfußboden, elektrischen Außenrollläden sowie TV- und LAN-Anschluss; großes Kinderzimmer II (ca. 20 m²) mit Vinylfußboden, elektrischen Außenrollläden sowie TV- und LAN-Anschluss; Abstellfläche auf dem Kriechboden; weiße Innentüren; Kunststofffenster; Gasheizung mit Warmwasseraufbereitung; Carport-Stellplatz € 40,00/monatlich und Pkw-Stellplatz; Kabelfernsehen möglich.
Teilkeller:
- beheizbarer Hobbykeller
- Wasch- und Heizungskeller
- Vorratskeller
Modernisierungen (2025):
- neue Einbauküche
- neues Badezimmer
- neues Gäste-WC
- neue Heizungsanlage
- neue Fenster
- neue Innentüren
- neue Bodenbeläge
Anmerkungen:
- das Haus wurde umfangreich modernisiert und wird frisch renoviert übergeben
- großzügige Raumaufteilung
- teilweise elektrische Rollläden
- Bäder mit Waschtischen inkl. Unterschränken
- Tierhaltung nach Vereinbarung
Besonderheiten:
- Gasbrennwertheizung
- Erdgeschoss mit Fußbodenheizung
- 3fach verglaste Kunststofffenster
- Bedarfsausweis, Endenergieverbrauch 170,3 kWh/(m²*a), Gas, Energieeffizienzklasse B, Gebäudebaujahr 1977
Lage
Gartenstr. 1 in Buxtehude (Nord).
Über 40.000 Einwohner zählt die zweitgrößte Stadt des Landkreises Stade an der Este. Durch den S-Bahn-Anschluss ist man hier ein ganzes Stück näher an Hamburg heran gerückt. Zusätzlich besteht mit der EVB eine direkte Bahnverbindung zwischen Bremerhaven - Bremervörde und Buxtehude. Anschlussstellen der Bundesautobahnen A 1 Hamburg-Bremen-Ruhrgebiet (Rade und Sittensen) und A 7 Hamburg-Hannover-Süddeutschland (HH-Heimfeld) sind in etwa 15 bzw. 30 Minuten erreichbar. Buxtehude bietet alle Einkaufsmöglichkeiten des täglichen Bedarfs und noch ein wenig mehr sowie diverse Ärzte, Apotheken und ein Krankenhaus. Die Stadt zeichnet sich besonders durch ihre Familienfreundlichkeit aus. Von rund 20 Kindergärten bis zum Gymnasium ist alles vorhanden. Die Hochschule 21 bildet z.B. Bauingenieure und Immobilienfachleute aus. Sehenswert ist die historische Altstadt mit vielen Geschäften und dem Stadthafen. Umgeben von Wiesen und dem Neukloster Forst hat Buxtehude selbst viel Grün zu bieten. Und wem das nicht reicht: Ins Alte Land mit seinen Obstplantagen oder an die Elbe ist es wirklich nur ein Katzensprung!
Sonstige Angaben
Wir freuen uns über das große Interesse an unseren Immobilienangeboten. Aufgrund der Vielzahl an Anfragen sowie wiederholten unangemessenen Reaktionen (z. B. auf Absagen) sehen wir uns derzeit nicht mehr in der Lage auf jede E-Mail zu reagieren. Vielen Dank für Ihr Verständnis!
Alle in dieser Expertise stehenden Angaben zum Mietobjekt sind von dem Eigentümer, Behörden und anderen Dritten zur Verfügung gestellt worden. Selbstverständlich wurden alle Angaben mit größter Sorgfalt überprüft. Wir können für die Richtigkeit und die Aktualität dieser Angaben jedoch trotz hoher Sorgfalt keine Gewähr und keine Haftung übernehmen. Soweit die Grundrissgrafiken Maßangaben und Einrichtungen enthalten, wird auch für diese jegliche Haftung ausgeschlossen. Wir können auch nicht gewährleisten, dass zum Zeitpunkt des Zugangs des Exposés oder zu einem späteren Zeitpunkt das Objekt noch zur Vermietung steht. Das Angebot ist insoweit unverbindlich und freibleibend. Bitte beachten Sie unsere AGB`s.
Besichtigungen sind auf Wunsch des Vermieters und aus Diskretionsgründen ausschließlich mit unserem Büro zu vereinbaren.
Weitere Immobilienangebote finden Sie unter: www.makler-puttkammer.de
Grundriss
Kellergeschoss-Grundriss
>
>
Erdgeschoss-Grundriss
>
>
Dachgeschoss-Grundriss
>
>
Adresse
Gartenstraße 1, 21614 Buxtehude
Interessante Orte
Preis- und Lageinformationen
Preistrend für Bestandsimmobilien in Buxtehude