Dieses Mehrfamilienhaus, erbaut im Jahr 2025/6, bietet eine hervorragende Möglichkeit für Familien, die ein komfortables und modernes Zuhause suchen. Die Immobilie besticht durch ihre solide Bauweise mit einer 20 cm dicken Styropordämmung, die auf einem 25 cm starken Porotonstein angebracht ist. Diese Konstruktion sorgt für eine ausgezeichnete Energieeffizienz und ein angenehmes Wohnklima.
Insgesamt entstehen hier gerade 8 hoch moderne Wohneinheiten mit unterschiedlichen Wohnungsgrößen. Fertigstellung soll Ende März 2026 sein, wenn das Wetter hält.
Der großzügige Gartenbereich hinter dem Haus lädt zum Entspannen und Spielen ein und bietet viel Raum für individuelle Gestaltungsmöglichkeiten. Die Zufahrt zum Haus ist bequem und bietet ausreichend Platz für mehrere Fahrzeuge.
Aktuell wird die Außendämmung erstellt, was die energetische Effizienz des Hauses weiter steigern wird. Diese Modernisierungsmaßnahmen unterstreichen den hohen Standard der Immobilie und machen sie zu einer zukunftssicheren Investition.
Die ruhige Umgebung und die großzügigen Grünflächen schaffen eine ideale Wohnatmosphäre für Familien. Hier können Kinder ungestört spielen, während die Eltern die Ruhe genießen.
Ihre Küche können Sie individuell planen und einbauen lassen.
Die ersten Besichtigungen finden nicht vor dem 20. Januar 2026 statt.
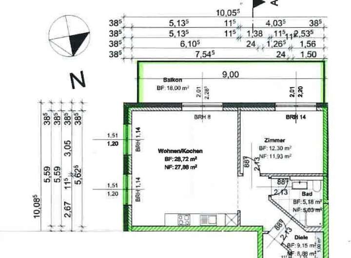
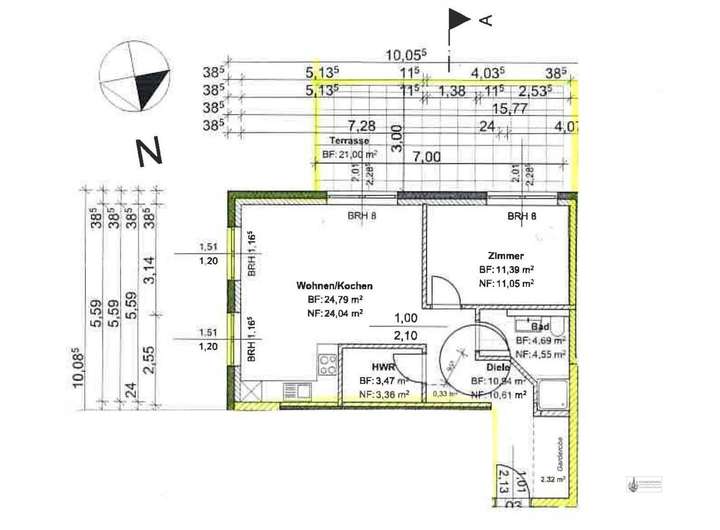
Schauen Sie sich die Übersicht über die jeweiligen Wohneinheiten an und suchen Sie sich gerne eine speziell für Ihre Wünsche passende Wohnung aus. Gerne reservieren wir Ihnen diese Wohnung bis zum Besichtigungstermin.
Neubau Fertigstellung März 2026 moderne Technik Rollläden + Stellplatz
28844 Weyhe
Die vollständige Adresse der Immobilie erhalten Sie vom Anbieter.
Auf Karte anzeigen
Die vollständige Adresse der Immobilie erhalten Sie vom Anbieter.
Infos
| Haustyp | Mehrfamilienhaus |
|---|---|
| Etagenzahl | 3 |
| Wohnfläche ca. | 60 m2 |
| Grundstücksfläche | 931 m2 |
| Zimmer | 2 |
| Schlafzimmer | 1 |
| Badezimmer | 1 |
| Garage/Stellplatz | Garage |
| Anzahl Garage/Stellplatz | 1 |
Kosten
| Kaltmiete |
0 € |
|---|---|
| Nebenkosten | + 250 € |
| Heizkosten | in Nebenkosten enthalten |
| Gesamtmiete | 250 € |
| Kaution o. Genossenschaftsanteile | 3 KM |
Weiter mieten oder doch kaufen?
Wer in Miete wohnt, überweist dem Vermieter im Laufe der Jahre hohe Summen, die sich
auch in die eigenen vier Wände investieren lassen könnten.
Bausubstanz & Energieausweis
| Baujahr | 2026 |
|---|---|
| Objektzustand | Gepflegt |
| Qualität der Austattung | Gehoben |
| Heizungsart | Zentralheizung |
| Energieausweis | laut Gesetz nicht erforderlich |
Beschreibung des Objekts
Ausstattung
- Mehrfamilienhaus ( 8 Parteien )
- Baujahr 2025/6
- 20 cm Styropordämmung vor 25 cm Porotonstein
- Aktuell wird die Außendämmung angebracht
- Große Grünfläche im hinteren Gartenteil
- Zufahrt zum Haus vorhanden
- Ruhige Wohngegend mit viel Grün
- Gute Anbindung an die Umgebung
- Ihre eigene Küche bringen Sie mit
- Luft - Wärme - Pumpe
- 3 adrige Elektrik mit Fi Schutzschalter
- Lüftungsanlage
- .....
Lage
Die Immobilie befindet sich in der ruhigen und familienfreundlichen Umgebung von Weyhe, genauer gesagt in der Straße Junkernhof 7. Diese Lage bietet ideale Voraussetzungen für Familien, die ein sicheres und kindgerechtes Wohnumfeld suchen.
In unmittelbarer Nähe befinden sich mehrere Spielplätze, der nächste ist nur etwa 115 Meter entfernt, was für Kinder ein Paradies zum Spielen und Entdecken darstellt. Auch das Freizeitzentrum Mühlenkamp ist in wenigen Minuten zu Fuß erreichbar und bietet zahlreiche Möglichkeiten für Freizeitaktivitäten.
Für Familien mit schulpflichtigen Kindern ist die Lage besonders attraktiv, da die Grundschule Leeste und die Kooperative Gesamtschule Leeste jeweils nur etwa 450 Meter entfernt sind. Auch der Kindergarten Hombachstraße ist mit einer Entfernung von rund 685 Metern gut erreichbar.
Die Nahversorgung ist durch mehrere Supermärkte wie famila, REWE und Netto Marken-Discount gesichert, die alle in einem Umkreis von etwa 530 bis 640 Metern liegen. Zudem gibt es in der Nähe eine Vielzahl von Restaurants, darunter das Döner Haus und die Pizzeria Fratelli, die jeweils nur wenige Gehminuten entfernt sind.
Für die medizinische Versorgung ist ebenfalls gesorgt, da die Kinder- & Jugendarztpraxis Sönke Hinz in etwa 810 Metern erreichbar ist.
Die Anbindung an den öffentlichen Nahverkehr ist durch die nahegelegene Bahnstation Leeste und mehrere Bushaltestellen, darunter der Busplatz Leeste in nur 125 Metern Entfernung, hervorragend. Dies ermöglicht eine unkomplizierte Verbindung in die umliegenden Städte und Gemeinden.
Zusätzlich ist die Immobilie gut an das Straßennetz angebunden, was eine schnelle Erreichbarkeit der Autobahn gewährleistet. Der nächste Flughafen, Bremen Airport, ist etwa 15 Kilometer entfernt und bietet internationale Verbindungen.
Die Umgebung zeichnet sich durch eine hohe Eigentümerquote von 58,7 % aus, was auf eine stabile und gepflegte Nachbarschaft hinweist. Mit einem durchschnittlichen Alter von 46,7 Jahren und einem Bevölkerungsanteil von 14,5 % unter 18 Jahren bietet Weyhe eine ausgewogene Altersstruktur.
Insgesamt bietet diese Immobilie in Weyhe eine hervorragende Kombination aus ruhiger Wohnlage, guter Infrastruktur und vielfältigen Freizeitmöglichkeiten, die speziell auf die Bedürfnisse von Familien zugeschnitten sind.
Adresse
28844 Weyhe
Interessante Orte
Preis- und Lageinformationen
Preistrend für Bestandsimmobilien in Weyhe