ACHTUNG: Erstkontaktaufnahme bitte NUR über das Kontaktformular!
Zu vermieten ist eine grundlegend modernisierte und neu ausgebaute freistehende Remise, deren Wohnräume sich auf zwei Ebenen erstrecken. Dieses Einfamilienhaus bietet moderne und hochwertig ausgestattete 3,5 in einer sehr individuellen und ansprechenden Architektur.
Im Zuge der sehr umfangreichen Modernisierung und Neugestaltung wurde eine effiziente Fußbodenheizung verbaut sowie die Raumaufteilung gänzlich modifiziert.
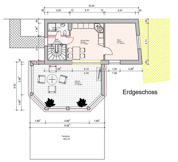
Im Erdgeschoss stehen dem neuen Nutzer ein sehr großzügig geschnittener Wohngbereich zur Verfügung. Dank der großen Fensterflächen Richtung Garten sowie zusätzlicher Oberlichter ist der Bereich bestens belichtet. Der hier sowie im gesamten Wohnbereich verlegte Fliesenboden ist pflegeleicht und harmoniert bestens mit der Fußbodenheizung.
Optisch besticht der Wohnbereich durch die ansprechend gestaltete Echtholzbalkendecke, die sich auch in den Räumen des Obergeschosses wiederfindet.
Vom Wohnbereich aus gelangt man über eine große Terrassen-Schiebetür direkt in den zugehörigen Gartenbereich mit der Terrasse. Diese bietet eine Sonnenmarkise und ist aufgrund der umlaufenden immergrünen Hecke vor fremden Blicken weitestgehend geschützt.
Der kleine Gartenbereich kann nach eigenen Vorstellungen gestaltet werden.
Wohlige Wärme bietet der im Wohnzimmer installierte Kaminofen (Schwedenofen), der aber auch optisch ein Blickfang ist.
Die an den Wohnbereich angrenzende Küche bietet hervorragende Stellmöglichkeiten sowie alle Anschlüsse.
Ein weiteres Zimmer angrenzend an den Wohnbereich ist als Schlaf- ,Kinder- oder Gästezimmer geeignet.
Im vorderen Flurbereich steht ein separates, zeitlos gefliestes Gäste-Bad mit WC, Waschtisch zur Verfügung.
Von Flur aus gelangt man über eine Massivholztreppe in das schön gestaltete Obergeschoss. Hier oben bietet das Haus ein schön geschnittenes Zimmer, ideal als Elternschlafzimmer. Dieser praktisch geschnittene Raum bietet einerseits Zugang in ein kleineres halbes Zimmer, dass sich bestens als Ankleidezimmer eignet. Auf der anderen Seite bietet es die direkte Anbindung an das große helle Badzimmer. Dies bietet neben einer ebenerdigen Echtglasdusche auch eine Badewanne, WC sowie Waschtischanlage (letztere kann vom Vormieter übernommen werden).
Ein separater Anschluss- und Abstellraum bietet Platz für die Waschmaschine.
PKW-Stellplätze auf dem Hof können auf Wunsch zusätzlich angemietet werden.
Modernisierte, individuelle Remise mit 3,5 Zi, FB-Heizung, Kaminofen u. Garten in ruhiger Ortslage!
15562 Rüdersdorf bei Berlin
Die vollständige Adresse der Immobilie erhalten Sie vom Anbieter.
Auf Karte anzeigen
Die vollständige Adresse der Immobilie erhalten Sie vom Anbieter.
Infos
| Etagenzahl | 2 |
|---|---|
| Wohnfläche ca. | 122 m2 |
| Grundstücksfläche | 85 m2 |
| Bezugsfrei ab | sofort |
| Zimmer | 3,5 |
| Schlafzimmer | 2 |
| Badezimmer | 2 |
| Haustiere | Nach Vereinbarung |
| Anzahl Garage/Stellplatz | 1 |
Kosten
| Kaltmiete |
1.450 € |
|---|---|
| Nebenkosten | + 205 € |
| Heizkosten | in Nebenkosten enthalten |
| Gesamtmiete | 1.862 € |
| Miete für Garage/Stellplatz | 0 € |
| Kaution o. Genossenschaftsanteile | 4.350 € |
Weiter mieten oder doch kaufen?
Wer in Miete wohnt, überweist dem Vermieter im Laufe der Jahre hohe Summen, die sich
auch in die eigenen vier Wände investieren lassen könnten.
Bausubstanz & Energieausweis
| Baujahr | 2013 |
|---|---|
| Letzte Sanierung | 2013 |
| Objektzustand | Modernisiert |
| Qualität der Austattung | Gehoben |
| Heizungsart | Fußbodenheizung |
| Wesentliche Energieträger | Umweltwärme |
| Energieausweis | liegt vor |
| Energieausweistyp | Verbrauchsausweis |
| Energieverbrauchskennwert | 55,8 kWh/(m²*a) |
| Energieeffizienzklasse | B |
55,8
kWh/(m²*a)
Energieeffizienzklasse B
- A+
- A
- B
- C
- D
- E
- F
- G
- H
- 0
- 25
- 50
- 75
- 100
- 125
- 150
- 175
- 200
- 225
- >250
Beschreibung des Objekts
Ausstattung
Heizungsanlage:
Zentralheizungsanlage mit Warmwasserversorgung, unterstützt durch eine Luft-Wasser-Wärmepumpe
Fußbodenheizung auf beiden Ebenen
Fenster:
moderne dreifachverglaste Fenster
Außen-Rollläden im Erdgeschoss
Bodenbeläge:
zeitlose hochwertige Bodenfliesen
Einbauküche:
ja (kann vom Vormieter übernommen werden)
Badezimmer:
hochwertig gefliest mit wandhängendem WC, moderner Waschtischanlage, Badewanne, bodengleicher Echtglasdusche im OG
Gäste-Duschbad mit WC im EG
Waschmaschinenstellplatz:
im separaten Raum
Terrasse:
ja, große Sonnenterrasse am Wohnzimmer/Küche
TV-Empfang:
über hauseigene SAT-Anlage
Lage
Das Einfamilienhaus liegt in einer ruhigen Anliegerstraße in zweiter Reihe, umgeben von Ein- und Mehrfamilienhäusern.
Nur etwa 5 Laufminuten entfernt befindet sich die Straßenbahnhaltestelle der Linie 88, die über Schöneiche direkt bis zum S-Bahnhof Berlin-Friedrichshagen und in entgegengesetzter Richtung nach Alt-Rüdersdorf fährt. Die Buslinie 950, die zum S-Bahnhof Strausberg sowie zum S-Bahnhof Erkner fährt, ist ebenfalls fußläufig erreichbar.
Rüdersdorf verfügt über einen guten Mix aus Dienstleistern, Arztpraxen sowie Einzelhandelsgeschäften. Beispielsweise sind die Sparkasse, Berliner Volksbank, ein Optiker sowie eine Apotheke, aber auch ein Bäcker und Fleischer schnell erreichbar. Der nächste Lebensmittelmarkt ist ca. 400 m entfernt.
Die nächste Autobahnauffahrt zur A10 ist nur etwa 4 Kilometer entfernt und bietet eine gute Anbindung bis zum Flughafen Berlin-Tegel oder Berlin-Schönefeld. Die nahegelegene Bundesstraße B1/B5 führt direkt in das Berliner Stadtzentrum und zum Alexanderplatz.
Die nächstgelegenen Orte wie Erkner, Strausberg oder Neuenhagen sind auf kurzem Wege zu erreichen.
Grundriss
Grundriss EG
>
>
Grundriss OG
>
>
Adresse
15562 Rüdersdorf bei Berlin
Interessante Orte
Preis- und Lageinformationen
Preistrend für Bestandsimmobilien in Rüdersdorf bei Berlin