Exklusive Stadtvilla im Toskana-Stil in Hamburg-Schnelsen
Diese außergewöhnliche Stadtvilla im begehrten Toskana-Stil vereint mediterranes Wohngefühl mit großzügigem Raumangebot und hochwertiger Ausstattung. In ruhiger und attraktiver Lage von Hamburg-Schnelsen bietet dieses Einfamilienhaus ein luxuriöses Zuhause für anspruchsvolle Mieter, die Wert auf Komfort, Großzügigkeit und eine besondere Wohnatmosphäre legen.
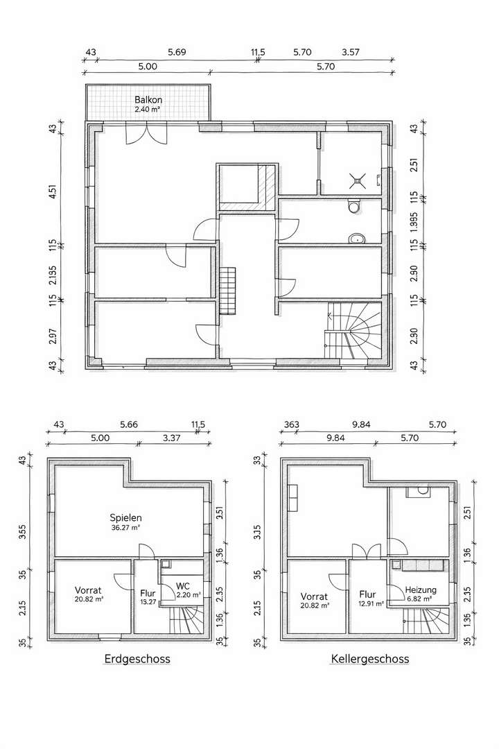
Bereits beim Betreten des Hauses empfängt Sie ein einladender und repräsentativer Eingangsbereich. Das Herzstück des Erdgeschosses bildet der sehr große, lichtdurchflutete Wohn- und Essbereich, der ein offenes und zugleich gemütliches Wohngefühl vermittelt. Der angrenzende Wintergarten erweitert den Wohnraum harmonisch und schafft einen wunderbaren Übergang in den Garten – ideal für entspannte Stunden zu jeder Jahreszeit.
Die großzügige Küche bietet viel Platz zum Kochen, Genießen und Zusammenkommen. Ergänzt wird das Erdgeschoss durch ein stilvolles Gäste-WC. Von hier aus gelangt man zudem in den voll unterkellerten Bereich des Hauses.
Der Keller ist vielseitig nutzbar und hochwertig ausgebaut. Neben einem großen Wasch- und Hauswirtschaftsraum mit zusätzlichen Abstellmöglichkeiten befindet sich hier ein geräumiges Schlafzimmer. Ein weiterer großer Spiel- und Hobbyraum, derzeit mit einer Tischtennisplatte ausgestattet, eröffnet zahlreiche Nutzungsmöglichkeiten – ob Fitnessraum, Heimkino oder kreativer Rückzugsort.
Im Obergeschoss erwartet Sie der exklusive Master-Bedroom-Bereich mit angrenzender Ankleide sowie einem beeindruckenden Wellnessbad. Dieses lässt keine Wünsche offen: Badewanne, großzügige Dusche, Sauna, Liegen und sogar ein Kühlschrank schaffen eine private Spa-Atmosphäre auf höchstem Niveau. Zusätzlich stehen ein weiteres Zimmer, ideal als Kinder- oder Arbeitszimmer, sowie eine separate Toilette zur Verfügung.
Der Außenbereich überzeugt ebenso: Ein großer, gepflegter Garten sowie eine sehr geräumige und schöne Terrasse laden zu entspannten Sommerabenden, Familienfeiern oder ruhigen Stunden im Grünen ein. Abgerundet wird dieses attraktive Angebot durch eine massiv gemauerte Doppelgarage.
Exklusive Stadtvilla im Toskana-Stil in Hamburg-Schnelsen - Anfragen bitte nur per Mail
22547 Hamburg
Die vollständige Adresse der Immobilie erhalten Sie vom Anbieter.
Auf Karte anzeigen
Die vollständige Adresse der Immobilie erhalten Sie vom Anbieter.
Infos
| Etagenzahl | 2 |
|---|---|
| Wohnfläche ca. | 170 m2 |
| Grundstücksfläche | 0 m2 |
| Zimmer | 3 |
| Schlafzimmer | 2 |
| Badezimmer | 2 |
Kosten
| Kaltmiete |
3.000 € |
|---|---|
| Nebenkosten | + 500 € |
| Heizkosten | in Nebenkosten enthalten |
| Gesamtmiete | 3.500 € |
Weiter mieten oder doch kaufen?
Wer in Miete wohnt, überweist dem Vermieter im Laufe der Jahre hohe Summen, die sich
auch in die eigenen vier Wände investieren lassen könnten.
Bausubstanz & Energieausweis
| Baujahr | 2002 |
|---|---|
| Objektzustand | Neuwertig |
| Qualität der Austattung | Gehoben |
| Heizungsart | Fußbodenheizung |
| Wesentliche Energieträger | Gas |
| Energieausweis | liegt vor |
| Energieausweistyp | Verbrauchsausweis |
| Energieverbrauchskennwert | 107,4 kWh/(m²*a) |
| Energieeffizienzklasse | D |
107,4
kWh/(m²*a)
Energieeffizienzklasse D
- A+
- A
- B
- C
- D
- E
- F
- G
- H
- 0
- 25
- 50
- 75
- 100
- 125
- 150
- 175
- 200
- 225
- >250
Beschreibung des Objekts
Ausstattung
Diese Stadtvilla ist ein seltenes Mietangebot in Hamburg-Schnelsen – luxuriös, großzügig und mit viel Liebe zum Detail gestaltet. Ein ideales Zuhause für alle, die das Besondere suchen.
Lage
Der Stadtteil Schnelsen gehört zu den beliebten, gewachsenen Wohnlagen im Nordwesten Hamburgs und verbindet ruhiges Wohnen mit einer sehr guten städtischen Infrastruktur. Geprägt von Ein- und Mehrfamilienhäusern sowie großzügigen Grünflächen bietet Schnelsen ein angenehmes Wohnumfeld für Familien, Paare und Berufspendler gleichermaßen.
Einkaufsmöglichkeiten für den täglichen Bedarf, Supermärkte, Bäckereien sowie diverse Fachgeschäfte befinden sich in unmittelbarer Umgebung. Ergänzt wird das Angebot durch Ärzte, Apotheken, Kindergärten und Schulen aller Schulformen, die den Stadtteil besonders familienfreundlich machen.
Die Verkehrsanbindung ist ausgezeichnet: Mehrere Buslinien sowie die nahegelegene Autobahnanbindung ermöglichen eine schnelle Erreichbarkeit der Hamburger Innenstadt, des Flughafens und des Umlands. Auch die Anbindung an den öffentlichen Nahverkehr sorgt für hohe Flexibilität im Alltag.
Für Freizeit und Erholung stehen zahlreiche Grün- und Naherholungsflächen zur Verfügung. Parks, Sportvereine sowie Spazier- und Radwege laden zu Aktivitäten im Freien ein. Gleichzeitig profitieren Bewohner von der Nähe zu Einkaufszentren und vielfältigen gastronomischen Angeboten.
Insgesamt zeichnet sich Schnelsen durch eine ausgewogene Kombination aus urbaner Nähe, guter Infrastruktur und hoher Wohnqualität aus.
Grundriss
image0
>
>
Adresse
22547 Hamburg
Interessante Orte
Preis- und Lageinformationen
Preistrend für Bestandsimmobilien in Schnelsen