Dieses kernsanierte Einfamilienhaus bietet mit ca. 180 m² Wohnfläche, 6 Zimmern und 3 modernen Bädern ideale Voraussetzungen für Familien, die langfristig, ruhig und energieeffizient wohnen möchten.
Die Immobilie verbindet die solide Substanz eines Hauses aus dem Jahr 1960 mit zeitgemäßer Technik und hochwertiger Ausstattung - einziehen und wohlfühlen ohne Renovierungsaufwand.
Der großzügige Wohn- und Essbereich mit Parkettboden bildet das Herzstück des Hauses und bietet viel Platz für gemeinsames Familienleben. Große Fensterflächen sorgen für eine helle, freundliche Atmosphäre.
Das ca. 800 m² große Grundstück mit gepflegtem Garten und großer, überdachter Terrasse lädt zum Entspannen, Spielen und Verweilen ein.
⸻
Ausstattung & Highlights
-Neue Fernwärmeheizung - effizient & umweltfreundlich
-Gedämmtes Dach (Südwestseite) mit PV-Anlage - Eigenstromnutzung
-Elektrik und Wasserleitungen vollständig erneuert
Doppelt verglaste Fenster mit elektrischen Außenrollläden (App-steuerbar)
Glasfaseranschluss sowie Kat-7-Netzwerk in nahezu allen Räumen
3 modern sanierte Bäder, darunter:
Hauptbad mit Fußbodenheizung, ebenerdiger Dusche & Badewanne
Parkettboden im Wohn- und Essbereich
Hochwertiger Laminatboden in den weiteren Wohnräumen
Große, überdachte Terrasse mit Blick in den Garten
Garage mit elektrischem Tor sowie zusätzlicher Carport
⸻
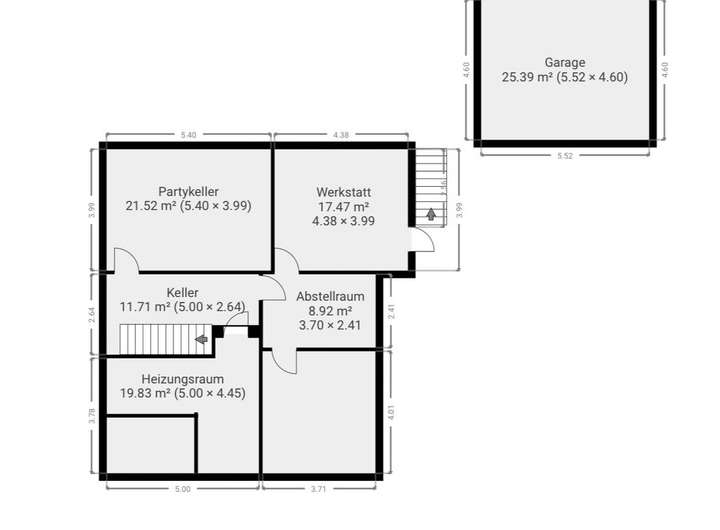
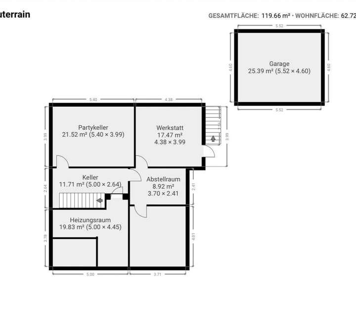
Untergeschoss / Nutzfläche
Das ca. 70 m² große Untergeschoss bietet vielseitige Nutzungsmöglichkeiten:
Party- oder Hobbyraum mit integrierter Bar
Werkstatt
Hauswirtschaftsraum
zusätzliche Abstell- und Lagerräume
Kernsaniertes Einfamilienhaus 180qm3 mieten
31637 Rodewald
Die vollständige Adresse der Immobilie erhalten Sie vom Anbieter.
Auf Karte anzeigen
Die vollständige Adresse der Immobilie erhalten Sie vom Anbieter.
Infos
| Haustyp | Einfamilienhaus |
|---|---|
| Etagenzahl | 2 |
| Wohnfläche ca. | 180 m2 |
| Nutzfläche | 70 m2 |
| Grundstücksfläche | 800 m2 |
| Bezugsfrei ab | 01.02.2026 |
| Zimmer | 6 |
| Schlafzimmer | 3 |
| Badezimmer | 3 |
| Garage/Stellplatz | Garage |
| Anzahl Garage/Stellplatz | 1 |
Kosten
| Kaltmiete |
1.550 € |
|---|---|
| Nebenkosten | + 160 € |
| Heizkosten | + 140 € |
| Gesamtmiete | 1.850 € |
| Kaution o. Genossenschaftsanteile | 3500 EUR |
Weiter mieten oder doch kaufen?
Wer in Miete wohnt, überweist dem Vermieter im Laufe der Jahre hohe Summen, die sich
auch in die eigenen vier Wände investieren lassen könnten.
Bausubstanz & Energieausweis
| Baujahr | 1960 |
|---|---|
| Objektzustand | Erstbezug nach Sanierung |
| Wesentliche Energieträger | Fernwärme |
| Energieausweis | liegt zur Besichtigung vor |
Beschreibung des Objekts
Ausstattung
Terrasse, Garten, Keller, Vollbad, Duschbad, Gäste-WC, Parkett, Laminat, Fliesen
Bemerkungen:
Das Haus überzeugt durch seine durchdachte Sanierung, moderne Haustechnik und den großzügigen Grundriss.
Dank Fernwärme, PV-Anlage und erneuerter Infrastruktur ist die Immobilie zukunftssicher aufgestellt.
Auf Wunsch kann die Garage gerne gemietet werden, sie ist nicht im Mietpreis enthalten.
Lage
Die Immobilie befindet sich in ruhiger, familienfreundlicher Lage in 31637 Rodewald:
-Kindergarten und Grundschule direkt im Ort
-Einkaufsmöglichkeiten und Tankstelle in ca. 800 m Entfernung
-Sehr gute Verkehrsanbindung - die A7 ist in ca. 20 Minuten erreichbar
Die Lage eignet sich ideal für Familien und Berufspendler, die naturnah wohnen und dennoch gut angebunden sein möchten.
Infrastruktur (im Umkreis von 5 km):
Apotheke, Lebensmittel-Discount, Allgemeinmediziner, Kindergarten, Grundschule, Öffentliche Verkehrsmittel
Sonstige Angaben
Heizungsart: Sonstiges (s. Text)
Energieträger: Fernwärme
Energieausweis nicht vorhanden
Bitte senden Sie uns mit Ihrer Anfrage eine kurze Vorstellung Ihrer Person(en) und Angaben zur beruflichen Situation. Vielen Dank.
Das Objekt befindet sich zur Zeit in Fertigstellung und wird Anfang 2026 bezugsfertig.
Makleranfragen nicht erwünscht. Nach § 7 UWG sind unaufgeforderte Kontaktaufnahmen durch Makler ohne ausdrückliche Einwilligung des Empfängers verboten!
ohne-makler (OM) ist weder Anbieter noch Vermittler der Immobilie. OM betreibt eine Plattform für Immobilieneigentümer, die unter anderem die gleichzeitige Veröffentlichung einzelner Inserate auf mehreren Immobilienportalen ermöglicht. Die Inhalte dieser Inserate werden ausschließlich von Dritten verantwortet. Für die Richtigkeit, Vollständigkeit oder Rechtmäßigkeit der Angaben übernimmt OM keine Haftung. Hinweise auf mögliche Rechtsverstöße können jederzeit gemeldet werden und werden nach Prüfung umgehend bearbeitet.
Grundriss
Wohnfläche
>
>
Keller
>
>
Adresse
31637 Rodewald
Interessante Orte
Preis- und Lageinformationen
Preistrend für Bestandsimmobilien in Rodewald