Willkommen in Ihrem neuen Zuhause. Dieses exklusive, freistehende Einfamilienhaus wurde im Jahr 2019 erbaut und präsentiert sich nach einer umfassenden Renovierung (2025) in absolut neuwertigem Zustand. Auf einer großzügigen Wohnfläche von ca. 283 m² und einem ca. 657 m² großen Grundstück verbindet diese Immobilie modernes Design mit höchstem Wohnkomfort.
Das Haus erstreckt sich über zwei Etagen und bietet mit 6,5 Zimmern viel Raum für individuelle Entfaltung. Drei hochwertige Badezimmer sowie ein separates Gäste-WC sorgen für entspannte Morgenroutinen auch in größeren Familien. Das Objekt ist vollständig unterkellert und verfügt über eine eigene Garage. Die Beheizung erfolgt über eine moderne Gasheizung. Das Haus ist ab dem 01.02.2026 bezugsfrei.
Exklusives Wohnen am Weltkulturerbe: Neuwertiges Einfamilienhaus bei Kassel
Himmelsborn 19,
34317 Habichtswald
Auf Karte anzeigen
Infos
| Haustyp | Einfamilienhaus |
|---|---|
| Etagenzahl | 2 |
| Wohnfläche ca. | 283 m2 |
| Nutzfläche | 43,7 m2 |
| Grundstücksfläche | 657 m2 |
| Bezugsfrei ab | 01.02.2026 |
| Zimmer | 6,5 |
| Schlafzimmer | 3 |
| Badezimmer | 3 |
| Garage/Stellplatz | Garage |
| Anzahl Garage/Stellplatz | 1 |
Kosten
| Kaltmiete |
2.830 € |
|---|---|
| Nebenkosten | + 470 € |
| Heizkosten | in Nebenkosten enthalten |
| Gesamtmiete | 3.300 € |
| Kaution o. Genossenschaftsanteile | 8490 EUR |
Weiter mieten oder doch kaufen?
Wer in Miete wohnt, überweist dem Vermieter im Laufe der Jahre hohe Summen, die sich
auch in die eigenen vier Wände investieren lassen könnten.
Bausubstanz & Energieausweis
| Baujahr | 2019 |
|---|---|
| Objektzustand | Neuwertig |
| Heizungsart | Zentralheizung |
| Wesentliche Energieträger | Gas |
| Energieausweis | liegt vor |
| Energieausweistyp | Verbrauchsausweis |
| Energieverbrauchskennwert | 40,2 kWh/(m²*a) |
| Energieeffizienzklasse | A+ |
40,2
kWh/(m²*a)
Energieeffizienzklasse A+
- A+
- A
- B
- C
- D
- E
- F
- G
- H
- 0
- 25
- 50
- 75
- 100
- 125
- 150
- 175
- 200
- 225
- >250
Beschreibung des Objekts
Ausstattung
Balkon, Terrasse, Garten, Keller, Dachterrasse, Vollbad, Duschbad, Einbauküche, Gäste-WC, Barrierefrei, Fliesen
Bemerkungen:
Das Herzstück des Hauses ist die bereits enthaltene Premium-Einbauküche. Diese lässt für Hobbyköche keine Wünsche offen und beinhaltet High-End Miele Küchengeräte wie eine Kaffeemaschine, eine integrierte Fritteuse, einen BBQ-Grill sowie ein Tepan Yaki Kochfeld.
*Hinweis zur Visualisierung:*
Um Ihnen das volle Potenzial dieser Räume aufzuzeigen, wurden die Bilder mittels "Virtual Staging" digital möbliert. Bitte beachten Sie, dass die visualisierten Einrichtungsgegenstände (wie der dargestellte Whirlpool, die Sauna, die Kücheninsel oder spezielle Einbauschränke) nicht Teil des Angebots sind. Übergeben wird das Haus im frisch renovierten und unmöbilirten Zustand, inklusive der oben beschriebenen Küchenzeile (ohne Kochinsel).
Lage
Die Immobilie befindet sich in bester Lage von Eheln - idyllisch gelegen im direkten "Hinterland" des Kasseler Wahrzeichens. Sie wohnen hier in unmittelbarer Nachbarschaft zum UNESCO-Weltkulturerbe Bergpark Wilhelmshöhe und dem Herkules. Genießen Sie die Ruhe und die Natur des Naturparks Habichtswald direkt vor der Haustür, ohne auf die Vorzüge der Stadt verzichten zu müssen.
Die Anbindung ist hervorragend: Die Innenstadt von Kassel ist mit dem Auto in wenigen Minuten erreichbar. Durch die nahegelegene Auffahrt zur A44 sind Sie zudem optimal an das Fernverkehrsnetz angebunden. Vor Ort in Habichtswald finden Sie eine ausgezeichnete Infrastruktur mit Einkaufsmöglichkeiten, Schulen, Ärzten und Dienstleistern des täglichen Bedarfs - eine perfekte Symbiose aus naturnahem Wohnen und städtischer Anbindung.
Infrastruktur (im Umkreis von 5 km):
Apotheke, Lebensmittel-Discount, Allgemeinmediziner, Kindergarten, Grundschule, Öffentliche Verkehrsmittel
Sonstige Angaben
Heizungsart: Zentralheizung
Energieträger: Gas
Makleranfragen nicht erwünscht. Nach § 7 UWG sind unaufgeforderte Kontaktaufnahmen durch Makler ohne ausdrückliche Einwilligung des Empfängers verboten!
ohne-makler (OM) ist weder Anbieter noch Vermittler der Immobilie. OM betreibt eine Plattform für Immobilieneigentümer, die unter anderem die gleichzeitige Veröffentlichung einzelner Inserate auf mehreren Immobilienportalen ermöglicht. Die Inhalte dieser Inserate werden ausschließlich von Dritten verantwortet. Für die Richtigkeit, Vollständigkeit oder Rechtmäßigkeit der Angaben übernimmt OM keine Haftung. Hinweise auf mögliche Rechtsverstöße können jederzeit gemeldet werden und werden nach Prüfung umgehend bearbeitet.
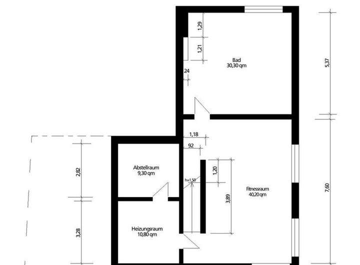
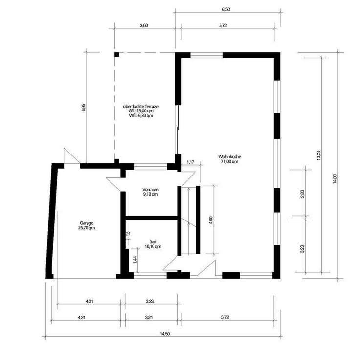
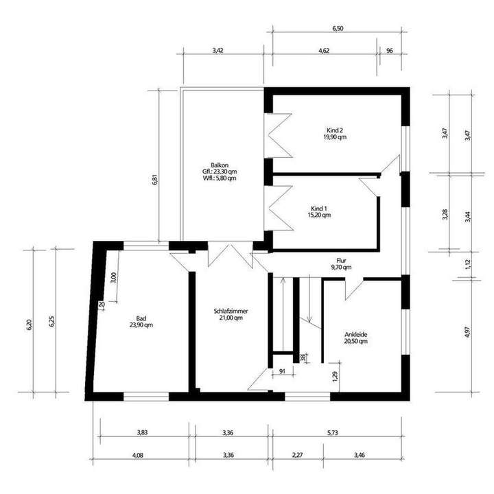
Grundriss
Erdgeschoss
>
>
Obergeschoss
>
>
Untergeschoss
>
>
Adresse
Himmelsborn 19, 34317 Habichtswald
Interessante Orte
Preis- und Lageinformationen
Preistrend für Bestandsimmobilien in Habichtswald