Dieses freistehende Einfamilienhaus wird Sie begeistern!
Hier kann man z.B. Wohnen und Arbeiten problemlos verbinden.
Auch für eine große Familie ist es geeignet.
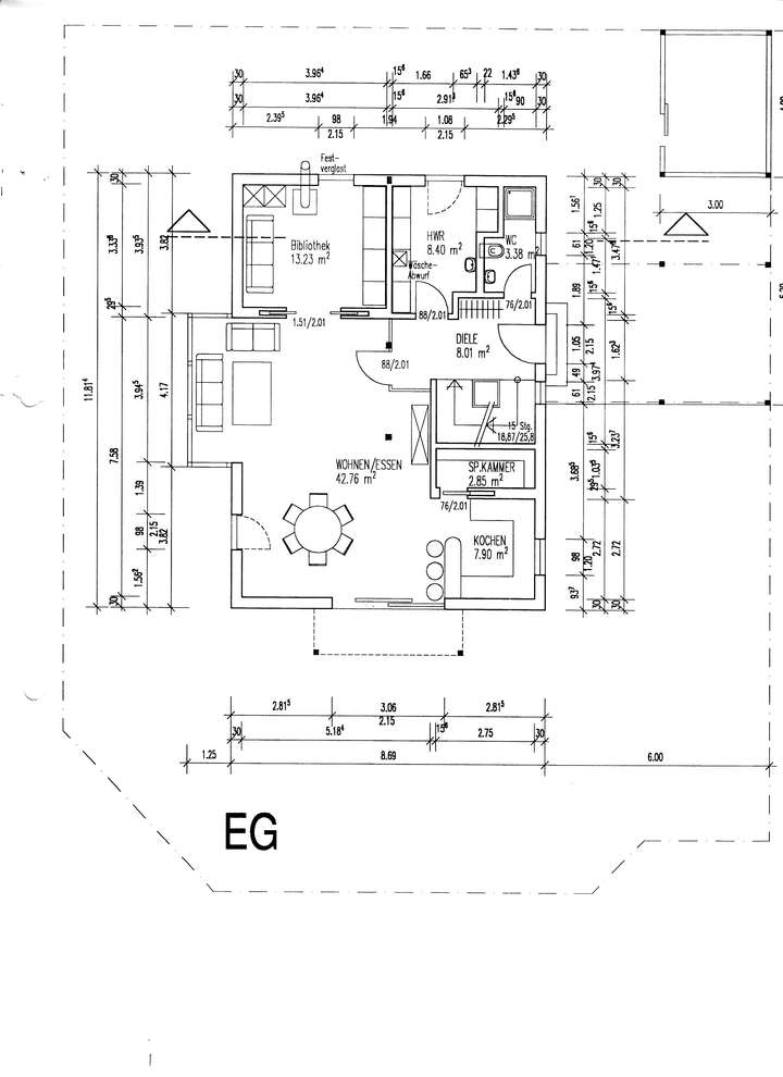
Im EG befindet sich ein großzügiges Wohnzimmer mit Erker, das mit dem Esszimmer und der offenen Küche (inkl. Einbauküche und Speisekammer) verbunden ist. Vom Esszimmer aus gelangen Sie durch eine Schiebetür direkt auf die große Terrasse und den kleinen Garten. An das Wohnzimmer schließt sich eine Bibliothek an. Sie ist ausgestattet mit hochwertigen Bücherregalen und einem Kaminofen für gemütliche Stunden am Feuer. Außerdem befindet sich im Erdgeschoss ein Gäste-WC mit Dusche und ein großzügiger Hauswirtschaftsraum, der auch von außen zugänglich ist.
Das ganze Haus ist sehr hell und offen konzipiert.
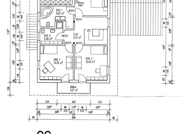
Im 1. Stock befinden sich 2 Kinderzimmer mit eigenem Duschbad. Der Balkon ist von beiden Zimmern aus begehbar. Das Elternschlafzimmer ist ausgestattet mit Ankleide und Bad en suite. Durch die (teilweise) bodentiefen Fenster und die sehr hohen (Holz-) Decken entsteht in allen Zimmern im OG ein tolles Raumgefühl.
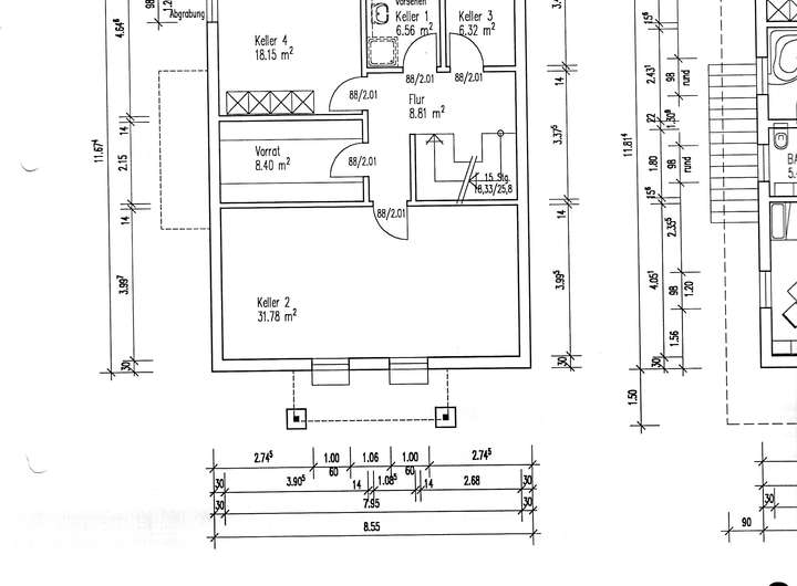
Im UG befindet sich ein vollwertiges Gäste- bzw. Arbeitszimmer mit großem Fenster, ein großer Hobbyraum und ein großer Keller (mit Technikraum).
Das Haus wurde in ökologischer Bauweise erbaut. Die verwendeten Materialien sind alle sehr hochwertig (z.B. Bodenbeläge: Granit, Echtholzparkett, Fußbodenheizung..)
Viele Extras warten auf Sie:
z.B. ein Wäscheabwurfschacht vom Elternschlafzimmer direkt in den darunter liegenden Hauswirtschaftsraum, ein Carport direkt am Haus, so dass Sie immer "trockenen Fußes" ins Haus gelangen und Eiskratzen der Vergangenheit angehört, eine Eckbadewanne direkt unter einem runden Bullaugen-Fenster im Elternbad, eine Regendusche, elektrische Rolläden, ein Amerikanischer Kühlschrank in der Küche, eine Regenwasserzisterne, .Echtholzparkett, Granitboden, Sat-Anlage, Kaminofen uvm.
Infos
| Haustyp | Einfamilienhaus |
|---|---|
| Etagenzahl | 2 |
| Wohnfläche ca. | 220 m2 |
| Nutzfläche | 290 m2 |
| Grundstücksfläche | 450 m2 |
| Bezugsfrei ab | 1.1.2026 |
| Zimmer | 7,5 |
| Schlafzimmer | 4 |
| Badezimmer | 3 |
| Haustiere | Nach Vereinbarung |
| Garage/Stellplatz | Carport |
| Anzahl Garage/Stellplatz | 2 |
Kosten
| Kaltmiete |
2.500 € |
|---|---|
| Nebenkosten | + 300 € |
| Heizkosten | keine Angabe |
| Gesamtmiete | 2.800 € (zzgl. Heizkosten) |
| Kaution o. Genossenschaftsanteile | 3 MM |
Weiter mieten oder doch kaufen?
Wer in Miete wohnt, überweist dem Vermieter im Laufe der Jahre hohe Summen, die sich
auch in die eigenen vier Wände investieren lassen könnten.
Bausubstanz & Energieausweis
| Baujahr | 2002 |
|---|---|
| Letzte Sanierung | 2021 |
| Objektzustand | Neuwertig |
| Qualität der Austattung | Gehoben |
| Heizungsart | Fußbodenheizung |
| Wesentliche Energieträger | Gas |
| Energieausweis | liegt vor |
| Energieausweistyp | Verbrauchsausweis |
| Energieverbrauchskennwert | 48,0 kWh/(m²*a) |
| Energieeffizienzklasse | A |
48,0
kWh/(m²*a)
Energieeffizienzklasse A
- A+
- A
- B
- C
- D
- E
- F
- G
- H
- 0
- 25
- 50
- 75
- 100
- 125
- 150
- 175
- 200
- 225
- >250
Beschreibung des Objekts
Lage
Das Haus befindet sich am Ende eines Wendehammers. Die Straße wird nur von den (wenigen) Anwohnern befahren.
In Wald und Feld sind es weniger als 5 Gehminuten.
Messel ist ein charmanter Ort mit ca. 4.000 Einwohnern. Es gibt 2 Kindergärten und eine Grundschule. Mit Bus und Bahn gelangen Sie problemlos nach Darmstadt, Frankfurt. Aschaffenburg..usw.
Mit dem Auto brauchen Sie ca. 15 Minuten nach Darmstadt und ca. 20 Minuten an den Frankfurter Flughafen.
Grundriss
Grundriss Erdgeschoss
>
>
Grundriss Obergeschoss
>
>
Grundriss Untergeschoss
>
>
Adresse
Amselweg 6, 64409 Messel
Interessante Orte
Preis- und Lageinformationen
Preistrend für Bestandsimmobilien in Messel