Im Kundenauftrag zu vermieten:
6 hoch energieeffiziente Neubau-Doppelhaushälften im KfW40-QNG Standard im neuen Wohnquartier "Zur alten Post" im Treeneort Treia, perfekt zwischen Nord- und Ostsee gelegen.
Im beliebten Treia und damit zwischen Nord- und Ostsee und den Kreisstädten Schleswig und Husum entsteht auf dem Gelände des ehemaligen Matthiesen-Hofes ein modernes Wohnquartier, bestehend aus vier Mehrfamilienhäusern mit jeweils sechs Wohneinheiten sowie drei Doppelhäusern.
Die hier zur Miete angebotenen sechs baugleichen Doppelhaushälften mit ihren jeweils 3 Zimmern bieten moderne Wohn- und Lebensqualität sowohl für Singles als auch für Paare jeden Alters. Ein drittes Zimmer, ideal nutzbar als Büro oder als Gästezimmer, ergänzt das Raumangebot.
Die Aufteilung der Räume ist durchdacht und zeitgemäß. Die offene Küche bildet mit dem über 30 m² großen Wohnzimmer eine Einheit. Der Technikraum zwischen den nach Süden ausgerichteten Terrassen bietet Platz für das Unterstellen von Gartenmöbeln.
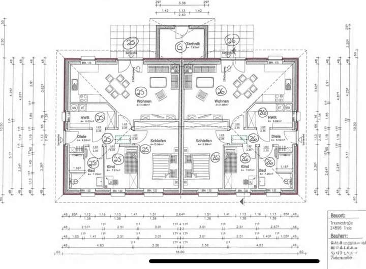
Die Wohnflächen der Doppelhaushälften liegen bei jeweils ca. 82 m². Ergänzt werden diese um einen Abstellraum auf dem Dachboden mit ca. 60 m² sowie um große und nach Süden ausgerichtete Terrassen.
Für die sechs Doppelhaushälften steht ein überdachter und abschließbarer Fahrradbereich zur Verfügung.
Gebaut wird ausschließlich nach den neuesten Sicherheits- und Qualitätsstandards. Die selben hohen Maßstäbe gelten für Schallschutz, Fluchtwege und Brandschutz. Moderne, gütegeprüfte Qualitätsfenster mit Dreifachverglasung und widerstandsfähige Türanlagen bieten Sicherheit und Wärmedämmung in Einem.
Die zeitgemäße Optik trifft auf moderne Bauelemente, wodurch ein stilvolles Ambiente entsteht. Um ein attraktives und zusammengehöriges Bild zu schaffen, wurde bei der Planung großer Wert darauf gelegt, die Gebäude durch Materialien und Bauweise einheitlich und hochwertig zu gestalten.
Eine energieeffiziente und zukunftssichere Biogas-Fernheizung, ausgehend vom Technikraum und der Anschluss an die Versorgungsmedien (Wasser, Strom, Telefon und Glasfaser) machen das Rundum-Paket komplett. Alle zu heizenden Räume werden zudem mit einer Fußbodenheizung ausgestattet. Die Duschen sind bodengleich mit Edelstahlablaufrinne geplant.
Monatliche Kaltmiete: 975,-- € zzgl. 240,-- € Nebenkostenvorauszahlung inklusive Heizung, exklusive Strom;
Warmmiete: 1.215,--€/Monat inklusive Heizung, exklusive Strom;
Für jede Doppelhaushälfte kann ein offener PKW-Stellplatz für 25,-- EUR mtl. zugemietet werden.
Angaben laut EnEV
Neu zu errichtende Gebäude gem. § 80 (1) GEG; ein Energieausweis liegt seitens des Eigentümers noch nicht vor. Dieser wird unverzüglich nach Fertigstellung und Übergabe des Hauses den neuen Mietern zur Verfügung gestellt.
Heizungsart: Fernwärme-Zentralheizung (Biogas)
Erstvermietung! Neubau-Doppelhaushälfte mit 3 Zimmern in höchstwertiger KfW40-QNG-Bauweise in Treia!
24896 Treia
Die vollständige Adresse der Immobilie erhalten Sie vom Anbieter.
Auf Karte anzeigen
Die vollständige Adresse der Immobilie erhalten Sie vom Anbieter.
Infos
| Haustyp | Doppelhaushaelfte |
|---|---|
| Wohnfläche ca. | 82 m2 |
| Nutzfläche | 60 m2 |
| Grundstücksfläche | 6.180 m2 |
| Bezugsfrei ab | 01.02.2026 |
| Zimmer | 3 |
| Garage/Stellplatz | Außenstellplatz |
| Anzahl Garage/Stellplatz | 1 |
Kosten
| Kaltmiete |
975 € |
|---|---|
| Nebenkosten | + 180 € |
| Heizkosten | + 60 € |
| Gesamtmiete | 1.215 € (zzgl. Heizkosten) |
| Kaution o. Genossenschaftsanteile | 3,00 KM |
Weiter mieten oder doch kaufen?
Wer in Miete wohnt, überweist dem Vermieter im Laufe der Jahre hohe Summen, die sich
auch in die eigenen vier Wände investieren lassen könnten.
Bausubstanz & Energieausweis
| Baujahr | 2025 |
|---|---|
| Objektzustand | Erstbezug |
| Qualität der Austattung | Gehoben |
| Heizungsart | Zentralheizung |
| Energieausweis | laut Gesetz nicht erforderlich |
Beschreibung des Objekts
Ausstattung
Individuelle Ausstattungsmerkmale:
- gute Infrastruktur
- Neubau
Ebenerdiger Wohnkomfort:
Mit dem ebenerdigen Wohnen decken Sie jede Phase Ihres Lebens ab.
Intelligente Grundrisse:
Die Doppelhaushälften sind komfortabel geschnitten, ca. 82 Quadratmeter groß und weisen ein durchdachtes und stimmiges Raumkonzept auf.
PKW-Stellplätze:
Je Doppelhaushälfte kann für 25,-- EUR mtl. ein offener PKW-Stellplatz gemietet werden.
Außenanlagen:
Die Hauszugänge, Zufahrten, Terrassen, Fahrrad- und sonstigen Zufahrtswege werden in Betonsteinpflaster grau einschließlich des erforderlichen Unterbaus verlegt. Die Parkflächen werden aus farblich abgesetzten Steinen hergestellt.
Schlüsselfertige Übergabe:
Sie müssen sich um nichts kümmern: Sie erhalten eine schlüsselfertige Immobilie, welche zum Einzug bereit ist (inklusive Einbauküche).
Lage
Treia liegt an der Bundesstraße 201 zwischen Husum und Schleswig an dem Fluss Treene, dessen früherer Name “Trae-Aa” (Holz-Au) wohl auch Ursprung für den Ortsnamen ist. Auch heute noch prägt ein hoher Waldanteil das Bild der Gemeinde, die über 1500 Einwohner zählt. Die bevorzugte Lage fast genau zwischen den Kreisstädten Husum und Schleswig und damit die Nähe zur Nord- und Ostsee, macht Treia zu einem idealen Wohnort für Pendler sowie als Ausgangsort für Touren im nördlichen Schleswig-Holstein und ins südliche Dänemark. Die Treene selbst ist als Angler- und Paddlerparadies weit über regionale Grenzen hinaus bekannt. Die vielen Rad- und Fußwege ergänzen das touristische Angebot. Leistungsstarke Betriebe aus Handwerk, Handel und Gewerbe haben die Entwicklung des Ortes getragen, dabei hat sich Treia seinen dörflichen Charakter bewahren können. Man grüßt sich auch heute noch mit einem “Moin”.
Im Ort ist ein Hautarzt, eine Frauenärztin sowie ein Zahnarzt ansässig. Für Medikamente steht eine Apotheke zur Verfügung. Der überregional bekannte Landgasthof Osterkrug, ein Lebensmittelmarkt, eine Bäckerei, ein Bistro, ein großer Baumarkt sowie diverse weitere Betriebe ergänzen die ortsansässige Infrastruktur.
Weitere Informationen unter treia.de
Grundriss
Grundriss Doppelhaus
>
>
Grundriss
>
>
Adresse
24896 Treia
Interessante Orte
Preis- und Lageinformationen
Preistrend für Bestandsimmobilien in Treia