Die Historische Villa aus der Gründerzeit wurde ca. 1898 auf einem gleichmäßig geschnittenen Grundstück (492qm) erbaut und in den Jahren 2005/06 behutsam u. denkmalgerecht vollständig kernsaniert.
Hierbei wurde ein grosszügiges Bad, ein Wellnessbereich u. eine Dachterrasse neu geschaffen.
In 2025 wurden einige Modernisierungs-, u. Sanierungsmassnahmen durchgeführt.
Die Ausstattung ist als äußerst hochwertig u. luxuriös zu bezeichnen!!!
Die Wohn- u. Nutzfläche von ca. 650qm verteilt sich auf 3 Ebenen u. 12 Zimmern, 2x Bäder, 3x Balkone, 1x Terrassen im EG u. 1x Dachterrasse.
Im KG (Souterrain) steht Ihnen neben einem Hauswirtschaftsraum, Bad u. div. Kellerräumen u. Hobby-,u. Fitnessraum, noch eine ca. 40qm große Einliegerwohnung (1x Wohn/Schlafzimmer + Bad + Küche) mit separatem Eingang zur Verfügung.
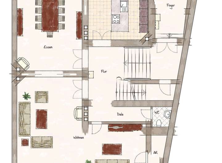
Im Erdgeschoss finden Sie ein großes Wohnzimmer, Esszimmer u. einen teilw. überdachten rückwärtigen Terrassenbereich mit Garten.
Eine geräumige Wohnküche (Sonderanfertigung Küche Marke Bulthaup), ein Abstell-, bzw. Vorratsraum, das ausladend, offen angelegte Treppenhaus u. ein Gäste-WC komplettieren den Wohn- u. Nutzbereich im Erdgeschoss.
Im Obergeschoß befinden sich 2 Schlafzimmer mit angrenzenden Ankleidezimmern und das Hauptbad mit XXL-Dusche u. Badewanne. An beiden Schlafzimmern (Vor-u. Rückseite) schließt jeweils ein Balkon an. Im Zwischengeschoss (Treppenhaus) befindet sich noch ein weiterer großer Abstellraum.
Im Dachgeschoss befinden sich 2 weitere Schlafzimmer mit angrenzender Terrasse, ein Gäste-, bzw. Arbeitszimmer, der großzügige Wellnessbereich mit Sauna, Solarium u. Duschbereich u. ein zusätzliches Badezimmer mit WC. Die darüberliegende Dachterrasse (ca. 50qm) wird über einen entsprechenden Treppenvorraum/Treppe erschlossen.
Ein PKW-Stellplatz steht ebenfalls auf einem angrenzenden Aussenplatz zur Verfügung.
Die Villa wird vollständig möbliert vermietet.
siehe Fotos!
Historische Villa aus der Gründerzeit auf Bonn`s schönster Allee
53113 Bonn
Die vollständige Adresse der Immobilie erhalten Sie vom Anbieter.
Auf Karte anzeigen
Die vollständige Adresse der Immobilie erhalten Sie vom Anbieter.
Infos
| Haustyp | Villa |
|---|---|
| Etagenzahl | 3 |
| Wohnfläche ca. | 650 m2 |
| Nutzfläche | 80 m2 |
| Grundstücksfläche | 492 m2 |
| Bezugsfrei ab | 01.02.2026 |
| Zimmer | 12 |
| Schlafzimmer | 5 |
| Badezimmer | 3 |
| Haustiere | Nein |
| Garage/Stellplatz | Außenstellplatz |
| Anzahl Garage/Stellplatz | 1 |
Kosten
| Kaltmiete |
9.000 € |
|---|---|
| Nebenkosten | + 1.500 € |
| Heizkosten | in Nebenkosten enthalten |
| Gesamtmiete | 10.500 € |
| Kaution o. Genossenschaftsanteile | 3 Monatskaltmieten Kaution |
Weiter mieten oder doch kaufen?
Wer in Miete wohnt, überweist dem Vermieter im Laufe der Jahre hohe Summen, die sich
auch in die eigenen vier Wände investieren lassen könnten.
Bausubstanz & Energieausweis
| Baujahr | 1898 |
|---|---|
| Letzte Sanierung | 2025 |
| Objektzustand | Saniert |
| Qualität der Austattung | Luxus |
| Heizungsart | Zentralheizung |
| Wesentliche Energieträger | Gas |
| Energieausweis | laut Gesetz nicht erforderlich |
Beschreibung des Objekts
Ausstattung
Konventionelle Massivbauweise mit stuckverzierter Fassade aus der Gründerzeit.
Alle Räume verfügen über, dem Baujahr entsprechend hohe Decken (EG=4.32m/ OG=4.13m), die Untersichten ebenfalls stuckverziert.
Böden:
-alle Wohnräume - Massivparkett
-Treppenhaus - Marmor u. Holz, massiv
Wände: Feinputz gespachtelt, hell gestrichen
Bäder/WCs:
- großformatige Fliesen, Mosaik u. Naturstein
- Urinal, Waschtische, Spiegel, XXL-Badewanne u. Dusche, sämtliche Einrichtungen sind Einzelanfertigungen
-Terrassen/Balkone: Holzdielen u. Terrazzobelag im EG
Küche: -Küchenblock u. Tisch, -Einzelanfertigungen aus Naturstein,
Einrichtung Marke Bulthaup -Sonderanfertigung
-Warmwasserversorgung:
Wasserspeicher -Gas-
- Heizung -Gastherme zentral-
Fenster:
- isoverglaste Kunststoffenster weiß. Die Fenster sind mit PVC-Rolläden versehen.
Türen: Holz u. Glas- Kassettentüren hell gestrichen
Fassade/Aussenhülle:
-massives Mauerwerk mit Stuckverzierungen u. Elementen aus der Gründerzeit, Feinputz hell gestrichen
Aussenanlagen: Vorgarten - Kies u. Bepflanzung;
rückwärtiger Garten - Bepflanzung/Rasen
Zuwegungen: - Natursteinpflaster
sonst wie siehe Fotos!
Lage
Das Objekt befindet sich in dem
äußerst beliebten Ortsteil Poppelsdorf (Südstadt) unmittelbar an Bonn`s schönster Allee u. unweit des Poppelsdorfer Schlosses gelegen.
Geschäfte für den täglichen Bedarf u. Freizeitmöglichkeiten sind in unmittelbarer Nähe vorhanden!
Es besteht eine hervorragende Verkehrsanbindung an die BAB 565,555, 3 sowie an die BAB 61. Die öffentlichen Verkehrsmittel sind in wenigen Minuten fußläufig zu erreichen.
Sämtliche Einkaufsmöglichkeiten, Schulformen, Kindergärten, Arztpraxen, Apotheken und die Innenstadt sind ebenfalls fußläufig zu erreichen.
Sonstige Angaben
Alle Angaben nach bestem Wissen u. Angaben Dritter/Auftraggeber, Irrtum vorbehalten. Gewähr u. Haftung für die Richtigkeit, Vollständigkeit u. Aktualität der Angaben wird daher nicht übernommen.
Sämtliche Bilder u. graphischen Darstellungen in diesem Expose sind Eigentum der JHB Immobilien u. dürfen nicht durch bzw. an Dritte weitergegeben u. genutzt werden.
Mit der Anfrage auf dieses Objekt erklärt der Interressent seine ausdrückliche Einwilligung zur Kontaktaufnahme durch Mitarbeiter der Fa.JHB Immobilien.
WICHTIG FÜR MIET-INTERESSENTEN:
Innenbesichtigungen nur nach entsprechender Terminvereinbarung u.
Absprache.
Bewerbung/Kontaktaufnahme bitte ausschließlich per email !
Wir werden uns dann umgehend mit Ihnen in Verbindung setzen.
Der anhängende Bewerbungsbogen (siehe pdf-Datei bei Dokumenten) ist spätestens zum ggfls. stattfindenden Besichtigungstermin mitzubringen !
Weitere Dokumente
WohnungsbewerbungGrundriss
Souterrain/UG
>
>
Erdgeschoss
>
>
Zwischengeschoss
>
>
Obergeschoss
>
>
Dachgeschoss
>
>
Dachaufsicht
>
>
Adresse
53113 Bonn
Interessante Orte
Preis- und Lageinformationen
Preistrend für Bestandsimmobilien in Poppelsdorf