Hier kannst du deine Miete in Eigentum umwandeln, denn jeder zahlt in seinem Leben mindestens EIN Haus, die Frage ist nun das Haus eines anderen oder endlich das eigene, denn es ist nie zu spät und selten zu früh. Unsere Immobilien können kombiniert werden mit Fördergeldern.
Dieses Objekt ist noch nicht gebaut und kann nicht besichtigt werden! Die Bilder zeigen ein Beispiel wie dein Traumhaus aussehen könnte. Andere Haustypen sind natürlich auch möglich!
Mietkauf: Flexibel ins moderne Leben starten
23743 Grömitz
Die vollständige Adresse der Immobilie erhalten Sie vom Anbieter.
Auf Karte anzeigen
Die vollständige Adresse der Immobilie erhalten Sie vom Anbieter.
Infos
| Haustyp | Einfamilienhaus |
|---|---|
| Wohnfläche ca. | 119 m2 |
| Nutzfläche | 0 m2 |
| Grundstücksfläche | 700 m2 |
| Zimmer | 5 |
| Schlafzimmer | 3 |
| Badezimmer | 1 |
| Anzahl Garage/Stellplatz | 0 |
Kosten
| Kaltmiete |
2.199 € |
|---|---|
| Nebenkosten | keine Angabe |
| Heizkosten | keine Angabe |
| Gesamtmiete | 2.199 € |
Weiter mieten oder doch kaufen?
Wer in Miete wohnt, überweist dem Vermieter im Laufe der Jahre hohe Summen, die sich
auch in die eigenen vier Wände investieren lassen könnten.
Bausubstanz & Energieausweis
| Baujahr | 2026 |
|---|---|
| Qualität der Austattung | Gehoben |
| Heizungsart | Wärmepumpe |
Beschreibung des Objekts
Ausstattung
Die Hausausstattung zeichnet sich durch einen niedrigen Energieverbrauch aus. Dank der Kombination von Wärmepumpen und einer PV-Anlage sind die Energiekosten daher insgesamt äußerst gering. Damit genießt du eine hohe Autarkie.
Lage
Dies ist ein real vorhandener Bauplatz in Brenkenhagen, einem charmanten Dorf in der Gemeinde Grömitz – nur wenige Kilometer von der Ostseeküste entfernt. Wer Ruhe, Natur und norddeutsche Gelassenheit sucht, findet hier einen besonderen Ort, der entschleunigt und inspiriert. Durch die einmalige Lage gibt es ganzjähriges Urlaubsfeeling frei Haus.
Bitte haben Sie dafür Verständnis, dass wir die genaue Adresse erst in einem persönlichen Gespräch bekannt geben! Anfragen werden nur mit komplett angegebenen Kontaktdaten bearbeitet.
Sonstige Angaben
Finanzierung ohne Eigenkapital möglich, bestehende Altschulden kein Hindernis, Bonität vorausgesetzt. Fragen Sie nach unserem Mietkaufmodell.
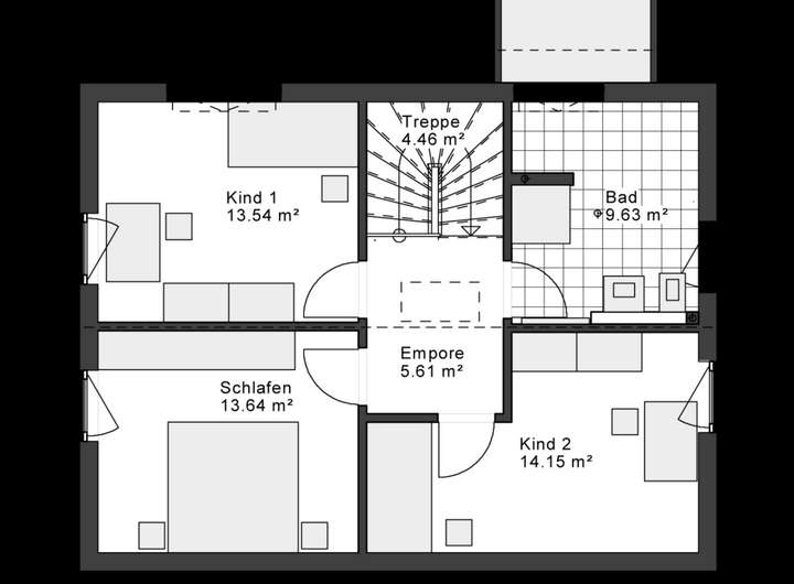
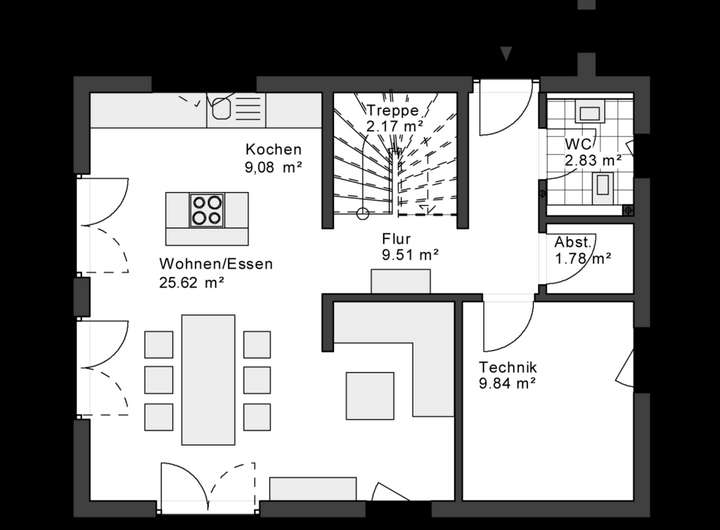
Bitte beachten Sie, dass die dargestellten Bilder und Grundrisse nur Beispiele sind. Zudem können sie Sonderbauteile sowie Sonderausstattungen enthalten, die nicht im Preis enthalten sind. Preise beinhalten keines Erwerbs- oder Baunebenkosten. Alle Angaben verstehen sich ohne Gewähr sowie unter Vorbehalt des Zwischenverkaufs. Preisbasis 2025.
Grundriss
Grundriss EG
>
>
Grundriss OG
>
>
Adresse
23743 Grömitz
Interessante Orte
Preis- und Lageinformationen
Preistrend für Bestandsimmobilien in Grömitz