Willkommen in Ihrem neuen Zuhause in der Bodenseeregion! Immenstaad am Bodensee, mit dem Erholungsort Kippenhausen liegt nur wenige Minuten vom See entfernt in ruhiger und naturnaher Lage.
Hier erwartet Sie ein modernisiertes freistehendes Einfamilienhaus mit Garten, Terrasse, Garage und drei Außenstellplätzen – für ein komfortables Familienleben auf hohem Niveau.
Das Haus hat 162 m² Wohnfläche inkl. Hobbyraum, 59 m² Nutzfläche und eine Grundstücksfläche von 239 m². Es verfügt über 6,5 Zimmer, zwei Badezimmer, ein Gäste-WC, eine Einbauküche, einen Vorratsraum und eine Waschküche mit Technik- und Heizraum.
Ausstattung:
- Erstbezug nach Sanierung
- Neue Einbauküche
- Neues Eichenparkett und neue Fliesen
- Bodentiefe Fenster
- Fußbodenheizung
- Erneuerte Badezimmer und erneuertes Gäste-WC
- Neu angelegte Außenanlage mit Terrasse
- Erneuerte Garage (neuer Boden und neues elektrisches Tor)
- Neue Gaszentralheizung und neue Heizkörper im Untergeschoss
- Elektrische Rollladen und neue Rollladengurte
Online-Besichtigung:
4K-virtueller Rundgang unter: https://youtu.be/yc3K9zVvDl4
Wichtig:
- Die Kosten für Strom und Gas sind nicht in den Nebenkosten enthalten und werden vom Mieter direkt mit den Versorgungsunternehmen abgerechnet.
- Die monatliche Miete setzt sich wie folgt zusammen:
Wohnfläche inkl. Hobbyraum: 2.200,00 EUR
+ Vorratsraum, Waschküche, Terrasse: 300,00 EUR
+ Garage: 100,00 EUR
+ Drei Außenstellplätze: 100,00 EUR
= Grundmiete monatlich: 2.700 EUR
+ Nebenkosten (Vorauszahlung): 150,00 EUR
= Gesamtmiete monatlich: 2.850,00 EUR
Vereinbaren Sie jetzt Ihren Besichtigungstermin und entdecken Sie Ihr neues Zuhause.
Bitte keine Anfragen von Maklern.
Modernes und schickes Einfamilienhaus in idyllischer Lage von Immenstaad-Kippenhausen
88090 Immenstaad am Bodensee
Die vollständige Adresse der Immobilie erhalten Sie vom Anbieter.
Auf Karte anzeigen
Die vollständige Adresse der Immobilie erhalten Sie vom Anbieter.
Infos
| Haustyp | Einfamilienhaus |
|---|---|
| Etagenzahl | 2 |
| Wohnfläche ca. | 162 m2 |
| Nutzfläche | 59 m2 |
| Grundstücksfläche | 239 m2 |
| Bezugsfrei ab | 1.2.2026 |
| Zimmer | 6,5 |
| Badezimmer | 3 |
| Haustiere | Nein |
Kosten
| Kaltmiete |
2.200 € |
|---|---|
| Nebenkosten | + 150 € |
| Heizkosten | keine Angabe |
| Gesamtmiete | 2.350 € (zzgl. Heizkosten) |
| Kaution o. Genossenschaftsanteile | 6.600,00 |
Weiter mieten oder doch kaufen?
Wer in Miete wohnt, überweist dem Vermieter im Laufe der Jahre hohe Summen, die sich
auch in die eigenen vier Wände investieren lassen könnten.
Bausubstanz & Energieausweis
| Baujahr | 2008 |
|---|---|
| Letzte Sanierung | 2025 |
| Objektzustand | Erstbezug nach Sanierung |
| Qualität der Austattung | Gehoben |
| Heizungsart | Zentralheizung |
| Wesentliche Energieträger | Gas |
| Energieausweis | liegt vor |
| Energieausweistyp | Bedarfsausweis |
| Energieverbrauchskennwert | 139,2 kWh/(m²*a) |
| Energieeffizienzklasse | E |
139,2
kWh/(m²*a)
Energieeffizienzklasse E
- A+
- A
- B
- C
- D
- E
- F
- G
- H
- 0
- 25
- 50
- 75
- 100
- 125
- 150
- 175
- 200
- 225
- >250
Beschreibung des Objekts
Lage
Kippenhausen ist ein malerischer Ortsteil von Immenstaad und begeistert durch seine ruhige, naturnahe Umgebung sowie seine charmante, dörfliche Atmosphäre. Eingebettet in sanfte Hügel, Obstgärten und Weinreben genießen Sie hier eine
hohe Lebensqualität fernab vom Trubel und sind dennoch nur wenige Minuten vom Bodensee entfernt. Die Nähe zum Hauptort Immenstaad bietet eine ausgezeichnete Infrastruktur: Einkaufsmöglichkeiten, Schulen, Kindergärten sowie
gastronomische Angebote sind bequem erreichbar. Eine Bushaltestelle in fußläufiger Entfernung sorgt für eine gute Anbindung an das öffentliche Verkehrsnetz – auch Richtung Friedrichshafen oder Überlingen. Besonders Familien, Naturliebhaber und Ruhesuchende schätzen Kippenhausen für seine entspannte Wohnatmosphäre sowie die Nähe zu Freizeit- und Erholungsmöglichkeiten rund um den Bodensee.
Hier verbindet sich das Beste aus zwei Welten: Ländliche Idylle mit starker Lebensqualität und die unmittelbare Nähe zum pulsierenden Leben der Bodenseeregion.
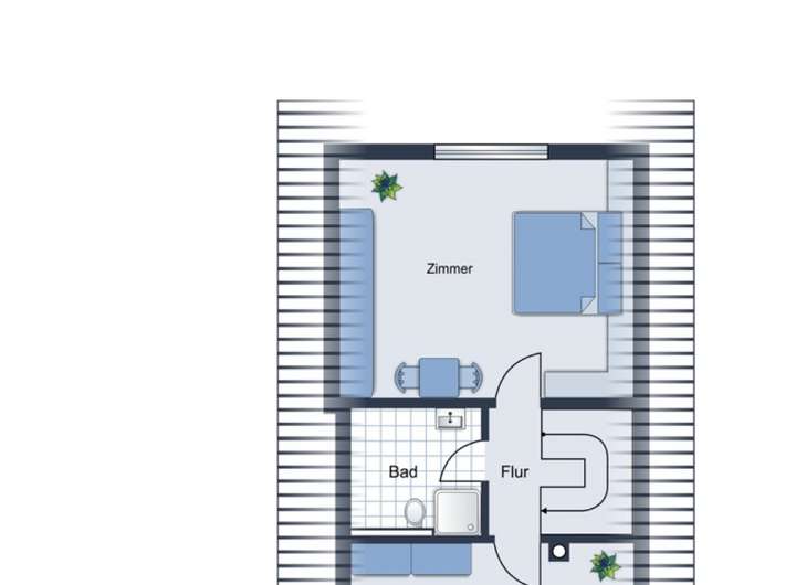
Grundriss
Grundriss EG
>
>
Grundriss OG
>
>
Grundriss DG
>
>
Grundriss UG
>
>
Adresse
88090 Immenstaad am Bodensee
Interessante Orte
Preis- und Lageinformationen
Preistrend für Bestandsimmobilien in Immenstaad am Bodensee