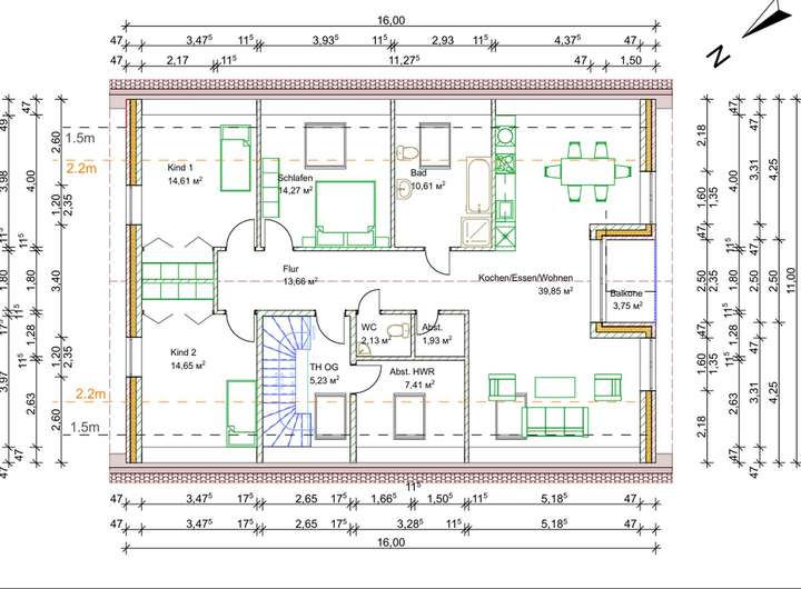
Zu vermieten steht eine Wohneinheit/Doppelhaushälfte im Obergeschoss mit einer Wohn- und Nutzfläche von ca. 137 m² verteilt auf 4 Zimmern sowie einem Gartenanteil.
Das Haus in massiver Bauweise besteht aus 2 Wohneinheiten (Erdgeschoss und Dachgeschoss) mit separaten Eingängen.
Die hier angebotene Wohneinheit befindet sich im Obergeschoss und bietet damit komfortables Wohnen auf einer Ebene.
Die Beheizung des Hauses erfolgt ausschließlich über Strom: Eine Luftwärmepumpe in Kombination mit einer 10 kWp-Photovoltaikanlage und einem 10 kWh-Stromspeicher deckt den größten Teil Ihres Heiz- und Strombedarf energieeffizient und umweltfreundlich ab.
Das Haus verfügt über einen modernen Glasfaseranschluss. Damit sind sehr hohe Internetgeschwindigkeiten möglich - ideal für Homeoffice, Streaming, Online-Gaming oder mehrere Nutzer gleichzeitig. Der Anschluss kann vom Mieter direkt bei einem Anbieter seiner Wahl aktiviert werden.
Die Lage überzeugt durch ihre verkehrsgünstige Position zwischen Hamburg und Lüneburg - ideal für Berufstätige und Pendler, die ruhiges Wohnen im Grünen schätzen. In nur fünf Minuten zu Fuß erreichen Sie die malerische Elbe sowie das Naturschutzgebiet Elbniederung von Avendorf bis Rönne, das zu Spaziergängen, Radtouren und Erholung in der Natur einlädt.
Ausstattung:
- Massive Bauweise
- Klinkerfassade
- Fenster 3-fach verglast
- Elektrische Rollläden
- Fußbodenheizung
- Bodengleiche Dusche und Vollbad (gefliest)
- Gäste-WC
- Abstellraum im EG und OG, sowie Dachboden
- Designer-Vinylböden
- Einbauküche (Kühlschrank & Geschirrspüler nicht inkl.)
- Eigener Garten
- Photovoltaikanlage 10 kWp (10 kWh-Speicher)
- Luftwärmepumpe
- Carport mit 2 Stellplätzen
- Vorbereitung für Ladestation von E-Autos (auf Wunsch)
Sprechen Sie uns gerne an - wir freuen uns auf Ihre Anfrage!
Traumhafte Haushälfte an der Elbe von Privat* Neubau*
Elbuferstraße 49a,
21395 Tespe
Auf Karte anzeigen
Infos
| Haustyp | Doppelhaushaelfte |
|---|---|
| Etagenzahl | 1 |
| Wohnfläche ca. | 137 m2 |
| Grundstücksfläche | 1.483 m2 |
| Bezugsfrei ab | nach Absprache |
| Zimmer | 4 |
| Schlafzimmer | 3 |
| Badezimmer | 1 |
| Garage/Stellplatz | Carport |
Kosten
| Kaltmiete |
1.650 € |
|---|---|
| Nebenkosten | keine Angabe |
| Heizkosten | keine Angabe |
| Gesamtmiete | 1.650 € |
Weiter mieten oder doch kaufen?
Wer in Miete wohnt, überweist dem Vermieter im Laufe der Jahre hohe Summen, die sich
auch in die eigenen vier Wände investieren lassen könnten.
Bausubstanz & Energieausweis
| Baujahr | 2025 |
|---|---|
| Objektzustand | Erstbezug |
| Wesentliche Energieträger | Umweltwärme |
| Energieausweis | liegt zur Besichtigung vor |
Beschreibung des Objekts
Ausstattung
Balkon, Garten, Vollbad, Duschbad, Einbauküche, Gäste-WC, Fliesen, Sonstiges (s. Text)
Lage
Infrastruktur (im Umkreis von 5 km):
Apotheke, Lebensmittel-Discount, Allgemeinmediziner, Kindergarten, Grundschule, Öffentliche Verkehrsmittel
Sonstige Angaben
Heizungsart: Fußbodenheizung
Energieausweis nicht vorhanden
Makleranfragen nicht erwünscht. Nach § 7 UWG sind unaufgeforderte Kontaktaufnahmen durch Makler ohne ausdrückliche Einwilligung des Empfängers verboten!
ohne-makler (OM) ist weder Anbieter noch Vermittler der Immobilie. OM betreibt eine Plattform für Immobilieneigentümer, die unter anderem die gleichzeitige Veröffentlichung einzelner Inserate auf mehreren Immobilienportalen ermöglicht. Die Inhalte dieser Inserate werden ausschließlich von Dritten verantwortet. Für die Richtigkeit, Vollständigkeit oder Rechtmäßigkeit der Angaben übernimmt OM keine Haftung. Hinweise auf mögliche Rechtsverstöße können jederzeit gemeldet werden und werden nach Prüfung umgehend bearbeitet.
Grundriss
Grundriss
>
>
Adresse
Elbuferstraße 49a, 21395 Tespe
Interessante Orte
Preis- und Lageinformationen
Preistrend für Bestandsimmobilien in Tespe