Dieses exklusive Einfamilienhaus in Stolberg (Rheinland) bietet auf ca. 250 m² Wohnfläche und 491 m² Grundstück eine gehobene Ausstattung und großzügige Räumlichkeiten. Das Haus verfügt über 5 Zimmer und 3 Badezimmer, was es ideal für Familien oder zur Nutzung als repräsentativer Wohnsitz macht. Ein Gäste-WC sowie 2 Außenstellplätze stehen zur Verfügung. Das Haus wird nach Absprache ab dem 1.4.2026 verfügbar sein.
3 Badezimmer werden mit großzügigen Duschen mit Glaswänden und ein Bad zusätzlich mit Badewanne und zweitem Waschbecken ausgestattet. Die Böden sind mit Eichenparkett belegt und die Treppen mit echtem Blaustein.
Alle Schlafzimmer sind mit Netzwerkanschlüssen ausgestattet und es gibt reichlich Steckdosen.
Die oberen Etagen werden mittels Wandheizung beheizt und der Lehmputz sorgt für ein perfektes Wohnklima!
Es werden zu den Fußleisten passende Weiße Türen und Zargen montiert.
Viele Arbeiten können auch nach Absprache erfolgen.
Das Außengelände und Teilarbeiten könnten unter Berücksichtigung beim Mietpreis bei Interesse durch den Mieter selbst ausgeführt werden.
Der Lehmputz kann mit Lehmfarben gestrichen werden, vermittelt in den jetzigen warmen Brauntönen ein gemütliches Wohnklima und ich persönlich würde immer ( Teile ) so lassen und beispielsweise nur die Decken oder einzelne Wände streichen. Dies kann nach Absprache auch gerne noch durch uns passieren.
Die Terrasse im Garten wird noch gepflastert, ebenso wie die Einfahrt. Im Garten wird noch Erde aufgeschüttet und Rollrasen verlegt. Die Dachterrasse wird noch mit Holz oder Steinplatten und einem Geländer ausgestattet!
Der dahinter gelegene Hang kann entweder frei gestaltet oder der Natur überlassen werden.
Das untere Geschoss wird noch mit einem Wärmedämmverbundsystem versehen!
Die linke Doppelhaushälfte steht kurze Zeit später ebenfalls zur Vermietung bereit.
Gleiches gilt für eine circa 190 m^2 große Wohnung ein Haus weiter.
Bei Fragen gerne Schreiben!
Viele Grüße
Exklusives Einfamilienhaus in Stolberg (Rheinland) mit 5 Zimmern
Leuwstraße 61,
52224 Stolberg (Rheinland)
Auf Karte anzeigen
Infos
| Haustyp | Doppelhaushaelfte |
|---|---|
| Etagenzahl | 4 |
| Wohnfläche ca. | 250 m2 |
| Grundstücksfläche | 491 m2 |
| Bezugsfrei ab | 1.4.2026 |
| Zimmer | 5 |
| Schlafzimmer | 4 |
| Badezimmer | 4 |
| Garage/Stellplatz | Außenstellplatz |
| Anzahl Garage/Stellplatz | 2 |
Kosten
| Kaltmiete |
2.300 € |
|---|---|
| Nebenkosten | + 250 € |
| Heizkosten | in Nebenkosten enthalten |
| Gesamtmiete | 2.550 € |
| Kaution o. Genossenschaftsanteile | 6.900,00 |
Weiter mieten oder doch kaufen?
Wer in Miete wohnt, überweist dem Vermieter im Laufe der Jahre hohe Summen, die sich
auch in die eigenen vier Wände investieren lassen könnten.
Bausubstanz & Energieausweis
| Baujahr | 2025 |
|---|---|
| Letzte Sanierung | 2025 |
| Objektzustand | Erstbezug |
| Qualität der Austattung | Gehoben |
| Heizungsart | Wärmepumpe |
| Wesentliche Energieträger | Umweltwärme |
| Energieausweis | liegt vor |
| Energieausweistyp | Bedarfsausweis |
| Energieverbrauchskennwert | 22,6 kWh/(m²*a) |
| Energieeffizienzklasse | A+ |
22,6
kWh/(m²*a)
Energieeffizienzklasse A+
- A+
- A
- B
- C
- D
- E
- F
- G
- H
- 0
- 25
- 50
- 75
- 100
- 125
- 150
- 175
- 200
- 225
- >250
Beschreibung des Objekts
Lage
Stolberg (Rheinland) ist eine Stadt mit historischem Charme und moderner Infrastruktur. Die Lage bietet eine gute Anbindung an das regionale Verkehrsnetz, was Pendlerwege erleichtert. Einkaufsmöglichkeiten für den täglichen Bedarf sowie diverse Dienstleister sind gut erreichbar. Die Umgebung lädt zu Freizeitaktivitäten im Grünen ein und bietet eine angenehme Wohnqualität.
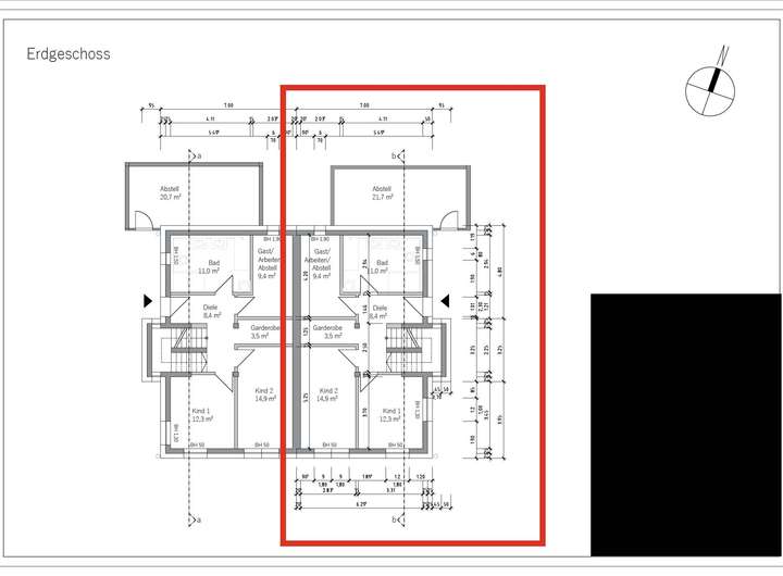
Grundriss
Dachgeschoss
>
>
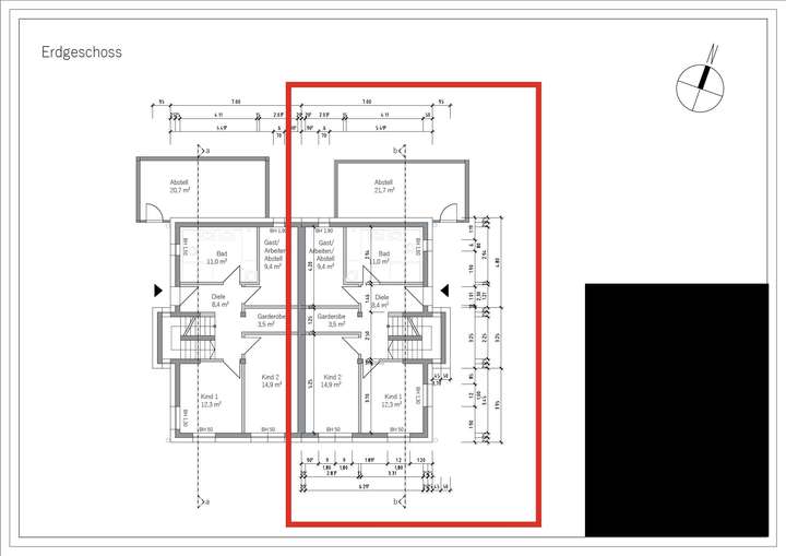
ErdgeschossEingang
>
>
KellerEbenerdigStraße
>
>
Lageplan
>
>
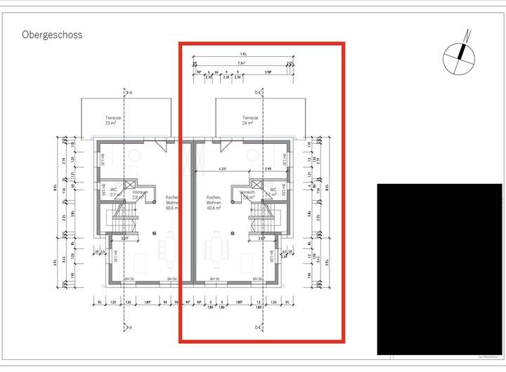
ObergeschossGarten
>
>
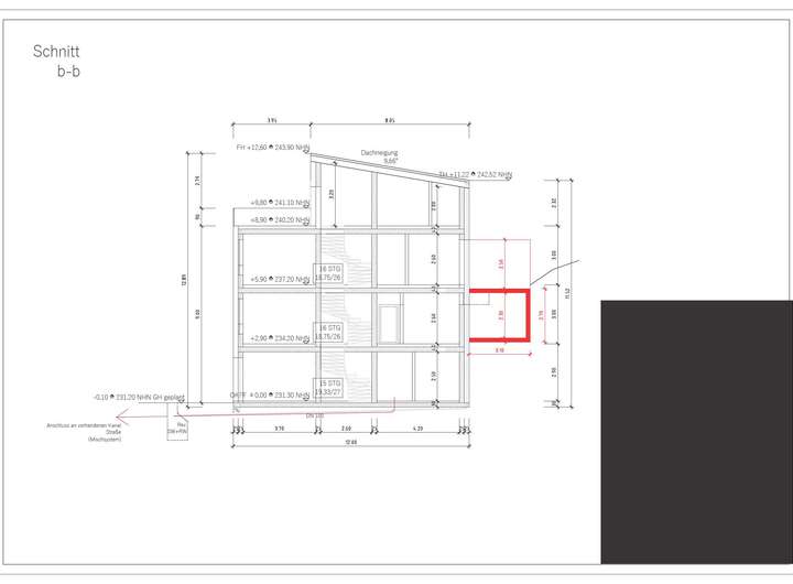
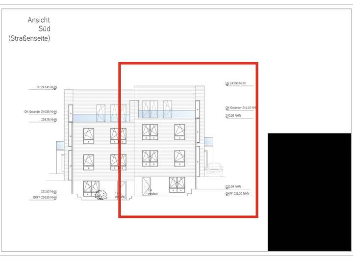
Schnitt
>
>
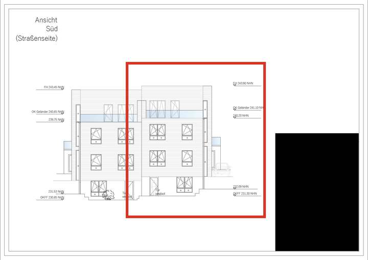
Straßenansicht1
>
>
Adresse
Leuwstraße 61, 52224 Stolberg (Rheinland)
Interessante Orte
Preis- und Lageinformationen
Preistrend für Bestandsimmobilien in Stolberg (Rheinland)