Frisch renoviertes Fachwerkhaus (Overath-Heiligenhaus) mit ca. 180 m² Wohnfläche und 7,5 Zimmern steht ab dem 01.02.2026 zur Vermietung. Ideal für Homeoffice Nutzung. Separat von aussen zugänglicher Büro- Praxisraum vorhanden.
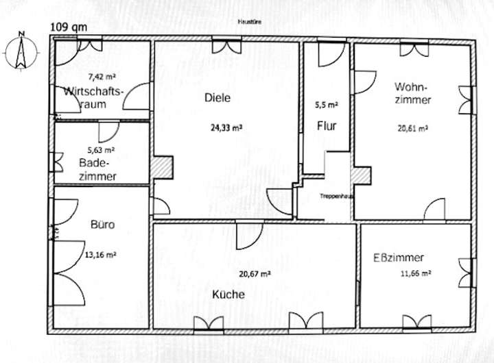
Das Haus wurde ursprünglich im Jahr 1856 erbaut und Ende 2025 modernisiert (demnach jetzt Erstbezug), was eine gelungene Verbindung von Altbaucharme und zeitgemäßem Wohnkomfort verspricht. Im Obergeschoss und Flur EG wurden neue Vinylböden in Holzoptik verlegt und neue weiße Türen mit schwarzen Türklinken verbaut.
Es erstreckt sich über zwei Etagen und verfügt über zwei neue, weiß gefließte Badezimmer (1x Dusche / 1x Badewanne, neue schwarze Armaturen) sowie eine gut ausgestattete Wohn-Küche (kann für 75€ gemietet werden). Ein Gewölbekeller bietet zusätzlichen Stauraum.
Zu dem Fachwerkhaus gehört ein ca 9qm großer, beheizter, hellgrau gefliester, abschließbarer Heizungsraum, der mit Licht / Steckdosen ausgestattet ist und ausreichend Platz für Fahrräder/ Gartengeräte bietet.
Renoviertes Fachwerkhaus 180qm mit 2 neuen Bädern u. separat zugänglichem Büro- / Praxisraum
51491 Overath
Die vollständige Adresse der Immobilie erhalten Sie vom Anbieter.
Auf Karte anzeigen
Die vollständige Adresse der Immobilie erhalten Sie vom Anbieter.
Infos
| Haustyp | Einfamilienhaus |
|---|---|
| Etagenzahl | 2 |
| Wohnfläche ca. | 180 m2 |
| Nutzfläche | 180 m2 |
| Grundstücksfläche | 500 m2 |
| Bezugsfrei ab | 1.2.2026 |
| Zimmer | 7 |
| Schlafzimmer | 4 |
| Badezimmer | 2 |
| Haustiere | Nach Vereinbarung |
| Garage/Stellplatz | Außenstellplatz |
| Anzahl Garage/Stellplatz | 2 |
Kosten
| Kaltmiete |
1.850 € |
|---|---|
| Nebenkosten | + 275 € |
| Heizkosten | keine Angabe |
| Gesamtmiete | 2.125 € (zzgl. Heizkosten) |
| Miete für Garage/Stellplatz | 80 € |
| Kaution o. Genossenschaftsanteile | 6500 |
Weiter mieten oder doch kaufen?
Wer in Miete wohnt, überweist dem Vermieter im Laufe der Jahre hohe Summen, die sich
auch in die eigenen vier Wände investieren lassen könnten.
Bausubstanz & Energieausweis
| Baujahr | 1856 |
|---|---|
| Letzte Sanierung | 2025 |
| Objektzustand | Erstbezug nach Sanierung |
| Qualität der Austattung | Normal |
| Heizungsart | Gas-Heizung |
| Energieausweis | liegt zur Besichtigung vor |
Beschreibung des Objekts
Lage
Das Haus befindet sich in Overath (Ortsteil Heiligenhaus) einer Stadt mit guter Verkehrsanbindung = Autobahn A3 + A4, Bus- Bahnanschluss.
Einkaufsmöglichkeiten für den täglichen Bedarf sowie Ärzte und Schulen sind gut erreichbar. Die Umgebung bietet zudem Freizeitmöglichkeiten im Grünen, die zur Erholung einladen.
Adresse
51491 Overath
Interessante Orte
Preis- und Lageinformationen
Preistrend für Bestandsimmobilien in Overath