Zur Vermietung steht diese außergewöhnliche, 2010 erbaute Villa in einer der begehrtesten Aussichtslagen von Landshut. Auf einer beeindruckenden Wohnfläche von ca. 291 m² bietet dieses Anwesen ein Höchstmaß an Wohnkomfort, Privatsphäre und technischer Raffinesse.
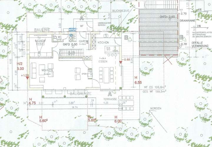
Das Haus besticht durch seine durchdachte Raumaufteilung über drei Etagen. Im Erdgeschoss bildet der großzügige Wohnbereich mit offenem Kamin das Herzstück des Hauses. Angrenzend befinden sich die offene vollausgestattete Küche mit angrenzendem Essbereich und Zugang zur großen Panoramaterrasse sowie ein separates Medienzimmer und eine Garderobe.
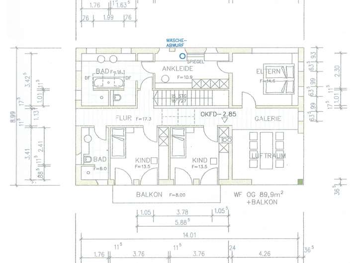
Das Obergeschoss ist als privater Rückzugsort konzipiert. Hier finden Sie den Elternbereich mit Ankleide, zwei geräumige Kinderzimmer, ein Kinderbadezimmer sowie das 2018 komplett erneuerte Hauptbadezimmer. Die vollverglaste Galerie bietet einen sensationellen Ausblick auf den eigenen Garten und die weitläufige Umgebung.
Das Untergeschoss verfügt über einen eigenen Wellnessbereich mit einer 2020 installierten Sauna und Dusche, ein WC, ein Gästezimmer und notwendige Nebenräume.
Die Immobilie befindet sich in einem energetisch hervorragenden Zustand (Energieeffizienzklasse B) und wird über eine umweltfreundliche Pelletheizung in Kombination mit Solarthermie versorgt.
Ausstattung & Highlights:
- Wohnfläche: ca. 291 m²
- Zimmer: 8+ (Wohnen, Essen, Medien, Eltern, 2x Kind, Gast, Wellness)
- Großzügiger Wellnessbereich im UG mit Sauna (Bj. 2020)
- Offener Kamin im Wohnzimmer für gemütliche Winterabende
- Hochwertiges Hauptbad (saniert 2018) und eigenes Kinderbadezimmer + Gäste-WC im EG & UG
- Große Sonnenterrasse mit Weitblick und Garten
- Große Doppelgarage (Tor erneuert)
Technik:
- Lüftungsanlage für optimales Raumklima
- Alarmanlage mit Direktschaltung zum Einsatzdienst (kostenpflichtig)
- Pelletheizung + Solarthermie für Warmwasser
Repräsentative Villa in Aussichtslage: Großzügiges Wohnen mit Wellnessbereich & Weitblick
84036 Landshut
Die vollständige Adresse der Immobilie erhalten Sie vom Anbieter.
Auf Karte anzeigen
Die vollständige Adresse der Immobilie erhalten Sie vom Anbieter.
Infos
| Haustyp | Villa |
|---|---|
| Wohnfläche ca. | 291 m2 |
| Grundstücksfläche | 825 m2 |
| Bezugsfrei ab | 15.04.2026 |
| Zimmer | 5 |
| Schlafzimmer | 5 |
| Badezimmer | 3 |
| Garage/Stellplatz | Garage |
| Anzahl Garage/Stellplatz | 2 |
Kosten
| Kaltmiete |
3.700 € |
|---|---|
| Nebenkosten | + 300 € |
| Heizkosten | keine Angabe |
| Gesamtmiete | 4.000 € |
| Kaution o. Genossenschaftsanteile | 3 Kaltmieten |
Weiter mieten oder doch kaufen?
Wer in Miete wohnt, überweist dem Vermieter im Laufe der Jahre hohe Summen, die sich
auch in die eigenen vier Wände investieren lassen könnten.
Bausubstanz & Energieausweis
| Baujahr | 2010 |
|---|---|
| Letzte Sanierung | 2018 |
| Objektzustand | Gepflegt |
| Qualität der Austattung | Luxus |
| Heizungsart | Fußbodenheizung |
| Wesentliche Energieträger | expose.parameter.energySourcesEnev2014.WOOD_CHIPS |
| Energieausweis | liegt vor |
| Energieausweistyp | Verbrauchsausweis |
| Energieverbrauchskennwert | 55,6 kWh/(m²*a) |
| Energieeffizienzklasse | B |
55,6
kWh/(m²*a)
Energieeffizienzklasse B
- A+
- A
- B
- C
- D
- E
- F
- G
- H
- 0
- 25
- 50
- 75
- 100
- 125
- 150
- 175
- 200
- 225
- >250
Beschreibung des Objekts
Lage
Die Immobilie befindet sich in exklusiver Höhenlage von Landshut. Diese Adresse steht für Ruhe, gehobene Nachbarschaft und einen unverbaubaren Blick über die Stadt und das Umland. Trotz der idyllischen Lage ist das Stadtzentrum von Landshut mit seiner historischen Altstadt, Schulen und Einkaufsmöglichkeiten schnell erreichbar.
Landshut ist eine charmante Stadt in Niederbayern, die für ihre gut erhaltene Altstadt und das imposante Schloss bekannt ist. Der Stadtteil Landshut zeichnet sich durch seine ruhige und dennoch zentrale Lage aus. In unmittelbarer Nähe zur Villa befinden sich verschiedene Einkaufsmöglichkeiten, Restaurants und Freizeiteinrichtungen. Auch die Anbindung an den öffentlichen Nahverkehr ist ausgezeichnet, sodass man die gesamte Stadt bequem erkunden kann.
Landshut selbst beeindruckt mit seiner historischen Architektur und dem malerischen Flair. Die Stadt ist geprägt von mittelalterlichen Gebäuden und bietet eine Vielzahl an kulturellen Sehenswürdigkeiten. Besonders sehenswert ist die gotische St. Martin Kirche, die mit ihrem hohen Turm über der Stadt thront. Auch kulturelle Veranstaltungen wie das berühmte Landshuter Hochzeitsspiel locken jedes Jahr zahlreiche Besucher in die Stadt. Landshut bietet zudem eine hohe Lebensqualität mit guten Schulen, einem breiten Freizeitangebot und einer lebendigen Kunst- und Kulturszene.
Die Region Niederbayern besticht durch ihre idyllische Landschaft und die Nähe zu vielen Naturschutzgebieten. Hier kann man bei ausgedehnten Spaziergängen oder Fahrradtouren die unberührte Natur genießen. Auch kulturelle Veranstaltungen wie Musikfestivals oder traditionelle Volksfeste prägen das Leben in der Region. Niederbayern ist bekannt für seine bodenständige Küche und die herzliche Gastfreundschaft der Einwohner. Wer also das Stadtleben mit der Natur verbinden möchte, ist in dieser Region genau richtig - und die Villa in Landshut bietet hierfür den idealen Ausgangspunkt.
Grundriss
EG
>
>
OG
>
>
UG
>
>
Adresse
84036 Landshut
Interessante Orte
Preis- und Lageinformationen
Preistrend für Bestandsimmobilien in Achdorf