Zur Vermietung steht ein modernes und sehr gepflegtes Einfamilienhaus in ruhiger Lage eines Neubaugebiets in 38170 Schöppenstedt. Das Haus wurde 2016 fertiggestellt und bietet eine Wohnfläche von 108 m² auf einer Wohnebene mit einer sehr guten und durchdachten Raumaufteilung.
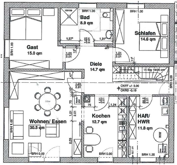
Über einen großzügigen Flur sind alle Räume bequem erreichbar. Das Haus verfügt über ein helles Wohnzimmer, ein Schlafzimmer, ein Kinder- /Gästezimmer, eine separate Küche, ein modernes Badezimmer sowie einen Hauswirtschaftsraum (HWR).
Das Haus ist mit 3-fach verglasten Fenstern und elektrischen Rollläden ausgestattet, die für zusätzlichen Komfort und eine gute Isolierung sorgen. Über die bodentiefen Fenster im Wohnzimmer und in der Küche hat man direkten Zugang zur großzügigen, sichtgeschützten Terrasse, die zum Entspannen und Verweilen einlädt.
Die neuwertige Einbauküche ist im Mietumfang (Kaltmiete) enthalten und bietet moderne Elektrogeräte sowie ausreichend Stauraum.
Beheizt wird das Haus über eine Gas-Brennwerttherme mit Fußbodenheizung, die für ein angenehmes Wohnklima sorgt. Die Warmwasseraufbereitung erfolgt ebenfalls über die Brennwerttherme und wird zusätzlich durch eine Solarthermieanlage unterstützt.
Vor der Neuvermietung wird das Haus innen komplett neu tapeziert und frisch gestrichen, sodass es in einem sehr gepflegten und einzugsbereiten Zustand übergeben wird.
Zum Haus gehören außerdem ein Carport mit angrenzendem Geräteschuppen sowie ein umlaufender Garten.
Modernes Einfamilienhaus zur Miete in 38170 Schöppenstedt
38170 Schöppenstedt
Die vollständige Adresse der Immobilie erhalten Sie vom Anbieter.
Auf Karte anzeigen
Die vollständige Adresse der Immobilie erhalten Sie vom Anbieter.
Infos
| Haustyp | Einfamilienhaus |
|---|---|
| Etagenzahl | 1 |
| Wohnfläche ca. | 108 m2 |
| Grundstücksfläche | 600 m2 |
| Bezugsfrei ab | 1.4.2026 |
| Zimmer | 3 |
| Schlafzimmer | 2 |
| Badezimmer | 1 |
| Haustiere | Ja |
| Garage/Stellplatz | Carport |
| Anzahl Garage/Stellplatz | 1 |
Kosten
| Kaltmiete |
1.170 € |
|---|---|
| Nebenkosten | + 220 € |
| Heizkosten | in Nebenkosten enthalten |
| Gesamtmiete | 1.390 € |
| Kaution o. Genossenschaftsanteile | 3510.0 |
Weiter mieten oder doch kaufen?
Wer in Miete wohnt, überweist dem Vermieter im Laufe der Jahre hohe Summen, die sich
auch in die eigenen vier Wände investieren lassen könnten.
Bausubstanz & Energieausweis
| Baujahr | 2016 |
|---|---|
| Objektzustand | Neuwertig |
| Qualität der Austattung | Gehoben |
| Heizungsart | Fußbodenheizung |
| Wesentliche Energieträger | Gas |
| Energieausweis | liegt zur Besichtigung vor |
Beschreibung des Objekts
Ausstattung
Highlights auf einen Blick:
• Einfamilienhaus im Neubaugebiet
• Baujahr 2016
• 108 m² Wohnfläche auf einer Ebene
• Sehr gute Raumaufteilung
• Neuwertige Einbauküche inklusive
• Fußbodenheizung
• Gas-Brennwerttherme + Solarthermie
• Innen komplett neu tapeziert und gestrichen
• 3-fach verglaste Fenster
• elektrische Rollläden
• bodentiefe Fenster in Küche und Wohnzimmer
• Carport mit Geräteschuppen
• Garten mit großer, sichtgeschützter Terrasse
• Ruhige und familienfreundliche Lage
Lage
Schöppenstedt hat ca. 4.500 Einwohner und verfügt über alle wichtigen Einrichtungen des täglichen Bedarfs, darunter Schulen, Ärzte, Apotheken sowie vielfältige Einkaufsmöglichkeiten.
Der nahe gelegene Elm lädt zu Spaziergängen, Wanderungen und Fahrradtouren ein und bietet ideale Möglichkeiten, um zu entspannen und vom Alltag abzuschalten.
Das Haus eignet sich ideal für Paare oder kleine Familien, die modernes Wohnen in ruhiger Umgebung mit guter Infrastruktur schätzen.
Sonstige Angaben
Wichtige Information für Interessenten:
Bitte beachten Sie, dass wir nur Anfragen beantworten können, die Ihren vollständigen Namen, Ihre Adresse, E-Mail und Ihre Telefonnummer enthalten. Diese Angaben sind notwendig, um Ihre Anfrage zu bearbeiten und einen Besichtigungstermin zu vereinbaren. Wir danken für Ihr Verständnis und freuen uns auf Ihre Nachricht!
Grundriss
Grundriss
>
>
Adresse
38170 Schöppenstedt
Interessante Orte
Preis- und Lageinformationen
Preistrend für Bestandsimmobilien in Schöppenstedt