Hinweis: die Bilder wurden zum Teil visualisiert, da sich das Haus noch in Sanierung befindet.
Diese hochwertig sanierte Doppelhaushälfte im Nürnberger Nordosten verbindet den stilvollen Charakter eines Hauses aus dem Jahr 1933 mit modernem Wohnkomfort auf hohem Niveau.
In 2025 wurde die Immobilie umfassend modernisiert und technisch wie optisch auf ein zeitgemäß hochwertiges Niveau gebracht. Die Fertigstellung der Sanierungs- und Umbaumaßnahmen erfolgt bis Ende Januar 2026.
Besonderes Augenmerk wurde auf den Erhalt und die fachgerechte Aufarbeitung erhaltenswerter historischer Elemente gelegt. Originale Türblätter, Türzargen, Treppen sowie das Treppengeländer wurden sorgfältig restauriert und konserviert, sodass der Charakter des Hauses bewusst bewahrt bleibt. Gleichzeitig wurden alle Maßnahmen umgesetzt, um den Ansprüchen an modernes, komfortables Wohnen vollumfänglich gerecht zu werden.
Die Immobilie verfügt über ca. 196 m² Wohnfläche mit insgesamt 7 großzügigen Zimmern, verteilt auf Erdgeschoss, 1. Obergeschoss und 2. Obergeschoss. Ergänzt wird das Raumangebot durch einen vollständigen, trockenen Keller, eine Garage, zwei Außenstellplätze sowie einen großzügigen Garten mit ca. 384 m² Fläche zur exklusiven Nutzung.
Eine seltene Gelegenheit, ein großzügiges, hochwertig saniertes Haus mit bewahrtem historischem Charakter, großzügigem Garten und exzellenter Lage im Nürnberger Nordosten zu mieten.
------------------------------------------------------
This high-quality, refurbished semi-detached house in the north-eastern district of Nuremberg combines the elegant character of a 1933 property with modern living comfort at a premium level.
In 2025, the property underwent an extensive and comprehensive renovation, bringing both its technical standards and visual appearance up to a contemporary, high-end level. Completion of all renovation and conversion works is scheduled for the end of January 2026.
Special attention was given to the preservation and professional restoration of valuable historical features. Original door leaves, door frames, staircases and the staircase railing have been carefully restored and conserved, ensuring that the distinctive character of the house is deliberately retained. At the same time, all measures required for modern, comfortable living have been fully implemented.
The property offers approximately 196 m² of living space with a total of 7 generously sized rooms, spread across the ground floor, first floor and second floor. The living space is complemented by a full, dry basement, a garage, two outdoor parking spaces, and a spacious private garden of approximately 384 m².
A rare opportunity to rent a generously proportioned, high-quality renovated home that successfully combines preserved historical charm with modern comfort, a large private garden and an excellent location in the north-east of Nuremberg.
Hochwertig saniertes Wohnhaus und großzügigem Garten in Bestlage des Nürnberger Nordostens
90409 Nürnberg
Die vollständige Adresse der Immobilie erhalten Sie vom Anbieter.
Auf Karte anzeigen
Die vollständige Adresse der Immobilie erhalten Sie vom Anbieter.
Infos
| Haustyp | Doppelhaushaelfte |
|---|---|
| Etagenzahl | 3 |
| Wohnfläche ca. | 196 m2 |
| Nutzfläche | 50 m2 |
| Grundstücksfläche | 384 m2 |
| Bezugsfrei ab | 01.03.2026 |
| Zimmer | 7 |
| Schlafzimmer | 5 |
| Badezimmer | 2 |
| Haustiere | Nach Vereinbarung |
| Anzahl Garage/Stellplatz | 3 |
Kosten
| Kaltmiete |
2.700 € |
|---|---|
| Nebenkosten | + 350 € |
| Heizkosten | keine Angabe |
| Gesamtmiete | 3.150 € (zzgl. Heizkosten) |
| Kaution o. Genossenschaftsanteile | 8100 |
Weiter mieten oder doch kaufen?
Wer in Miete wohnt, überweist dem Vermieter im Laufe der Jahre hohe Summen, die sich
auch in die eigenen vier Wände investieren lassen könnten.
Bausubstanz & Energieausweis
| Baujahr | 1933 |
|---|---|
| Letzte Sanierung | 2026 |
| Objektzustand | Erstbezug nach Sanierung |
| Qualität der Austattung | Gehoben |
| Heizungsart | Gas-Heizung |
| Wesentliche Energieträger | Gas |
| Energieausweis | liegt zur Besichtigung vor |
Beschreibung des Objekts
Ausstattung
Der weitläufige Wohn- und Essbereich überzeugt mit original aufgearbeitetem Eichenparkett im klassischen Fischgrätmuster und einer verglasten Schiebetür, die die Räume elegant miteinander verbindet. Die Küche mit direktem Zugang zur Terrasse und in den Garten schafft eine harmonische Verbindung zwischen Innen- und Außenbereich. Ein Gäste-WC im Erdgeschoss ergänzt diese Ebene.
Im 1. Obergeschoss befindet sich das Masterbad, das sowohl vom Flur als auch direkt vom angrenzenden Schlafzimmer zugänglich ist, sowie weitere flexibel nutzbare Zimmer. Zusätzlich steht hier ein kleiner Balkon mit Blick in den Garten zur Verfügung.
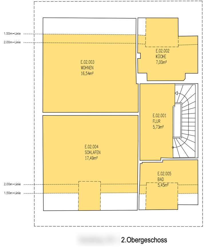
Das 2. Obergeschoss verfügt über ein weiteres Bad mit WC und Dusche sowie 2 zusätzliche Zimmer sowie ein Ankleidezimmer, das mit dem Schlafzimmer verbunden ist.
Der Keller bietet neben mehreren Nutz- und Abstellräumen eine separate Waschküche sowie einen direkten Zugang in den Garten.
Technisch wurde das Haus umfassend erneuert: komplette Erneuerung der Elektroverteilung, hochwertig sanierte Bäder, glatt gespachtelte Wände, teilweise neue Fenster sowie erneuerte Rollläden inklusive gedämmter Rollladenkästen. Die Beheizung erfolgt über eine Gasheizung.
-------------------------------------------------------
he spacious living and dining area impresses with originally restored oak parquet flooring laid in a classic herringbone pattern, as well as a glazed sliding door that elegantly connects the rooms. The kitchen, with direct access to the terrace and garden, creates a seamless connection between indoor and outdoor living. A guest WC on the ground floor completes this level.
The first floor features the master bathroom, which is accessible both from the hallway and directly from the adjoining bedroom, as well as additional rooms that can be flexibly used. A small balcony overlooking the garden is also located on this floor.
The second floor offers another bathroom with WC and shower, two additional rooms, and a walk-in dressing room connected to the bedroom.
The basement provides several utility and storage rooms, a separate laundry room, and direct access to the garden.
From a technical perspective, the house has been comprehensively upgraded, including a complete renewal of the electrical distribution system, high-quality refurbished bathrooms, smoothly plastered walls, partially new windows, and renewed roller shutters with insulated shutter boxes. Heating is provided by a gas heating system.
Lage
Die Immobilie befindet sich in besonders gefragter Wohnlage im Nordosten von Nürnberg und überzeugt durch eine seltene Kombination aus grüner Umgebung, exzellenter Infrastruktur und hervorragender Verkehrsanbindung.
Der Volkspark Marienberg ist in weniger als 10 Minuten fußläufig erreichbar und bietet vielfältige Möglichkeiten zur Erholung, zum Joggen, Spazierengehen oder für Freizeitaktivitäten im Grünen.
Der renommierte Tennisclub Noris Weiß-Blau mit 12 Tennisplätzen und Tennishalle befindet sich in weniger als 6 Minuten fußläufiger Entfernung und unterstreicht die hohe Freizeitqualität dieser Lage.
Der Flughafen Nürnberg ist in ca. 9 Minuten mit dem Auto erreichbar und damit ideal für Vielreisende. Die Nürnberger Innenstadt erreicht man je nach Verkehrslage in ca. 10–15 Minuten mit dem Auto oder komfortabel mit öffentlichen Verkehrsmitteln.
Die Versorgung des täglichen Bedarfs ist hervorragend:
Supermärkte wie REWE, EDEKA, Lidl, ebenso Apotheken, Bäckereien, Metzgereien und weitere Fachgeschäfte befinden sich teilweise fußläufig oder in wenigen Minuten mit dem Auto.
Auch Kindergärten, Kitas sowie Grund- und weiterführende Schulen sind in der näheren Umgebung vorhanden und gut erreichbar.
Die ÖPNV-Anbindung ist ausgezeichnet:
Eine Bushaltestelle befindet sich direkt vor dem Haus, die U-Bahn-Linien U2 und U3 sind über den Nordostbahnhof schnell erreichbar und gewährleisten eine sehr gute Anbindung in alle Teile der Stadt sowie ins Umland.
Insgesamt bietet diese Lage eine außergewöhnlich hohe Wohn- und Lebensqualität in einem der attraktivsten Wohnquartiere des Nürnberger Nordostens.
---------------------------------------------------------
The property is located in a highly sought-after residential area in the northeast of Nuremberg and impresses with a rare combination of green surroundings, excellent infrastructure, and outstanding transport connections.
Volkspark Marienberg is within less than a 10-minute walk and offers a wide range of recreational opportunities, including jogging, walking, and outdoor leisure activities in a green setting. The renowned Noris Weiß-Blau Tennis Club, featuring 12 tennis courts and an indoor tennis hall, is located less than a 6-minute walk away, further underlining the high recreational value of this location.
Nuremberg Airport can be reached in approximately 9 minutes by car, making the property particularly attractive for frequent travelers. Nuremberg’s city center is accessible in around 10–15 minutes by car, depending on traffic, or conveniently via public transportation.
Everyday amenities are excellent:
Supermarkets such as REWE, EDEKA, and Lidl, as well as pharmacies, bakeries, butcher shops, and other specialty stores, are located either within walking distance or just a few minutes away by car. Kindergartens, childcare facilities, primary schools, and secondary schools are also available in the surrounding area and are easily accessible.
Public transport connections are outstanding:
A bus stop is located directly in front of the house, and the U2 and U3 underground lines are quickly accessible via Nordostbahnhof, providing excellent connections to all parts of the city as well as the surrounding region.
Overall, this location offers an exceptionally high quality of living in one of the most attractive residential neighborhoods in northeast Nuremberg.
Sonstige Angaben
Zur Immobilie gehören eine Garage, die dem ursprünglichen Baujahr entsprechend für schmalere Fahrzeuge geeignet ist, sowie zwei zusätzliche Außenstellplätze.
---------------------------------------------------------
The property includes a garage, which—consistent with the original year of construction—is suitable for narrower vehicles, as well as two additional outdoor parking spaces.
Grundriss
Erdgeschoss
>
>
1. OG
>
>
2. OG
>
>
Adresse
90409 Nürnberg
Interessante Orte
Preis- und Lageinformationen
Preistrend für Bestandsimmobilien in Schleifweg