Frisch kernsaniertes Reiheneckhaus mit großem Garten, mehreren Terrassen, Dachterrasse, Balkon, Garage, Photovoltaikanlage und Wallbox. Erstbezug nach Renovierung und Kernsanierung.
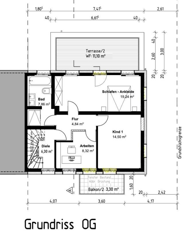
Die Wohnfläche erstreckt sich über ca. 224 qm. Das Raumangebot ist flexibel nutzbar. Auf drei Wohnebenen verteilen sich ein weitläufiger Wohn-/Essbereich mit neuer Einbauküche, drei Schlaf-, Arbeits- oder Gästezimmer, ein großzügiges ausgebautes Studio sowie drei Bäder. Ein Schlafzimmer hat Zugang zur Dachterrasse. Die anderen beiden Schlafzimmer haben Zugang zum Balkon. Fußbodenheizung, elektrische Rollläden und ausziehbarer Mückenschutz in allen Wohnräumen.
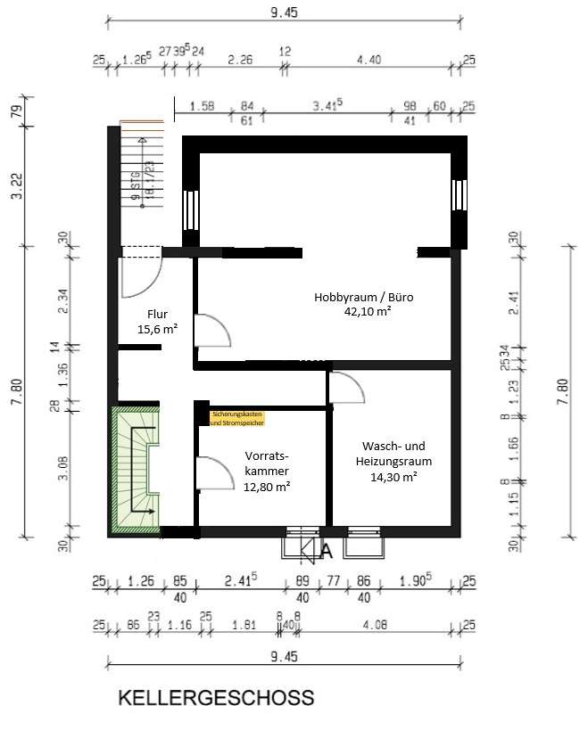
Zusätzlich ist im Vollkeller (2,50m hoch) ein großer Hobbyraum mit 42 qm mit Tageslicht, Eichendielenparkett und Fußbodenheizung sowie weitere Hauswirtschafts- und Abstellräume.
Zur Straßenseite gibt es einen Vorgarten mit kleiner Terrasse. Auf der Rückseite einen großen Garten mit großer Terrasse und zusätzlichem Zugang über eine Außentreppe zum Keller.
Das Haus wird mit einer Wärmepumpe geheizt. Auf allen Wohnebenen und im Hobbyraum im Keller gibt es eine Fußbodenheizung mit Smarter Tado Steuerung.
Auf dem Dach befindet sich eine Photovoltaikanlage und in der Garage eine Wallbox.
Das Haus wurde gerade umfassend und hochwertig kernsaniert.
Die Sanierung umfasste u.a.:
• Neue Elektro-, Wasser- und Heizungsinstallationen (Fußbodenheizung, Wärmepumpe, Photovoltaikanlage)
• Hochwertige Dämmung und Fassade
• Neue Fenster mit Dreifachverglasung
• Neue Innen- und Außentüren
• Neue Bäder
• Neue Böden (Eichendielenparkett und großformatige, hochwertige Fliesen aus Italien)
• Maß angefertigte Treppe
• Dachausbau mit neuem Dach und zwei riesigen Gauben
• Neue Grundrisse, insbesondere neuer Anbau mit Dachterrasse und Unterkellerung
• Neuer Balkon
• Neue Gestaltung des Vollkellers und Schaffung eines großen Hobbyraums mit Tageslicht, Eichendielenparkett und Fußbodenheizung
• Neugestaltung von Vorgarten und Garten.
KfW Energiehaus 55.
Frisch renoviertes Reiheneckhaus mit viel Platz, offenen Räumen, großem Garten, Terrassen und Balkon
80689 München
Die vollständige Adresse der Immobilie erhalten Sie vom Anbieter.
Auf Karte anzeigen
Die vollständige Adresse der Immobilie erhalten Sie vom Anbieter.
Infos
| Haustyp | Reiheneckhaus |
|---|---|
| Etagenzahl | 3 |
| Wohnfläche ca. | 225 m2 |
| Nutzfläche | 85 m2 |
| Grundstücksfläche | 380 m2 |
| Bezugsfrei ab | 15.1.2026 |
| Zimmer | 5 |
| Schlafzimmer | 4 |
| Badezimmer | 3 |
| Haustiere | Nach Vereinbarung |
| Garage/Stellplatz | Garage |
| Anzahl Garage/Stellplatz | 1 |
Kosten
| Kaltmiete |
4.750 € |
|---|---|
| Nebenkosten | + 220 € |
| Heizkosten | + 100 € |
| Gesamtmiete | 5.070 € (zzgl. Heizkosten) |
| Miete für Garage/Stellplatz | 100 € |
| Kaution o. Genossenschaftsanteile | 14.250,00 |
Weiter mieten oder doch kaufen?
Wer in Miete wohnt, überweist dem Vermieter im Laufe der Jahre hohe Summen, die sich
auch in die eigenen vier Wände investieren lassen könnten.
Bausubstanz & Energieausweis
| Baujahr | 1956 |
|---|---|
| Letzte Sanierung | 2025 |
| Objektzustand | Erstbezug nach Sanierung |
| Qualität der Austattung | Gehoben |
| Heizungsart | Wärmepumpe |
| Wesentliche Energieträger | Strom |
| Energieausweis | liegt zur Besichtigung vor |
Beschreibung des Objekts
Lage
Das Haus befindet sich in Kleinhadern im Südwesten von München, 2 Fußminuten vom Gondrellplatz (Tram 18). Dadurch ist die Anbindung an den öffentlichen Nahverkehr hervorragend und wird durch die Nähe zur U-Bahnlinie U6 sowie die Buslinien 168 und N78 ergänzt. Das Viertel ist geprägt von Mehrfamilienhäusern und Einfamilienhäusern und gilt als sicher und angenehm. Zahlreiche Parks und die Nähe zur Natur bieten vielfältige Freizeitmöglichkeiten, während die gute Infrastruktur eine hohe Lebensqualität gewährleistet.
Lage:
Im Südwesten von München: Nördliches Kleinhadern, sehr nah am Stadtteil Laim. Ruhige und grüne Lage mit sehr guter Infrastruktur und Verkehrsanbindung.
• 2 Gehminuten: Tram 18 am Gondrellplatz
• 8 Gehminuten: Bus 168 am Hönigschmidplatz
• 4 Fahrradminuten: Die U6 am Haderner Stern
• 3 Fahrminuten bis zur Autobahnauffahrt A96
• 10 Fahrminuten bis zur Autobahnauffahrt A95
• 4 Fahrminuten bis zur Fürstenrieder Straße
• 2 Gehminuten bis zum Kindergarten mit Kita
Geschäfte des täglichen Bedarfs sind ebenfalls fußläufig erreichbar und es befinden sich verschiedene Kinderkrippen, Kindergärten und Schulen im Umkreis.
Fußballplätze, Fitnessstudio und Tennisplätze gleich in der Nähe.
Sonstige Angaben
Ausstattung:
Erdgeschoss: Eingangsbereich mit Garderobenbereich, Walk-Inn-Duschbad mit WC. 72 qm großer Wohnraum mit offener neuer Einbauküche, bodentiefe Fensterfront (zum Schieben) mit ebenerdigem Zugang zu Terrasse und Garten.
1.Obergeschoss: Drei Schlafzimmer, davon eins mit Zugang zur Dachterrasse (Gartenseite) und zwei mit Zugang zum Balkon (Straßenseite). Modernes Masterbad mit Walk-Inn-Dusche, Badewanne und WC.
Dachgeschoss: Ausgebautes Studio mit viel Licht und Platz (49 qm) aufgrund großzügiger Gauben, großen Fenstern und hohem Dachstuhl. Duschbad mit WC.
Kellergeschoss: Ein 42 qm großer Hobbyraum, 2 weitere Kellerräume wie Waschküche und Abstellraum.
Durch die moderne Technik und Dämmung hat das Haus eine hohe Energieeffizienz und erreicht den KfW Energiehaus 55 Standard.
Grundriss
Erdgeschoss
>
>
Obergeschoss
>
>
Dachgeschoss
>
>
Kellergeschoss
>
>
Adresse
80689 München
Interessante Orte
Preis- und Lageinformationen
Preistrend für Bestandsimmobilien in Hadern