Entdecken Sie dieses beeindruckende Einfamilienhaus in bevorzugter Lage von Ingelheim am Rhein. Mit ca. 205 m² Wohnfläche auf einem großzügigen Grundstück von 614 m² bietet das Haus viel Platz, Komfort und Privatsphäre für die ganze Familie.
Das freistehende Architektenhaus (Baujahr 1978) wurde zwischen 2016 und 2022 umfassend modernisiert, darunter neue Fenster (2022) und zahlreiche Renovierungen, die den modernen Wohnkomfort unterstreichen.
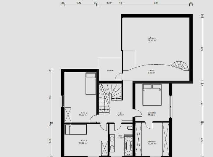
Raumangebot:
Das Haus erstreckt sich über drei Etagen und umfasst insgesamt 8 Zimmer, darunter:
✅ 5 geräumige Schlafzimmer
✅ 2 Badezimmer
✅ Großzügiger Wohn- und Essbereich von über 58 m² mit Galerie und Stuckelementen
Ausstattung & Technik:
✅ Hochwertige Einbauküche
✅ LAN-Anschlüsse in fast allen Zimmern (ideal für Home-Office)
✅ Elektrische Rollläden zentral steuerbar
✅ Böden aus Parkett und Fliesen
✅ Praktisches Gäste-WC und Abstellraum in Erdgeschoss
Außenbereich & Parken:
✅ Großzügiger Garten mit altem Baumbestand
✅ Garage und Außenstellplatz für Ihre Fahrzeuge
Highlights im Überblick
✅ Wohnkomfort: 8 Zimmer, Galerie-Wohnbereich, offene Deckenhöhe
✅ Zustand: Modernisiert 2016–2022, energetische Fenster, leicht gedämmte Fassade
✅ Ein Kellerraum steht leider nicht zur Verfügung
✅ Heizung: effiziente Gaszentralheizung
Dieses gehobene Einfamilienhaus vereint modernen Komfort mit zeitloser Eleganz und wartet darauf, Sie und Ihre Familie willkommen zu heißen.
AS IMMOBILIEN: Modernisiertes Einfamilienhaus mit 5 Schlafzimmern, Terrasse & Garage – Ingelheim
55218 Ingelheim am Rhein
Die vollständige Adresse der Immobilie erhalten Sie vom Anbieter.
Auf Karte anzeigen
Die vollständige Adresse der Immobilie erhalten Sie vom Anbieter.
Infos
| Haustyp | Einfamilienhaus |
|---|---|
| Etagenzahl | 3 |
| Wohnfläche ca. | 205 m2 |
| Grundstücksfläche | 614 m2 |
| Bezugsfrei ab | sofort |
| Zimmer | 8 |
| Schlafzimmer | 5 |
| Badezimmer | 2 |
| Haustiere | Ja |
| Anzahl Garage/Stellplatz | 2 |
Kosten
| Kaltmiete |
2.800 € |
|---|---|
| Nebenkosten | + 150 € |
| Heizkosten | + 350 € |
| Gesamtmiete | 3.300 € |
| Kaution o. Genossenschaftsanteile | 6000 |
Weiter mieten oder doch kaufen?
Wer in Miete wohnt, überweist dem Vermieter im Laufe der Jahre hohe Summen, die sich
auch in die eigenen vier Wände investieren lassen könnten.
Bausubstanz & Energieausweis
| Baujahr | 1978 |
|---|---|
| Letzte Sanierung | 2022 |
| Objektzustand | Modernisiert |
| Qualität der Austattung | Gehoben |
| Heizungsart | Gas-Heizung |
| Wesentliche Energieträger | Gas |
| Energieausweis | liegt vor |
| Energieausweistyp | Verbrauchsausweis |
| Energieeffizienzklasse | E |
Energieeffizienzklasse E
- A+
- A
- B
- C
- D
- E
- F
- G
- H
- 0
- 25
- 50
- 75
- 100
- 125
- 150
- 175
- 200
- 225
- >250
Beschreibung des Objekts
Lage
Ingelheim am Rhein ist eine charmante Stadt, die den perfekten Wohnort für diejenigen bietet, die sowohl Ruhe als auch Stadtnähe suchen. Diese Immobilie befindet sich in einer ruhigen Wohngegend, nur wenige Gehminuten vom Stadtzentrum entfernt, wo Sie eine Vielzahl von Geschäften, Restaurants und Cafés finden.
Die Lage bietet eine hervorragende Anbindung an das öffentliche Verkehrsnetz, einschließlich Bus und Bahn, die eine bequeme Verbindung zu den nahegelegenen Städten Mainz und Wiesbaden ermöglichen. Für Autofahrer ist die Autobahn A60 leicht erreichbar, was eine schnelle Verbindung zu anderen Teilen der Region gewährleistet.
Ingelheim am Rhein ist auch für seine malerische Umgebung bekannt, mit dem malerischen Rheinufer und zahlreichen Wander- und Radwegen, die direkt vor Ihrer Haustür beginnen. Die grünen Parks und Spielplätze in der Nähe machen diese Lage ideal für Familien.
Zusätzlich befinden Sie sich in unmittelbarer Nähe zu ausgezeichneten Schulen, Kindergärten und medizinischen Einrichtungen, was den Alltag besonders praktisch gestaltet. Die Kombination aus idyllischer Wohngegend und hervorragender Infrastruktur macht diese Immobilie zu einer ausgezeichneten Wahl für Mieter, die Qualität und Komfort schätzen.
Sonstige Angaben
Für die erste Kontaktaufnahme bzw. zur Zusendung des vollständigen Exposés benötigen wir Ihre vollständige Anschrift. Bitte nutzen Sie hierfür unser Kontaktformular.
Für Fragen zur Immobilie oder zur Vereinbarung eines persönlichen Besichtigungstermins können Sie sich jederzeit gern an uns wenden – wir freuen uns auf Ihre Kontaktaufnahme.
Hinweis: Alle Angaben in diesem Exposé basieren auf den Angaben des Vermieters und wurden sorgfältig und so vollständig wie möglich gemacht. Jedoch kann das Vorhandensein von Fehlern nicht ausgeschlossen werden, daher sind die Angaben ohne jede Gewähr. Maßgeblich sind die im Mietvertrag geschlossenen Vereinbarungen. Soweit die Grundrissgrafiken Maßangaben und Einrichtungen enthalten, wird auch für diese jegliche Haftung ausgeschlossen. Mietpreisänderungen bleiben vorbehalten.
Unser Service für Sie
✔ Auf Wunsch übernehmen wir die professionelle Vermarktung oder Vermietung Ihrer Immobilie – diskret, zuverlässig und zielgerichtet.
Weitere Immobilienangebote auf unserer Website:
🌐 www.as-immobilien-wiesbaden.com
Folgen Sie uns auch auf Social Media:
https://www.instagram.com/as_immobilien_wiesbaden
https://www.facebook.com/ASImmobilienWiesbaden
Grundriss
EG
>
>
OG
>
>
DG
>
>
Adresse
55218 Ingelheim am Rhein
Interessante Orte
Preis- und Lageinformationen
Preistrend für Bestandsimmobilien in Ingelheim am Rhein