Das angebotene Mittelreihenhaus wurde im Jahr 1954 auf einem ca. 206 m² großen Südwestgrundstück errichtet. Die Fassade präsentiert sich in einem hellen Rauputz. Das Haus bietet auf zwei Vollgeschossen eine Gesamtwohnfläche von ca. 97,5 m² und wurde dieses Jahr umfassend modernisiert.
Im Erdgeschoss führt der mit hellen Fliesen ausgestattete Flur an der neuen Küche vorbei, die mit einem Cerankochfeld und einem Backofen ausgestattet ist. Der anschließende, lichtdurchflutete Wohnbereich ist mit einem gepflegten Eichen-Stäbchenparkett versehen. Ein Gäste-WC mit Fenster komplettiert das Erdgeschoss. Von hier aus gelangt man auf die neu angelegte Südwestterrasse, die einen schönen Blick in den liebevoll gestalteten Garten bietet.
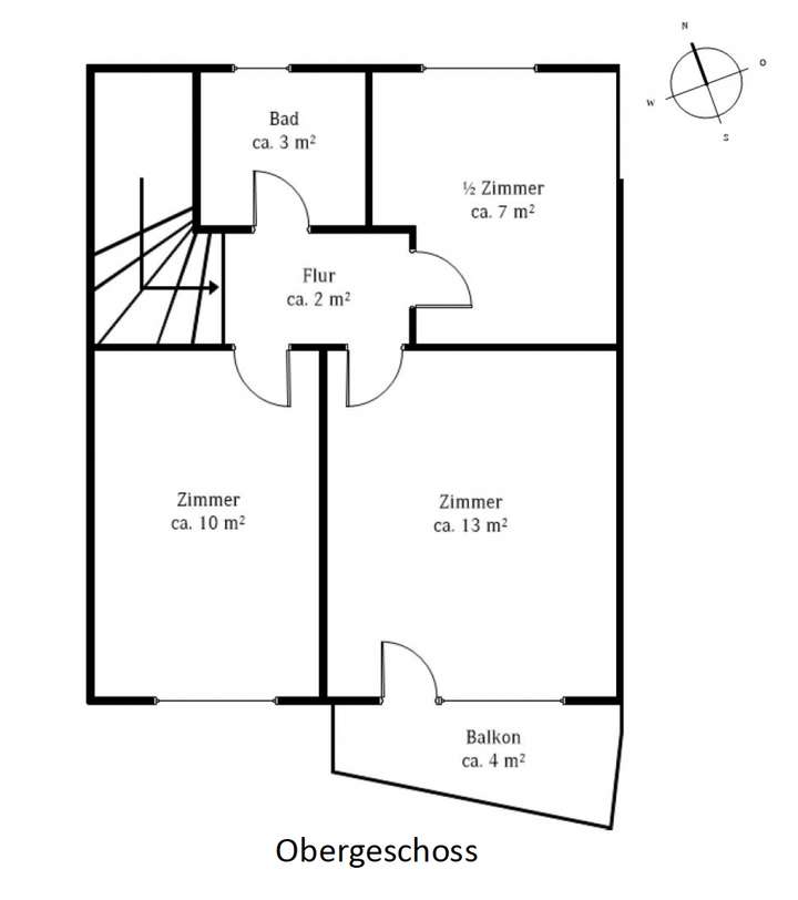
Eine Holztreppe verbindet die Etagen miteinander. Im Obergeschoss befinden sich zwei nach Südwesten ausgerichtete Zimmer sowie ein weiteres Zimmer zum Nordosten. Alle Schlafzimmer sind mit einem neuen Sisalteppichboden ausgestattet. Ein hell gefliestes Vollbad ergänzt das Raumangebot auf dieser Ebene. Die Deckenhöhe beträgt im Erdgeschoss ca. 2,60 m und im Obergeschoss ca. 2,55 m.
Das Haus ist voll unterkellert und bietet mit drei Abstellräumen auf einer Nutzfläche von ca. 40 m² reichlich Stauraum. Die Beheizung erfolgt über eine Ölzentralheizung (Baujahr 1995).
Mittelreihenhaus mit Südwest-Terrasse in Hamburg-Nienstedten – Befristete Vermietung für 3 Jahre
22609 Hamburg
Die vollständige Adresse der Immobilie erhalten Sie vom Anbieter.
Auf Karte anzeigen
Die vollständige Adresse der Immobilie erhalten Sie vom Anbieter.
Infos
| Haustyp | Reihenmittelhaus |
|---|---|
| Etagenzahl | 2 |
| Wohnfläche ca. | 97 m2 |
| Nutzfläche | 40 m2 |
| Grundstücksfläche | 206 m2 |
| Bezugsfrei ab | 1.1.2026 |
| Zimmer | 3,5 |
| Schlafzimmer | 3 |
| Badezimmer | 2 |
| Haustiere | Nach Vereinbarung |
Kosten
| Kaltmiete |
2.200 € |
|---|---|
| Nebenkosten | + 350 € |
| Heizkosten | in Nebenkosten enthalten |
| Gesamtmiete | 2.550 € |
| Kaution o. Genossenschaftsanteile | 6.600,00 |
Weiter mieten oder doch kaufen?
Wer in Miete wohnt, überweist dem Vermieter im Laufe der Jahre hohe Summen, die sich
auch in die eigenen vier Wände investieren lassen könnten.
Bausubstanz & Energieausweis
| Baujahr | 1954 |
|---|---|
| Qualität der Austattung | Gehoben |
| Heizungsart | Öl-Heizung |
| Wesentliche Energieträger | Öl |
| Energieausweis | liegt zur Besichtigung vor |
Beschreibung des Objekts
Lage
Der Stadtteil Nienstedten zählt aufgrund seiner gewachsenen Struktur und seines besonderen Charmes zu den beliebten Wohngebieten in den Hamburger Elbvororten. Zahlreiche Einkaufsmöglichkeiten befinden sich im nahegelegenen Ortskern von Nienstedten, im Elbe-Einkaufszentrum sowie im angrenzenden Alt-Osdorf.
Ein vielfältiges Freizeitangebot mit Sportvereinen, Grünanlagen und der Elbe als Naherholungsgebiet liegt nur wenige Gehminuten entfernt. Kindergärten sowie Grund- und weiterführende Schulen, darunter auch die Internationale Schule, sind gut erreichbar. Dank der S-Bahn-Station Hochkamp und mehrerer Buslinien besteht eine sehr gute Anbindung an den öffentlichen Nahverkehr und in die Hamburger Innenstadt.
Das Objekt befindet sich in einer ruhigen, von viel Grün umgebenen Anwohnerstraße, die vor allem durch gepflegte Reihenhausbebauung geprägt ist. Die familienfreundliche Umgebung und das harmonische nachbarschaftliche Miteinander verleihen der Lage eine angenehme und wohnliche Atmosphäre.
Sonstige Angaben
Vertragsbedingung
Kündigungsausschuss: 1,5 Jahre
Mietkaution: 3 Nettokaltmieten
Befristung: 3 Jahre aufgrund Eigenbedarfs zur Familiengründung
Grundriss
UG
>
>
OG
>
>
EG
>
>
Adresse
22609 Hamburg
Interessante Orte
Preis- und Lageinformationen
Preistrend für Bestandsimmobilien in Nienstedten