Dieses charmante Reiheneckhaus mit ca. 140 m² Wohnfläche und ca. 339 m² Grundstücksfläche befindet sich in Peiting. Das Haus verfügt über 6 Zimmer und 2 Badezimmer sowie ein Gäste-WC.
Eine Terasse mit überdachtem Freisitz lädt Sie zum verweilen ein.
Im Erdgeschoß finden Sie ein ca. 35 m² großes Wohnzimmer mit Essplatz sowie einer Küche mit Einbauküche und ein separates Gäste-WC.
Im Obergeschoß befinden sich 3 Zimmer von denen 2 Zugang zum Südbalkon haben.
Sowie ein großes Tageslichtbad mit Fußbodenheizung, Eckbadewanne, Dusche, Doppelwaschbecken, WC und Bidet.
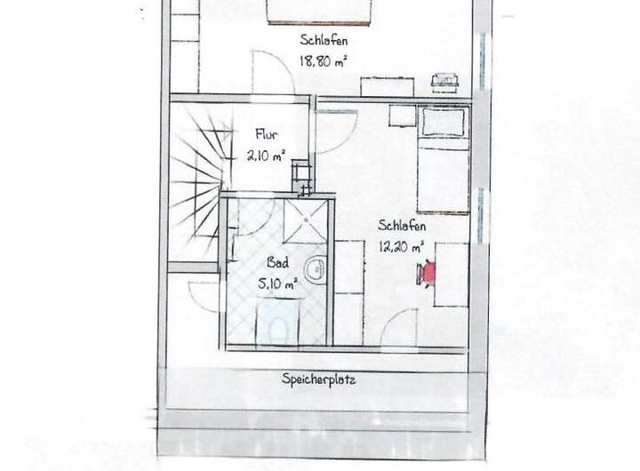
Im Dachgeschoß befinden sich 2 Zimmer und ein zusätzliches Bad mit Dusche und WC.
Eine Garage und ein Stellplatz bietet Platz für Ihr Fahrzeug. Außerdem steht Ihnen eine Gartenhütte für diverse Gartenutensilien zur Verfügung.
Charmantes Reiheneckhaus mit 6 Zimmern und 2 Bäder in Peiting (weitere Bilder folgen!!)
86971 Peiting
Die vollständige Adresse der Immobilie erhalten Sie vom Anbieter.
Auf Karte anzeigen
Die vollständige Adresse der Immobilie erhalten Sie vom Anbieter.
Infos
| Haustyp | Reiheneckhaus |
|---|---|
| Wohnfläche ca. | 140 m2 |
| Grundstücksfläche | 339 m2 |
| Zimmer | 6 |
| Schlafzimmer | 4 |
| Badezimmer | 2 |
| Haustiere | Nein |
| Garage/Stellplatz | Garage |
| Anzahl Garage/Stellplatz | 1 |
Kosten
| Kaltmiete |
1.550 € |
|---|---|
| Nebenkosten | + 150 € |
| Heizkosten | keine Angabe |
| Gesamtmiete | 1.700 € (zzgl. Heizkosten) |
| Miete für Garage/Stellplatz | 60 € |
| Kaution o. Genossenschaftsanteile | 4.650,00 |
Weiter mieten oder doch kaufen?
Wer in Miete wohnt, überweist dem Vermieter im Laufe der Jahre hohe Summen, die sich
auch in die eigenen vier Wände investieren lassen könnten.
Bausubstanz & Energieausweis
| Baujahr | 2000 |
|---|---|
| Objektzustand | Gepflegt |
| Qualität der Austattung | Normal |
| Heizungsart | Zentralheizung |
| Wesentliche Energieträger | Gas |
| Energieausweis | liegt vor |
| Energieausweistyp | Verbrauchsausweis |
Beschreibung des Objekts
Lage
Peiting ist eine Marktgemeinde im oberbayerischen Landkreis Weilheim-Schongau.
Peiting liegt an der B 17, B 23 und B 472.
Außerdem verfügt Peiting über 2 Bahnhöfe.
Alle Geschäfte des täglichen Bedarfs sind vor Ort sowie Gaststätten, Ärzte, Apotheken und Schulen/Kindergärten/Kinderkrippen.
Die Umgebung lädt zu Freizeitaktivitäten in der Natur ein.
Grundriss
Keller
>
>
Erdgeschoß
>
>
Obergeschoß
>
>
Dachgeschoß
>
>
Adresse
86971 Peiting
Interessante Orte
Preis- und Lageinformationen
Preistrend für Bestandsimmobilien in Peiting