Dieses charmante Reihenendhaus mit ca. 158 m² Wohnfläche und 298 m² Grundstücksfläche bietet mit seinen weiteren 100 m² Nutzflächen Raum für viele Aktivitäten.
Das Haus verfügt im EG über einen offen gestalteten Wohnküchenbereich mit einem gemütlichen Kaminofen und Zugang zur Terrasse/Garten. Eine geräumige voll ausgestattete Einbauküche bietet eine optimale Nutzung und erleichtert Ihnen den Einzug. Ein Gäste-WC ist vorhanden
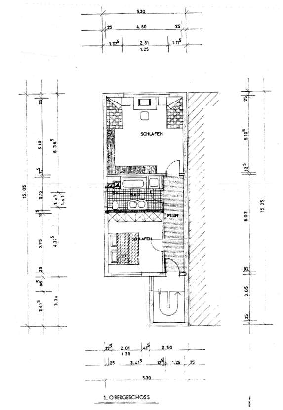
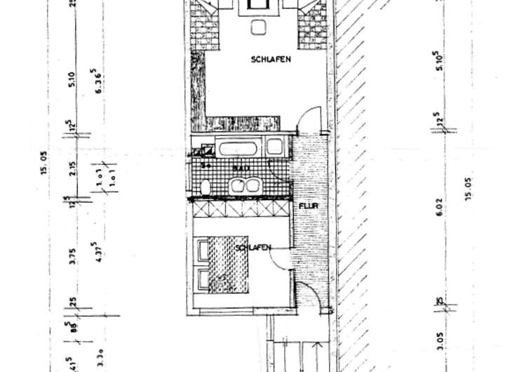
Die beiden darüberliegenden Obergeschosse sind mit je 2 Räumen unterschiedlicher Größe und je 1 Bad konzeptioniert. Die Bäder sind anspruchsvoll ausgestattet und mit der Küche und den Fluren einheitlich mit Granitböden gestaltet.
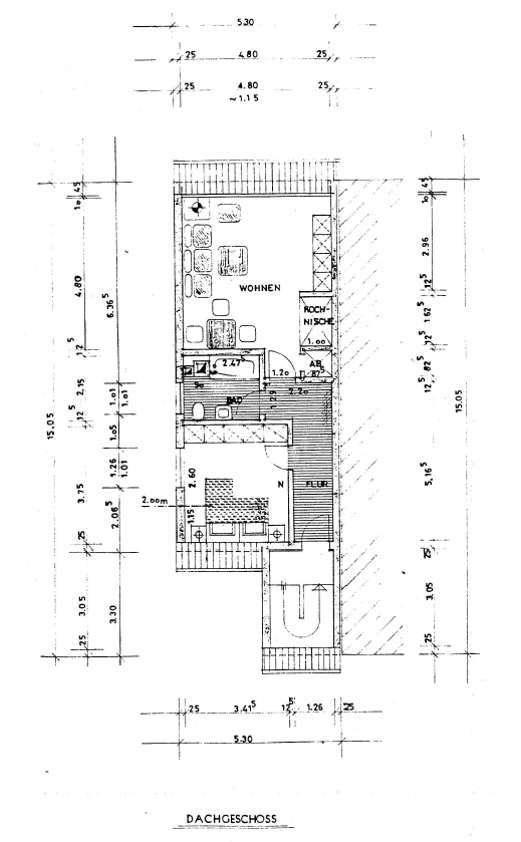
Als Besonderheit gibt es noch vom kleinen Zimmer aus im 2. OG einen Zugang zum ausgebauten Dachboden.
Alle Räume werden über eine Fußbodenheizung mit einer zentralen Gasheiztherme mit Warmwasserspeicher im Keller beheizt.
Das Haus ist voll unterkellert und bietet mit 49 m² zusätzlichen Stauraum. Von hier aus lässt sich die mit 29 m² geräumige Garage betreten, die wiederum einen direkten Zugang zum Garten hat. Ein Stellplatz vor dem Haus und ein zusätzlicher Stellplatz vor der Garage sind verfügbar.
Haustiere sind nach Absprache erlaubt. Die Immobilie eignet sich hervorragend für Familien oder Wohngemeinschaften, die Wert auf Platz und eine gute Nachbarschaft legen.
Geräumiges Reihenendhaus mit Garten & Garage in Herne Holsterhausen für die ganze Familie
44625 Herne
Die vollständige Adresse der Immobilie erhalten Sie vom Anbieter.
Auf Karte anzeigen
Die vollständige Adresse der Immobilie erhalten Sie vom Anbieter.
Infos
| Haustyp | Reiheneckhaus |
|---|---|
| Etagenzahl | 3 |
| Wohnfläche ca. | 158 m2 |
| Nutzfläche | 158 m2 |
| Grundstücksfläche | 298 m2 |
| Bezugsfrei ab | 1.2.2026 |
| Zimmer | 5,5 |
| Schlafzimmer | 4 |
| Badezimmer | 2 |
| Haustiere | Nach Vereinbarung |
| Garage/Stellplatz | Garage |
| Anzahl Garage/Stellplatz | 2 |
Kosten
| Kaltmiete |
1.290 € |
|---|---|
| Nebenkosten | + 198 € |
| Heizkosten | + 225 € |
| Gesamtmiete | 1.713 € (zzgl. Heizkosten) |
| Kaution o. Genossenschaftsanteile | 3.870,00 |
Weiter mieten oder doch kaufen?
Wer in Miete wohnt, überweist dem Vermieter im Laufe der Jahre hohe Summen, die sich
auch in die eigenen vier Wände investieren lassen könnten.
Bausubstanz & Energieausweis
| Baujahr | 1984 |
|---|---|
| Letzte Sanierung | 2010 |
| Objektzustand | Modernisiert |
| Qualität der Austattung | Normal |
| Heizungsart | Gas-Heizung |
| Wesentliche Energieträger | Gas, Strom |
| Energieausweis | liegt vor |
| Energieausweistyp | Verbrauchsausweis |
| Energieverbrauchskennwert | 106,3 kWh/(m²*a) |
| Energieeffizienzklasse | D |
106,3
kWh/(m²*a)
Energieeffizienzklasse D
- A+
- A
- B
- C
- D
- E
- F
- G
- H
- 0
- 25
- 50
- 75
- 100
- 125
- 150
- 175
- 200
- 225
- >250
Beschreibung des Objekts
Lage
Holsterhausen ist ein freundlicher Stadtteil in Herne mit einer gewachsenen Struktur und moderaten Bevölkerungsdichte. Die öffentlichen Verkehrsmittel sind gut ausgebaut, mit Buslinien wie der 362, 303 und 395, die eine schnelle Anbindung gewährleisten. Von Oberhausen bis Dortmund sind alle Städte des Ruhrgebietes in 20 Minuten auch mit dem Auto erreichbar. Die Nachbarschaft ist aufgeschlossen und freundlich, mit einer Mischung aus Mehrfamilienhäusern und Reihenhäusern.
Grüne Parks sowie Kindergärten, Schulen und vielfältige Einkaufsmöglichkeiten in unmittelbarer Nähe machen den Standort zu einem attraktiven Wohnort, besonders für Familien.
Grundriss
Keller Grundriss
>
>
Erdgeschoss
>
>
1 Obergeschoss
>
>
2 Obergeschoss
>
>
Höhenschnitt
>
>
Adresse
44625 Herne
Interessante Orte
Preis- und Lageinformationen
Preistrend für Bestandsimmobilien in Holsterhausen