Tauchen Sie ein in ein besonderes Wohnerlebnis! Dieses freistehende, denkmalgeschützte Einfamilienhaus vereint den historischen Charme des 17. Jahrhunderts mit modernem Wohnkomfort. Das Anwesen befindet sich in einer attraktiven Hanglage im Stadtteil Einberg und bietet eine erstklassige Wohnatmosphäre.
Das Gebäude wurde 1993/1994 umfassend kernsaniert und befindet sich in einem sehr guten, gepflegten Zustand. Mit einer großzügigen Wohnfläche, verteilt auf Erdgeschoss, Obergeschoss und ein voll ausgebautes Dachgeschoss, bietet dieses Haus viel Raum für individuelle Entfaltung.
Ausstattung & Highlights
• Historisches Flair: Einzigartiges Ambiente eines denkmalgeschützten Altbaus.
• Hochwertiger Zustand: Generalsanierung in den 90er Jahren und kontinuierliche Instandhaltung.
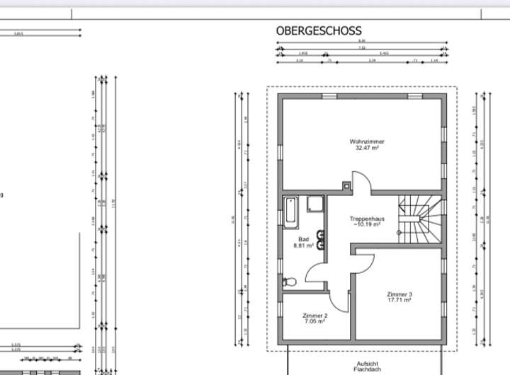
• Großzügige Flächen: Bruttogrundfläche (BGF) des Altbaus von ca. 244~m^2.
• Außenanlagen: kleine Terrasse und kleiner Vorgarten
• Parken: Ein Stellplatz direkt vor dem Haus
Lage
Die Immobilie liegt im beliebten Stadtteil Einberg in Rödental.
• Infrastruktur: Einkaufsmöglichkeiten, Ärzte, Kindergarten und Grundschule befinden sich direkt vor Ort.
• Freizeit: Zahlreiche Rad- und Wanderwege sowie Sportanlagen (Tennis, Bolzplatz) in der direkten Umgebung.
• Anbindung: Nur ca. 7 km von Coburg entfernt – ideal für Pendler, die das ruhige Wohnen im Grünen suchen.
Eckdaten im Überblick
• Objektart: Denkmalgeschütztes Einfamilienhaus.
• Zimmer: EG, OG und ausgebautes Dachgeschoss.
• Grundstück: ca 380 qm
• Bezug: Nach Vereinbarung.
Haben Sie Interesse an dieser besonderen Immobilie?
Gerne können wir einen Besichtigungstermin ab Mitte / Ende Januar 2026 vereinbaren, damit Sie sich persönlich von der Qualität und dem Charme dieses Hauses überzeugen können.
Hinweis: Da das Objekt unter Denkmalschutz steht, ist ein Energieausweis gemäß Gebäudeenergiegesetz (GEG) nicht erforderlich.
Haustiere nach Vereinbarung
Kaltmiete 1400€
Strom und Gas sind in den Nebenkosten nicht enthalten und kommen noch dazu. Die Höhe kann aktuell nicht angegeben werden, da keine Erfahrungswerte vorliegen.
Charme trifft Geschichte: Erstklassig sanierter Altbau mit Denkmalschutz in Rödental
96472 Rödental
Die vollständige Adresse der Immobilie erhalten Sie vom Anbieter.
Auf Karte anzeigen
Die vollständige Adresse der Immobilie erhalten Sie vom Anbieter.
Infos
| Haustyp | Einfamilienhaus |
|---|---|
| Etagenzahl | 3 |
| Wohnfläche ca. | 244 m2 |
| Grundstücksfläche | 380 m2 |
| Bezugsfrei ab | 01.03.2026 |
| Zimmer | 7 |
| Badezimmer | 2 |
| Haustiere | Nach Vereinbarung |
| Garage/Stellplatz | Außenstellplatz |
| Anzahl Garage/Stellplatz | 1 |
Kosten
| Kaltmiete |
1.400 € |
|---|---|
| Nebenkosten | + 100 € |
| Heizkosten | keine Angabe |
| Gesamtmiete | 1.500 € (zzgl. Heizkosten) |
Weiter mieten oder doch kaufen?
Wer in Miete wohnt, überweist dem Vermieter im Laufe der Jahre hohe Summen, die sich
auch in die eigenen vier Wände investieren lassen könnten.
Bausubstanz & Energieausweis
| Baujahr | 1900 |
|---|---|
| Letzte Sanierung | 1993 |
| Objektzustand | Vollständig Renoviert |
| Qualität der Austattung | Normal |
| Heizungsart | Zentralheizung |
| Wesentliche Energieträger | Gas |
| Energieausweis | laut Gesetz nicht erforderlich |
Beschreibung des Objekts
Adresse
96472 Rödental
Interessante Orte
Preis- und Lageinformationen
Preistrend für Bestandsimmobilien in Rödental