Fertigstellung des Gebäudes und mögliche Vermietung ab Mai/Juni 2026
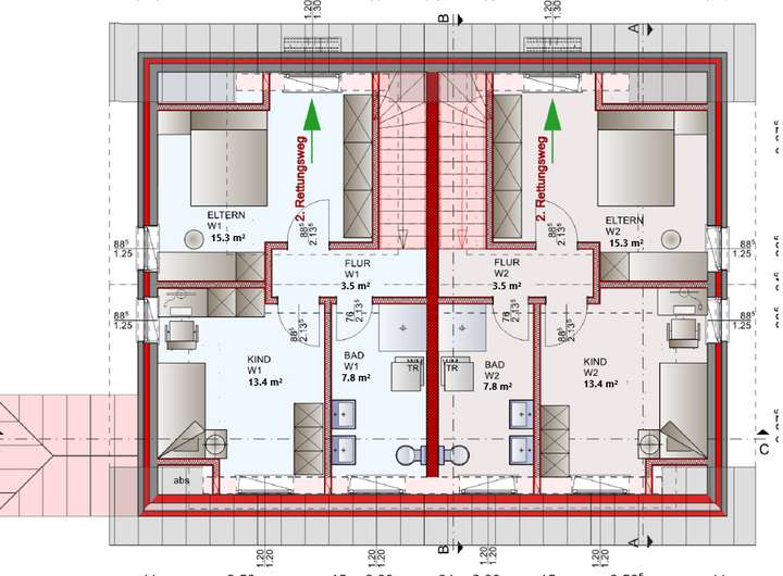
Zur Vermietung stehen zwei hochwertige Neubau-Doppelhaushälften mit jeweils ca. 90 m² Wohnfläche, errichtet nach dem KfW-70-Energieeffizienzstandard, in ruhiger Lage von Lindern (Kleinenging).
Die Doppelhaushälften erstrecken sich jeweils über zwei Geschosse und überzeugen durch eine sehr helle, freundliche Raumgestaltung auf beiden Ebenen. Bodentiefe Fenster auf der Südseite sorgen für viel Tageslicht und bieten einen freien, idyllischen Blick ins Grüne. Der Garten je Haushälfte, sowie die direkte Nähe zur Natur schaffen eine hohe Wohn- und Lebensqualität.
Ausstattung & Highlights
• Fußbodenheizung im gesamten Haus
• Hochwertiges Echtholz-Eichenparkett
• Moderne Einbauküche
• Glasfaser-Internetanschluss
• Fernwärmeversorgung
• Photovoltaikanlage
• Externer Versorgungsraum (z. B. für Haustechnik)
• Separater Fahrradschuppen
• Angrenzende Weide mit freiem Ausblick (Nutzungsmöglichkeit gegeben)
Die angegebene Miete versteht sich als Kaltmiete je Doppelhaushälfte. Momentan stehen beide Hälften noch zur Verfügung.
📞 Interesse?
Für weitere Informationen oder eine Besichtigung kontaktieren Sie mich bitte telefonisch unter:
0156 79721508
Moderne Neubau-Doppelhaushälfte (90 m²) nach KfW-70-Standard in Lindern (Kleinenging)
Haferland 7,
49699 Lindern (Oldenburg)
Auf Karte anzeigen
Infos
| Haustyp | Doppelhaushaelfte |
|---|---|
| Etagenzahl | 2 |
| Wohnfläche ca. | 90 m2 |
| Nutzfläche | 90 m2 |
| Grundstücksfläche | 400 m2 |
| Bezugsfrei ab | 15.5.2026 |
| Zimmer | 3 |
| Schlafzimmer | 3 |
| Badezimmer | 2 |
| Haustiere | Ja |
Kosten
| Kaltmiete |
890 € |
|---|---|
| Nebenkosten | + 160 € |
| Heizkosten | in Nebenkosten enthalten |
| Gesamtmiete | 1.050 € |
| Kaution o. Genossenschaftsanteile | 1.500,00 |
Weiter mieten oder doch kaufen?
Wer in Miete wohnt, überweist dem Vermieter im Laufe der Jahre hohe Summen, die sich
auch in die eigenen vier Wände investieren lassen könnten.
Bausubstanz & Energieausweis
| Baujahr | 2026 |
|---|---|
| Objektzustand | Erstbezug |
| Qualität der Austattung | Gehoben |
| Heizungsart | Fernwärme |
| Wesentliche Energieträger | Fernwärme |
| Energieausweis | liegt zur Besichtigung vor |
Beschreibung des Objekts
Lage
Lindern (Oldenburg) ist eine Gemeinde im Landkreis Cloppenburg. Die Lage bietet eine gute Anbindung an die umliegenden Städte und eine ruhige Wohnatmosphäre. Einkaufsmöglichkeiten für den täglichen Bedarf sowie Ärzte und Schulen sind in der Nähe vorhanden. Die Umgebung lädt zu Freizeitaktivitäten im Grünen ein.
Grundriss
Grundriss_EG
>
>
Grundriss_DG
>
>
Adresse
Haferland 7, 49699 Lindern (Oldenburg)
Interessante Orte
Preis- und Lageinformationen
Preistrend für Bestandsimmobilien in Lindern (Oldenburg)