WELCOME HOME. WELCOME TO YOUR FUTURE.
Dein Zuhause ist mehr als vier Wände – es ist dein Rückzugsort, dein Investment, dein neuer Lebensabschnitt.
White&Black macht Wohneigentum bezahlbar, modern und flexibel.
Jetzt ist der richtige Moment, um anzukommen.
Mach aus deiner Miete Wohneigentum!
36137 Großenlüder
Die vollständige Adresse der Immobilie erhalten Sie vom Anbieter.
Auf Karte anzeigen
Die vollständige Adresse der Immobilie erhalten Sie vom Anbieter.
Infos
| Haustyp | Einfamilienhaus |
|---|---|
| Wohnfläche ca. | 141 m2 |
| Nutzfläche | 0 m2 |
| Grundstücksfläche | 508 m2 |
| Zimmer | 4 |
| Schlafzimmer | 3 |
| Badezimmer | 1 |
| Anzahl Garage/Stellplatz | 0 |
Kosten
| Kaltmiete |
1.580 € |
|---|---|
| Nebenkosten | keine Angabe |
| Heizkosten | keine Angabe |
| Gesamtmiete | 1.580 € |
Weiter mieten oder doch kaufen?
Wer in Miete wohnt, überweist dem Vermieter im Laufe der Jahre hohe Summen, die sich
auch in die eigenen vier Wände investieren lassen könnten.
Bausubstanz & Energieausweis
| Baujahr | 2026 |
|---|---|
| Qualität der Austattung | Gehoben |
| Heizungsart | Wärmepumpe |
Beschreibung des Objekts
Ausstattung
THINK FAST-VOLLENDET – Der perfekte Mittelweg.
- Technik, Heizung & Sanitärinstallation sind drin – du kümmerst dich nur um den Feinschliff
- Professionell vorbereitet für deinen Innenausbau – sauber, trocken & startklar
- Keine Rohbauphase mehr – sofort loslegen mit Boden, Wand & Co.
- Ideal für Teil-Eigenleistung – mit smartem Budget zum eigenen Zuhause
- Effizient & zukunftssicher – Haustechnik und Dämmung auf Top-Niveau
Für alle, die noch selbst Hand anlegen – aber nicht bei null anfangen wollen.
Lage
Ein neues Zuhause zum ankommen und wohlfühlen: Hier erwartet dich eine ruhige Wohnlage gesäumt von Natur, Wiesen, Feldern und sanften Hügeln – perfekt, wenn du ländliche Idylle mit guter Erreichbarkeit verbinden möchtest.
Von deinem neuen Zuhause aus erreichst du in wenigen Minuten das Zentrum von Großenlüder, wo dich eine hervorragende Infrastruktur erwartet: vom Einkaufen über Schulen und Kinderbetreuung bis hin zu ärztlicher Versorgung und vielfältigen Freizeitmöglichkeiten. Fulda mit seinem umfangreichen Kultur-, Bildungs- und Dienstleistungsangebot sowie ICE-Anschluss ist nur rund 20 Autominuten entfernt. Auch Bad Salzschlirf, Hosenfeld und Lauterbach liegen angenehm nah.
Sonstige Angaben
Vereinbare am Besten gleich ein persönliches Gespräch.
Hab bitte Verständnis dafür, dass weitere Details zum Grundstück erst nach einem persönlichen Gespräch bekanntgegeben werden und nur vollständige Anfragen bearbeitet werden können.
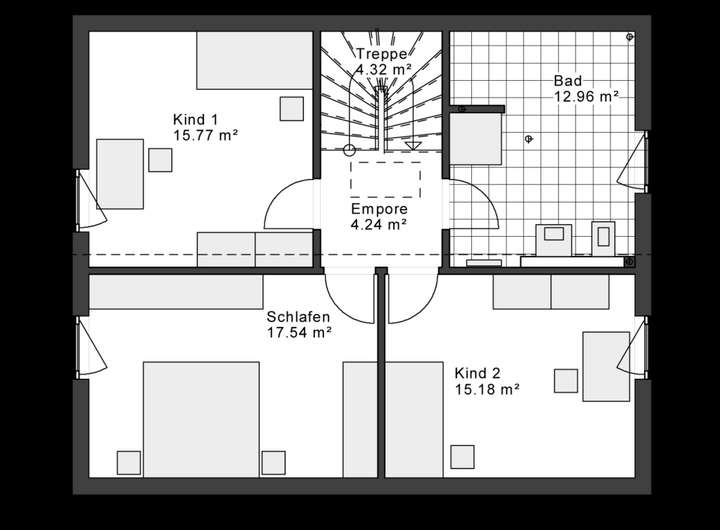
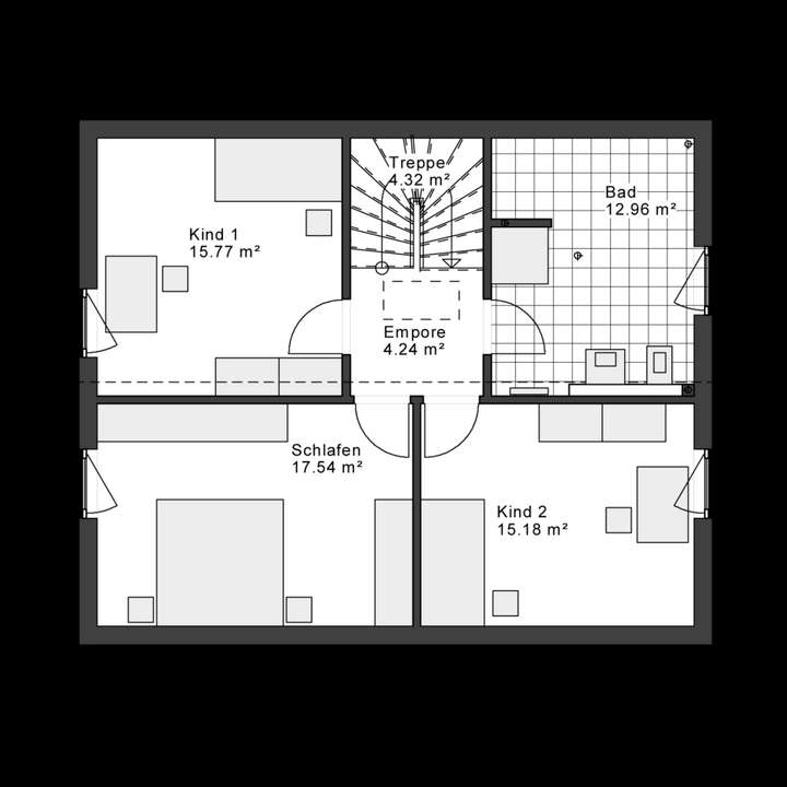
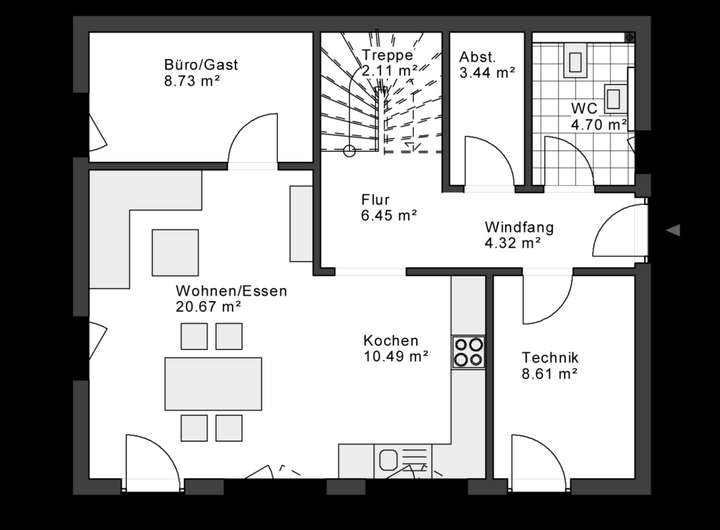
Grundriss
Grundriss EG
>
>
Grundriss OG
>
>
Adresse
36137 Großenlüder
Interessante Orte
Preis- und Lageinformationen
Preistrend für Bestandsimmobilien in Großenlüder