Bei dem Mietobjekt handelt es sich um eine ansprechende und gepflegte Doppelhaushälfte mit großzügigem Südost-Garten. Die Doppelhaushälfte kann zum 01.02.2026 bezogen werden.
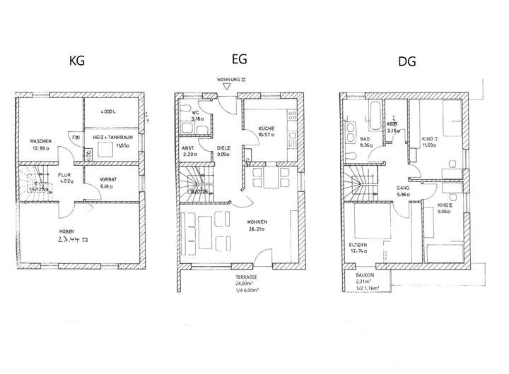
Der Zugang zum Haus erfolgt über die Nordseite des Grundstücks. Im Erdgeschoss befinden sich neben offenem Wohn-Esszimmer und Küche ein Gäste-WC und ein großer Abstellraum. Die große Südterrasse mit Fliesenbelag betritt man vom Wohnzimmer aus. Im Wohnzimmer besteht die Möglichkeit zum Betrieb eines eigenen Kaminofens.
Im Dachgeschoss finden 3 Schlafzimmer, ein Badezimmer (mit Badewanne und Dusche) und ein weiterer Abstellraum Platz. Vom größten Zimmer aus hat man Zutritt auf den frisch sanierten und überdachten Südbalkon. Die beiden kleineren Zimmer wurden zuletzt mit zwei großen Dachflächenfenstern ausgestattet.
Im Keller befinden sich ein großer, heller Hobbyraum, die Waschküche, ein Vorratsraum und die Heizungsanlage.
Diese wurde im März 2017 komplett erneuert und auf moderne, energieeffiziente Brennwerttechnik umgestellt. Im April 2022 wurden moderne und 3fach-verglaste Fenster im gesamten Objekt eingebaut. Sowohl die moderne Heizungsanlage, als auch die neuen wärmedämmenden Fenster verbessern den errechneten Gebäudeenergiekennwert im Energieausweis (erstellt Januar 2017) wesentlich.
Zum Haus gehören zwei Kfz-Stellplätze: ein Garagenstellplatz und ein Außenstellplatz.
Hinweis: Es werden nur aussagekräftige Nachrichten von Mietbewerbern berücksichtigt!
Doppelhaushälfte in Kaltenberg bei Geltendorf
St.-Elisabeth-Str. 6a,
82269 Geltendorf
Auf Karte anzeigen
Infos
| Haustyp | Doppelhaushaelfte |
|---|---|
| Etagenzahl | 2 |
| Wohnfläche ca. | 110 m2 |
| Nutzfläche | 64 m2 |
| Grundstücksfläche | 250 m2 |
| Bezugsfrei ab | 1.2.2026 |
| Zimmer | 4 |
| Schlafzimmer | 3 |
| Badezimmer | 1 |
| Haustiere | Nein |
| Garage/Stellplatz | Garage |
| Anzahl Garage/Stellplatz | 1 |
Kosten
| Kaltmiete |
1.460 € |
|---|---|
| Nebenkosten | + 200 € |
| Heizkosten | in Nebenkosten enthalten |
| Gesamtmiete | 1.660 € |
| Miete für Garage/Stellplatz | 65 € |
| Kaution o. Genossenschaftsanteile | 4.380,00 |
Weiter mieten oder doch kaufen?
Wer in Miete wohnt, überweist dem Vermieter im Laufe der Jahre hohe Summen, die sich
auch in die eigenen vier Wände investieren lassen könnten.
Bausubstanz & Energieausweis
| Baujahr | 1988 |
|---|---|
| Letzte Sanierung | 2022 |
| Objektzustand | Gepflegt |
| Qualität der Austattung | Normal |
| Heizungsart | Öl-Heizung |
| Wesentliche Energieträger | Öl |
| Energieausweis | liegt vor |
| Energieausweistyp | Verbrauchsausweis |
| Energieverbrauchskennwert | 112,3 kWh/(m²*a) |
| Energieeffizienzklasse | D |
112,3
kWh/(m²*a)
Energieeffizienzklasse D
- A+
- A
- B
- C
- D
- E
- F
- G
- H
- 0
- 25
- 50
- 75
- 100
- 125
- 150
- 175
- 200
- 225
- >250
Beschreibung des Objekts
Ausstattung
Alle Böden sind mit Fliesen belegt und im Erd- und Dachgeschoss mit Fußbodenheizung ausgestattet. Im Erdgeschoss wurden kürzlich weiße Fußbodenleisten angebracht.
Die Fenster wurden 2022 erneuert.
Lage
Das Mietobjekt liegt in Kaltenberg, einem Ortsteil der Großgemeinde Geltendorf.
Das Haus liegt ruhig in einer wenig befahrenen Straße in direkter Nähe zu Schloss Kaltenberg. Kaltenberg ist berühmt für seine mittelalterlichen Ritterspiele und seinen Weihnachtsmarkt. Die Ortschaft verfügt über ein Einkaufszentrum mit ALDI, REWE, Ernstings Family und Rossmann, das fußläufig erreichbar ist. Das Objekt besticht durch gute Infrastruktur UND eine naturnahe Lage am direkten Ortsrand.
Kindergärten, Kinderkrippen und Horte gibt es im benachbarten Walleshausen und im Hauptort Geltendorf, wie auch eine zweizügige Grundschule. Ein neuer Kinderspielplatz ist in direkter Nachbarschaft.
Mit dem Bus (Haltestelle 500m entfernt) erreicht man mehrmals täglich den Bahnhof Geltendorf (S4 München und Regionalbahn Augsburg/Schongau/Lindau) und auch die Kreisstadt Landsberg am Lech. Mit dem Auto erreicht man in 10 Minuten die Auffahrt Windach zur A 96 München-Lindau. Für Pendler nach München ebenso perfekt wie für Pendler nach Augsburg.
Grundriss
Grundrisse
>
>
Adresse
St.-Elisabeth-Str. 6a, 82269 Geltendorf
Interessante Orte
Preis- und Lageinformationen
Preistrend für Bestandsimmobilien in Geltendorf