Es handelt sich um eine von Fischer-Bau GmbH neu massiv gebaute Doppelhaushälfte mit ausgebautem Obergeschoss. Die Doppelhaushälfte wird zum Jahresende 2025 fertig erstellt.
Die Immobilie befindet sich im Ortsteil Salzdahlum der Stadt Wolfenbüttel in einer sehr ruhigen Wohngegend und liegt an einer verkehrsberuhigten Straße.
Die Doppelhaushälfte verfügt über ein Grundstück mit 390 m² im Neubaugebiet „Am Ahlumer Wege“
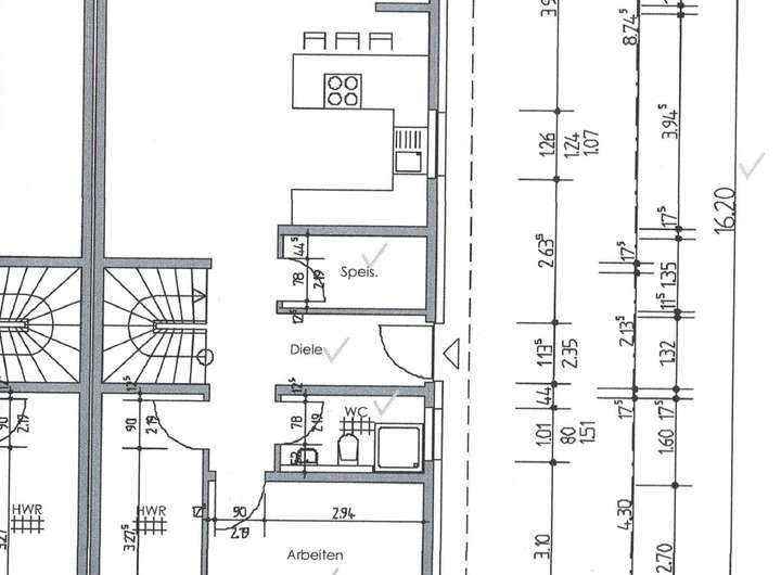
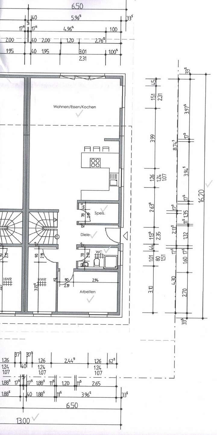
Ihr neues Zuhause beginnt in dem Bereich „Diele“ von der Sie alle Räumlichkeiten wie Arbeitszimmer, Hauswirtschaftsraum, Gäste-WC, Speisekammer, die offene Küche mit Essbereich und das anschließende angrenzende Wohnzimmer erreichen. Sie erreichen vom Wohnzimmer den Terrassenbereich mit Blick in die Naturlandschaft, einmalige Erholung.
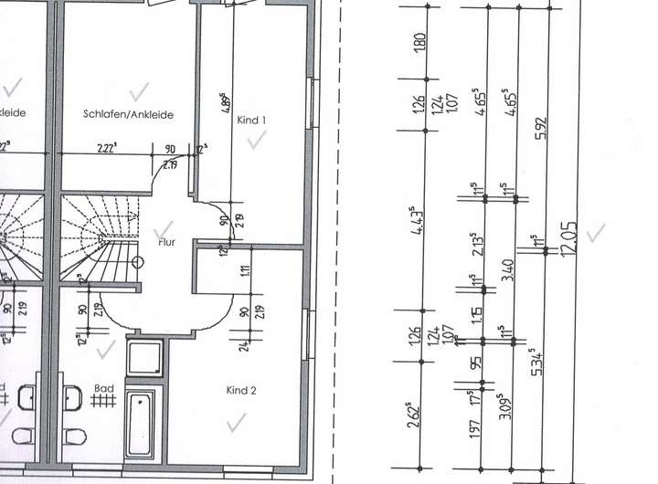
Über die halb gewendelte Treppenanlage erreichen Sie das Obergeschoss mit Flur, Schlafen/Ankleide, Bad und die beiden Kinderzimmer.
Von dem Kinder- und Schlafzimmer geht es raus auf den großzügigen Balkon mit einem Ausblick den Sie nicht vergessen werden.
Alles zusammengefasst „Hier beginnt Ihr Urlaub“, was will man mehr.
Eine Doppelhaushälfte zu vermieten
Balthasar-Lauterbach-Weg 23,
38302 Wolfenbüttel
Auf Karte anzeigen
Infos
| Haustyp | Doppelhaushaelfte |
|---|---|
| Etagenzahl | 2 |
| Wohnfläche ca. | 146 m2 |
| Nutzfläche | 28,27 m2 |
| Grundstücksfläche | 390 m2 |
| Bezugsfrei ab | nach Vereinbarung |
| Zimmer | 3 |
| Schlafzimmer | 2 |
| Badezimmer | 2 |
| Haustiere | Nein |
| Garage/Stellplatz | Carport |
| Anzahl Garage/Stellplatz | 2 |
Kosten
| Kaltmiete |
2.200 € |
|---|---|
| Nebenkosten | + 100 € |
| Heizkosten | keine Angabe |
| Gesamtmiete | 2.470 € (zzgl. Heizkosten) |
| Miete für Garage/Stellplatz | 70 € |
| Kaution o. Genossenschaftsanteile | 4540 |
Weiter mieten oder doch kaufen?
Wer in Miete wohnt, überweist dem Vermieter im Laufe der Jahre hohe Summen, die sich
auch in die eigenen vier Wände investieren lassen könnten.
Bausubstanz & Energieausweis
| Baujahr | 2025 |
|---|---|
| Objektzustand | Erstbezug |
| Qualität der Austattung | Gehoben |
| Heizungsart | Fußbodenheizung |
| Wesentliche Energieträger | Strom |
| Energieausweis | liegt vor |
| Energieausweistyp | Bedarfsausweis |
| Energieverbrauchskennwert | 25,8 kWh/(m²*a) |
| Energieeffizienzklasse | A+ |
25,8
kWh/(m²*a)
Energieeffizienzklasse A+
- A+
- A
- B
- C
- D
- E
- F
- G
- H
- 0
- 25
- 50
- 75
- 100
- 125
- 150
- 175
- 200
- 225
- >250
Beschreibung des Objekts
Ausstattung
Das Objekt ist u.a. wie folgt ausgestattet:
- Erd- und Obergeschoss
- Edelputzfassade
- Warmwasserfußbodenheizung im Erd- und Obergeschoss
- Vaillant Luft-/Wasserwärmepumpe
- Hochwertige Fensterelemente, 3-fach Verglasung, Ug 0,7 w/m²k
- Farbig folierte (Farbe: anthrazit) Fensterelemente einschließlich Haustür
- Rollläden im gesamten Erd- und Obergeschoss
- Hochwertige Sanitärausstattung im Bad
- Hochwertige Sanitärausstattung im Gäste-WC mit Dusche bzw. Gäste-WC
- Geflieste Duschen mit Edelstahlablaufrinne im WC und Bad
- Gepflegte Gartenanlage mit Blick zur Feldrandlage
- Vielseitiges Raumangebot im Erd- und Obergeschoss
- Dachterrasse mit ca. 24 m² jeweils von dem Kinder- und Schlafzimmer zu erreichen
- Carport einschließlich überdachten Hauseinganges
… und vieles mehr.
Gerne informiere ich Sie über die vielen Details dieser Immobilie.
Lage
Das Grundstück befindet sich in einer reinen Wohngegend und an einer Feldrandlage zur puren Erholung an einer Sackgasse gelegen.
Salzdahlum gehört zur Stadt Wolfenbüttel und bietet in unmittelbarer Nähe alles was man zum täglichen Leben benötigt.
Einige zeitnah zu erreichende Details:
- Bushaltestelle, Bäckereien, Kindergarten, Grundschule, Gymnasium, Apotheke, Arztpraxen, Supermärkte, Bahnhof usw. alles was Sie brauchen ist vorhanden in unmittelbarer Nähe zu Wolfenbüttel, Braunschweig-Mascherode, Braunschweig-Stöckheim.
- Die Autobahn in allen Richtungen ist in wenigen Autominuten erreichbar.
Sonstige Angaben
Eine Courtage fällt nicht an.
Die Bodenbeläge in den nicht gefliesten Räumen und die Einbauküche sind vom Mieter zu erbringen.
Alle Angaben in diesem Exposé habe ich nach bestem Wissen erstellt, erheben allerdings keinen Anspruch auf Richtigkeit und Vollständigkeit und sind ohne Gewähr und basieren ausschließlich auf Informationen, die mir von meiner Auftraggeberin übermittelt wurden.
Das vorliegende Exposé ist als unverbindliche Information zu verstehen und kann nicht als Rechtsgrundlage herangezogen werden.
Rechtskräftig ist ausschließlich der notariell abgeschlossene Kaufvertrag.
Ich übernehme keine Gewähr für die Vollständigkeit, Richtigkeit und Aktualität dieser Angaben. Irrtum und Zwischenverkauf vorbehalten.
Gerne berate ich Sie persönlich über die vielfältigen Möglichkeiten, damit Sie die richtige Entscheidung treffen!
Ihr Ansprechpartner:
Dipl.-Ing. Ernst Stadtlander
Tel. +49 172 4 31 74 71
Grundriss
Grundriss - Erdgeschoss
>
>
Grundriss - Obergeschoss
>
>
Schnitt
>
>
Adresse
Balthasar-Lauterbach-Weg 23, 38302 Wolfenbüttel
Interessante Orte
Preis- und Lageinformationen
Preistrend für Bestandsimmobilien in Wolfenbüttel