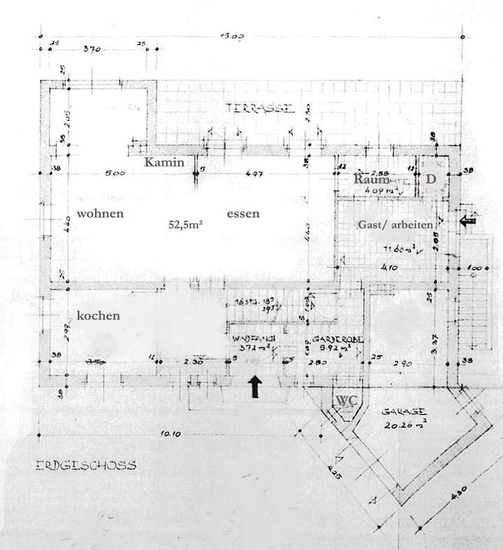
Ein Haus mit Charakter, liebevoll gepflegt und gehegt, sucht Mieter die es schätzen. Dieses neue zu Hause befindet sich am Ende einer Sackgasse, nahe der Kempener- Allee, in begehrter Lage. Über Eingangsstufen gelangen Sie zunächst in die Eingangsdiele, mit schönem Garderobenbereich und WC- Zugang. Die große Wohnküche ( Einbauküche ist vorhanden) bietet ausreichend Platz für einen Essbereich, sowie Zugang auf die seitlich gepflasterte Terrasse. Weiter geht es in den wunderbaren, über 50m² großen Wohn- und Essbereich mit offenem Kamin und mehrfach Zugang auf die Hauptterrasse. Ein kleinerer Raum diente in den letzten Jahren der Hauswirtschaft. Ein Schlaf- Gäste- oder Büroraum im Erdgeschoss wurde mit einem Waschtisch und einem eigenen kleinen Duschbereich versehen. Auch von hier aus gelangen Sie in das Gartengrundstück. Die Hauptschlafbereich befinden sich im großzügigen Dachgeschoss. Hier befinden sich nochmals 2 Kinderzimmer und das schöne Kinderbad, ein großzügiger Bereich zum Abstellen und der über 20m² große Elternbereich mit eigenem Bad und Zugang auf einen kleinen Balkon. Das Haus unterkellert und bietet neben einer Außentreppe die üblichen Hauswirtwirtschafts- Lager- und Technikflächen, als auch einen Hobbyraum ( Party). Eine kleinere Garage wurde bisher zum Abstellen von Fahrrädern und dergleichen genutzt, die zweite Garage diente dem PKW.
Nahe Kempener-Allee!! charmantes Haus sucht charmante Mieter -190m² beliebte Wohnlage
47803 Krefeld
Die vollständige Adresse der Immobilie erhalten Sie vom Anbieter.
Auf Karte anzeigen
Die vollständige Adresse der Immobilie erhalten Sie vom Anbieter.
Infos
| Haustyp | Einfamilienhaus |
|---|---|
| Etagenzahl | 2 |
| Wohnfläche ca. | 190 m2 |
| Nutzfläche | 100 m2 |
| Grundstücksfläche | 650 m2 |
| Bezugsfrei ab | kurzfristig |
| Zimmer | 5 |
| Schlafzimmer | 3 |
| Badezimmer | 2 |
| Haustiere | Nach Vereinbarung |
| Garage/Stellplatz | Garage |
| Anzahl Garage/Stellplatz | 2 |
Kosten
| Kaltmiete |
2.250 € |
|---|---|
| Nebenkosten | + 300 € |
| Heizkosten | keine Angabe |
| Gesamtmiete | 2.550 € (zzgl. Heizkosten) |
| Kaution o. Genossenschaftsanteile | 5.750,00 |
Weiter mieten oder doch kaufen?
Wer in Miete wohnt, überweist dem Vermieter im Laufe der Jahre hohe Summen, die sich
auch in die eigenen vier Wände investieren lassen könnten.
Bausubstanz & Energieausweis
| Baujahr | 1954 |
|---|---|
| Letzte Sanierung | 2018 |
| Objektzustand | Modernisiert |
| Qualität der Austattung | Gehoben |
| Heizungsart | Zentralheizung |
| Wesentliche Energieträger | Erdgas leicht |
| Energieausweis | liegt vor |
| Energieausweistyp | Bedarfsausweis |
| Energieverbrauchskennwert | 219,8 kWh/(m²*a) |
| Energieeffizienzklasse | G |
219,8
kWh/(m²*a)
Energieeffizienzklasse G
- A+
- A
- B
- C
- D
- E
- F
- G
- H
- 0
- 25
- 50
- 75
- 100
- 125
- 150
- 175
- 200
- 225
- >250
Beschreibung des Objekts
Ausstattung
Das Haus wurde stetig gepflegt, instand gehalten und modernisiert. Auf Sie warten moderne, helle Sanitärbereiche in welchen man sich gerne aufhält. Zum Teil sind Einbauschränke vorhanden. Die Böden im EG wurden zum großen Teil in schönem Parkett ausgelegt, aber auch Vinyl und Stein wurden verarbeitet. Im Dachgeschoss wurde der Bodenbelag durch Vinyl in Holzoptik modernisiert. Sämtliche Fenster wurden in 2017 aufwendig getauscht. Die Beheizung erfolgt über eine Gas- Zentralanlage aus 2018, Die Warmwasserbereitung erfolgt ebenfalls zentral. Der Strom, Netzwerkkabel, als auch Leitungen wurden modernisiert. Die monatlich zu leistenden Nebenkosten teilen sich in eine Vorauszahlung an die Vermieter, je nach Personenzahl mit ca. 300,-€ für Wohngebäude, Wasser- Grundsteuer- Mülltonnen..... Strom und Gas (aktuell Abschlag 425,-€) sind von dem Mieter in eigenen Verträgen abzuschließen. Die große, moderne Einbauküche verbleibt zu ihrer Nutzung im Haus.
Lage
Kurze Wege und bequeme Wege zu allen Bereichen des täglichen Lebens sind hier garantiert. Das gilt für die Großen und auch kleinen Bewohner. Zwischen Kempener - Allee und dem Amtsgericht gelegen, befinden sich Einkaufsmöglichkeiten, Schulen - Kindergärten, Ärzte- Behörden, Anschlüsse an das öffentliche Nahverkehrsnetzt oder auch etliche Sportstätten im nahen, fast fußläufigem Umfeld.
Sonstige Angaben
Bitte stellen Sie die Erstanfrage zunächst per Mail und geben hier bitte Ihre vollständigen Kontaktdaten mit Rückrufnummer und die zum Haushalt gehörende Personenanzahl an! Keine Wohngemeinschaften/ Wohngruppen!! Wir weisen darauf hin, dass nur Anfragen mit vollständigen Angaben Berücksichtigt werden können. Wohngemeinschaften sind nicht gewünscht, auch werden keine Kurzzeitmieter gesucht, so dass zunächst eine Kündigungssperre von 18Monaten zum tragen kommt. Zum, bzw. vor Vertragsabschluss werden die aktuelle Auskunft der Schufa, als auch Einkommensnachweise geprüft. Jobcenterübernahme ist ausgeschlossen.
Grundriss
GrundrisseEGnetz Kopie
>
>
GrundrisseDGnetz
>
>
Kellergeschossnetz
>
>
Adresse
47803 Krefeld
Interessante Orte
Preis- und Lageinformationen
Preistrend für Bestandsimmobilien in Kempener Feld/Baackeshof