Dieses gepflegte Reihenmittelhaus mit ca. 101 m² Wohnfläche und 210 m² Grundstücksfläche befindet sich in Neu-Anspach Westerfeld am Ortsrand Richtung Anspach.
Das Haus verfügt über 2 Etagen mit 4 Zimmern, Badezimmer und Gäste-WC.
Mittelpunkt des Hauses ist das geräumige Wohn-Esszimmer im Erdgeschoss. Der Blick über die Felder lässt einen von hier gut in den Tag starten. Am Nachmittag sorgt die Lage für einen sonnigen Wohnbereich. Im Obergeschoss befindet sich ein geräumiges Schlafzimmer mit Platz für eine Sitzecke, der ebenfalls zum Verweilen einlädt. Ein großes Kinderzimmer bietet Raum für junge Familien, ein kleiner Raum direkt daneben bietet sich für die Arbeit im Home Office an.
Im Keller befinden sich ein Vorratsraum, Heizraum mit Gasheizung und Platz für eine Waschmaschine. Ein Hobbyraum mit Ausgang zum Garten macht das Haus zu einem idealen Ort für Heimwerker, die sich eine Werkstatt einrichten wollen. Der kleine Garten bietet Raum zum Gärtnern, ohne zur Belastung zu werden. Ein privater Außenstellplatz steht zur Verfügung.
Bei der Grundsanierung 2025 wurde das Dach neu gedeckt und isoliert, die Bodenbeläge erneuert, das Gäste-WC komplett erneuert, Küche und Flur mit modernen Fliesen ausgestattet und alles von innen und außen neu gestrichen.
Erstbezug nach Sanierung: Reihenmittelhaus in Neu-Anspach OT Westerfeld
Eschbacher Straße 34,
61267 Neu-Anspach
Auf Karte anzeigen
Infos
| Haustyp | Reihenmittelhaus |
|---|---|
| Etagenzahl | 2 |
| Wohnfläche ca. | 101 m2 |
| Nutzfläche | 49 m2 |
| Grundstücksfläche | 210 m2 |
| Bezugsfrei ab | 1.2.2026 |
| Zimmer | 4 |
| Schlafzimmer | 3 |
| Badezimmer | 2 |
| Haustiere | Nach Vereinbarung |
| Garage/Stellplatz | Außenstellplatz |
| Anzahl Garage/Stellplatz | 1 |
Kosten
| Kaltmiete |
1.400 € |
|---|---|
| Nebenkosten | + 180 € |
| Heizkosten | keine Angabe |
| Gesamtmiete | 1.580 € (zzgl. Heizkosten) |
| Kaution o. Genossenschaftsanteile | 4.200,00 |
Weiter mieten oder doch kaufen?
Wer in Miete wohnt, überweist dem Vermieter im Laufe der Jahre hohe Summen, die sich
auch in die eigenen vier Wände investieren lassen könnten.
Bausubstanz & Energieausweis
| Baujahr | 1979 |
|---|---|
| Letzte Sanierung | 2025 |
| Objektzustand | Erstbezug nach Sanierung |
| Qualität der Austattung | Normal |
| Heizungsart | Gas-Heizung |
| Wesentliche Energieträger | Gas |
| Energieausweis | liegt vor |
| Energieausweistyp | Bedarfsausweis |
| Energieverbrauchskennwert | 132,8 kWh/(m²*a) |
| Energieeffizienzklasse | E |
132,8
kWh/(m²*a)
Energieeffizienzklasse E
- A+
- A
- B
- C
- D
- E
- F
- G
- H
- 0
- 25
- 50
- 75
- 100
- 125
- 150
- 175
- 200
- 225
- >250
Beschreibung des Objekts
Lage
Neu-Anspach, die junge Stadt im Taunus, bietet eine gute Infrastruktur mit Einkaufsmöglichkeiten, Schulen, medizinischer Versorgung und Freizeitmöglichkeiten. Es besteht mit der Taunusbahn eine gute Anbindung an den öffentlichen Nahverkehr, die in den nächsten Jahren zur S-Bahn ausgebaut wird. Der Bahnhof Anspach ist vom Haus aus zu Fuß in gut 10 Minuten zu erreichen (1,2 km). Von hier ist man schnell in Bad Homburg und Frankfurt.
Die Umgebung lädt zu Aktivitäten im Freien ein und bietet eine angenehme Wohnatmosphäre.
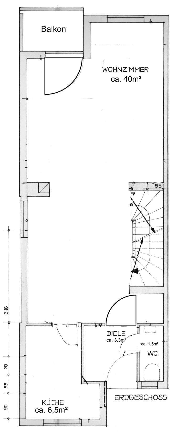
Grundriss
Grundriss EG
>
>
Grundriss Obergeschoss
>
>
Keller Grundriss
>
>
Adresse
Eschbacher Straße 34, 61267 Neu-Anspach
Interessante Orte
Preis- und Lageinformationen
Preistrend für Bestandsimmobilien in Neu-Anspach