Willkommen in Ihrem neuen Zuhause in Großbottwar (Ortsteil Hof und Lembach) – in dem schönem Zweifamilienhaus mit 2 separaten Wohnungen. Dieses Haus aus dem Baujahr 1995 bietet im EG eine Wohnfläche von 111 m², verteilt auf 3 Zimmer und im DG eine Wohnfläche 70 m² verteilt auf 3 Zimmer. Das Grundstück misst 524 m² in Randlage.
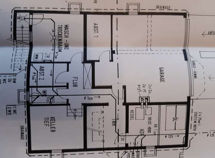
Im Untergeschoss befinden sich eine Garage mit direktem Zugang zum Treppenhaus. Praktischer Abstellraum, kleinem Keller und einem tiefen Keller. Die Waschküche hat eine separate Zähleinrichtungen für EG und DG und die Verbräuche könnten somit auch einzeln aufgeschlüsselt werden. Im Technikraum befindet sich eine Ölzentralheizung die an Sonnentagen durch eine Solarthermieanlage unterstützt wird.
Im Erdgeschoss erwartet Sie ein großzügiger Wohn- und Essbereich, perfekt für gemütliche Abende mit Feuer im Specksteinofen. Hier finden Sie auch eine separate Küche mit Abstellraum. Von den zwei Schlafzimmern kann eines davon auch gut als Büro genutzt werden.
Beide Zimmer sind mit neuen, modernen Vinylböden versehen. Das stilvolle Tageslichtbad verfügt über einen Doppelwaschtisch, WC, Badewanne und Dusche. Ein separates Gäste WC ist ebenfalls vorhanden. Der im Flur befindliche Einbauschrank bietet viel Stauraum und schafft Ordnung.
Im Dachgeschoss erwartet Sie ein heller und großzügiger Wohn- und Essbereich mit herrlichem Panoramablick zum Wunnenstein bis hin zum Forstkopf. Der Balkon lässt sich direkt von diesem Bereich nutzen. Die Einbauküche ist durch eine Theke vom Wohnbereich optisch getrennt. Vom großzügigen Schlafzimmern kann man auf die Felder und die Natur blicken. Neben dem kleinen Büro befinden sich noch 2 kleine Dachkammern. Diese sind ideal zum Einlagern von Koffern oder ähnlichem.
Bis auf das Bad und die Küche sind die Zimmer mit neuen, modernen Vinylböden versehen. Die Dachfenster in der Wohnung verfügen alle über einen Aussenrolladen. Das stilvolle Tageslichtbad verfügt über einen Doppelwaschtisch, WC, Badewanne und Dusche.
Gräumiges Haus mit 2 Wohneinheiten (181 m²) in ruhiger Lage in 71723 Großbottwar
Amselweg 13,
71723 Großbottwar
Auf Karte anzeigen
Infos
| Haustyp | Mehrfamilienhaus |
|---|---|
| Etagenzahl | 2 |
| Wohnfläche ca. | 181 m2 |
| Nutzfläche | 111 m2 |
| Grundstücksfläche | 524 m2 |
| Bezugsfrei ab | 1.2.2026 |
| Zimmer | 6 |
| Schlafzimmer | 3 |
| Badezimmer | 2 |
| Haustiere | Nein |
| Garage/Stellplatz | Außenstellplatz |
| Anzahl Garage/Stellplatz | 3 |
Kosten
| Kaltmiete |
1.700 € |
|---|---|
| Nebenkosten | + 120 € |
| Heizkosten | + 300 € |
| Gesamtmiete | 2.120 € (zzgl. Heizkosten) |
| Kaution o. Genossenschaftsanteile | 5.100,00 |
Weiter mieten oder doch kaufen?
Wer in Miete wohnt, überweist dem Vermieter im Laufe der Jahre hohe Summen, die sich
auch in die eigenen vier Wände investieren lassen könnten.
Bausubstanz & Energieausweis
| Baujahr | 1995 |
|---|---|
| Objektzustand | Gepflegt |
| Qualität der Austattung | Normal |
| Heizungsart | Öl-Heizung |
| Wesentliche Energieträger | Öl |
Beschreibung des Objekts
Ausstattung
Ausstattung
Allgemein:
- Randlage (Wendeplatte)
- 1 Garage, 2 Stellplätze
- Terrasse
- Balkon
UG:
- Garage mit Grube
- Abstellraum
- Kleiner Keller
- Waschküche
- Tiefer Keller
- WC (Fliesenboden)
EG:
- Schlafzimmer 1 (Vinylboden neu)
- Schlafzimmer 2 oder Büro (Vinylboden neu)
- Tageslichtbad mit WC, Doppel-Waschbecken, Dusche, Badewanne (Fliesenboden)
- Tageslicht WC (Fliesenboden)
- Flur (Fliesenboden und Einbauschrank)
- großer Wohn-/Essbereich (Fliesenboden)
- Küche + Speisekammer (Fliesenboden) . Die Einbauküche gehört nicht zum Mietgegenstand. Diese kann kostenlos übernommen werden oder wird vorher ausgebaut.
- Fußbodenheizung (außer in den 2 Schlafzimmern)
- Kamin (Specksteinofen)
- Zugang zur Terrasse
DG:
- Schlafzimmer 1 (Vinylboden neu)
- Büro (Vinylboden neu)
- Tageslichtbad mit WC, Doppel-Waschbecken, Dusche, Badewanne (Fliesenboden)
- großer Wohn-/Essbereich (Vinylboden neu)
- Einbauküche (Fliesenboden)
- Zugang zum Balkon
Lage
Großbottwar ist eine charmante Stadt mit einer guten Infrastruktur. Einkaufsmöglichkeiten für den täglichen Bedarf sowie Ärzte und Schulen sind gut erreichbar. Die Anbindung an den öffentlichen Nahverkehr ist gegeben, und die umliegende Natur lädt zu Freizeitaktivitäten ein. Die Lage im Kreis Ludwigsburg bietet zudem eine gute Erreichbarkeit zu größeren Städten.
Sonstige Angaben
Die Wände in den Wohnungen sind renovierungsbedürftig und können nach eigenen Vorstellungen tapeziert und oder gestrichen werden. Das Treppenhaus, die Kellerräume und die Waschküche sind frisch gestrichen.
Der Garten wird vom Mieter gepflegt.
In den Nebenkosten ist kein Wasser, Strom und Müllgebühren enthalten.
Rauchen ist im Haus nicht gestattet.
Bitte reichen Sie üblichen Bewerbungsunterlagen ein:
Mieter:innen-Selbstauskunft, Bonitätsauskunft, Mietzahlungsbestätigung, Identitätsnachweis, Einkommensnachweis
Adresse
Amselweg 13, 71723 Großbottwar
Interessante Orte
Preis- und Lageinformationen
Preistrend für Bestandsimmobilien in Großbottwar