Dieses Einfamilienhaus in Berlin-Wilmersdorf ist Teil einer 1924 erbauten Wohnanlage. Es bietet auf ca. 240 m² Wohn- und Nutzfläche über vier Etagen (Keller, EG, 1. OG und DG) viel Platz für Familien. Zum Haus gehören auch ein kleiner Balkon, eine Terrasse und ca. 250 m² Garten zur Nutzung und Pflege. Das Haus verfügt über eine normale Innenausstattung, aktuell 3 Kücheneinheiten und je Etage ein Bad/ WC sowie im Keller ein weiteres WC. Der Wohnraum ist flexibel nutzbar und eignet sich auch für eine Wohngemeinschaft. Eine teilgewerbliche Nutzung es ebenfalls möglich. Haustiere sind nach Absprache erlaubt. Mietereigene Umbauten sind ebenfalls nach Absprache möglich. Das Haus ist ab sofort bezugsfrei.
Geräumiges 5-Zimmer-Haus in Berlin-Wilmersdorf, bezugsfrei ab 02.01.2026
10713 Berlin
Die vollständige Adresse der Immobilie erhalten Sie vom Anbieter.
Auf Karte anzeigen
Die vollständige Adresse der Immobilie erhalten Sie vom Anbieter.
Infos
| Haustyp | Reiheneckhaus |
|---|---|
| Etagenzahl | 4 |
| Wohnfläche ca. | 240 m2 |
| Grundstücksfläche | 300 m2 |
| Bezugsfrei ab | 2.1.2026 |
| Zimmer | 5 |
| Schlafzimmer | 3 |
| Badezimmer | 2 |
| Haustiere | Nach Vereinbarung |
Kosten
| Kaltmiete |
2.300 € |
|---|---|
| Nebenkosten | + 800 € |
| Heizkosten | in Nebenkosten enthalten |
| Gesamtmiete | 3.100 € |
| Kaution o. Genossenschaftsanteile | 6.900,00 |
Weiter mieten oder doch kaufen?
Wer in Miete wohnt, überweist dem Vermieter im Laufe der Jahre hohe Summen, die sich
auch in die eigenen vier Wände investieren lassen könnten.
Bausubstanz & Energieausweis
| Baujahr | 1924 |
|---|---|
| Objektzustand | Modernisiert |
| Qualität der Austattung | Normal |
| Heizungsart | Gas-Heizung |
| Wesentliche Energieträger | Gas |
| Energieausweis | liegt zur Besichtigung vor |
Beschreibung des Objekts
Lage
Die Adresse liegt im charmanten Berliner Stadtteil Wilmersdorf im Bezirk Charlottenburg-Wilmersdorf fußläfig vom Fehrbelliner Platz entwfernt. Wilmersdorf ist ein beliebtes Viertel mit guter Infrastruktur und einer moderaten Bevölkerungsdichte. Die öffentliche Verkehrsanbindung ist durch die U-Bahnlinien U7 und U3 sowie die Buslinien 101, 143 und 249 hervorragend. Die Nachbarschaft ist sicher und bietet zahlreiche Schulen, Parks und Spielplätze, was sie besonders für Familien attraktiv macht.
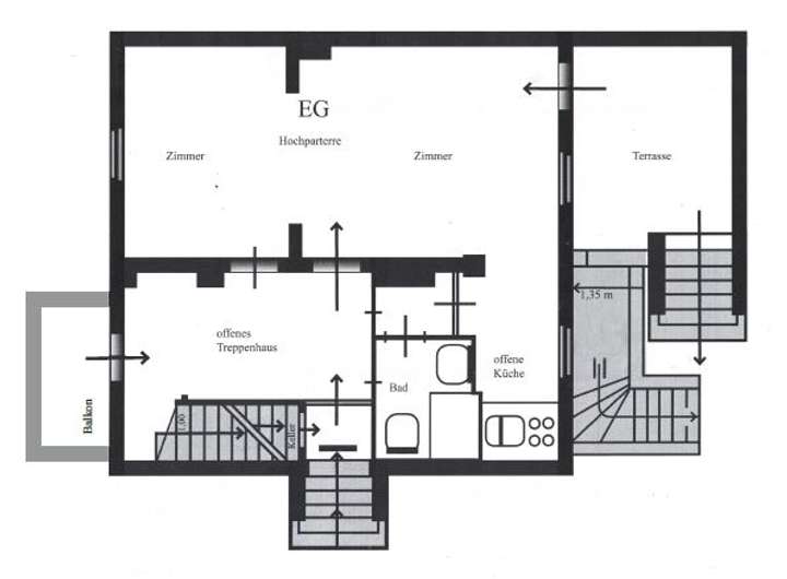
Grundriss
Wohnzimmer
>
>
Adresse
10713 Berlin
Interessante Orte
Preis- und Lageinformationen
Preistrend für Bestandsimmobilien in Wilmersdorf (Wilmersdorf)