Barrierefreies Einfamilienhaus in St. Michaelisdonn (Ortsteil Hopen) – ab 01.04.2026 zu vermieten
Zur Vermietung steht ein modernes, eingeschossiges Einfamilienhaus mit Walmdach in ruhiger und naturnaher Wohnlage von St. Michaelisdonn, Ortsteil Hopen.
Das Haus ist barrierefrei gebaut, hochwertig ausgestattet und ideal für 2–3 Personen, insbesondere für Seniorinnen und Senioren oder Menschen mit motorischen Einschränkungen.
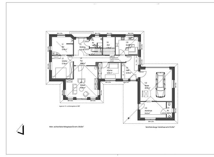
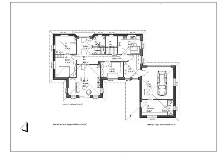
Raumaufteilung:
- Großzügiges Wohnzimmer
- Schlafzimmer mit angeschlossenem, großzügigem Badezimmer mit barrierefreier Dusche
- Arbeitszimmer
- Küche mit hochwertiger Einbauküche
- Großzügiger Flur
- Gäste-WC inklusive Dusche
- Abstellraum
- Hauswirtschaftsraum
Zum Objekt gehört eine großzügige Garage mit Abstellraum und WC.
Oberhalb der Garage befindet sich ein begehbarer Dachboden mit zusätzlichem Stauraum.
Das Haus wurde konsequent barrierefrei geplant.
Alle Türen verfügen über einen Mindestdurchgang von 1 Meter und sind ideal für Rollator- oder Rollstuhlnutzung geeignet.
Flächen:
- Wohn- und Nutzfläche Wohngebäude (netto): 138,82 m²
- Nutzfläche Garage und Abstellraum: 53,64 m²
- Grundstücksgröße: 1.215 m²
Der Garten ist pflegeleicht angelegt und verfügt über eine gepflasterte Terrasse.
Ausstattung & Technik:
- Fußbodenheizung im gesamten Haus
- Moderne Brennstoffzelle zur Beheizung und Stromerzeugung
- Erdgasanschluss
- Lüftungsanlage mit Wärmerückgewinnung
- Glasfaseranschluss
- SAT-Anlage
- Netzwerkanschlüsse (LAN) in vielen Räumen
- Elektrisch betriebene Außenjalousien an allen Fenstern
Barrierefreies Einfamilienhaus mit Garten in ruhiger Lage von St. Michaelisdonn
Hopen 2,
25693 Sankt Michaelisdonn
Auf Karte anzeigen
Infos
| Haustyp | Einfamilienhaus |
|---|---|
| Etagenzahl | 1 |
| Wohnfläche ca. | 138 m2 |
| Nutzfläche | 192,46 m2 |
| Grundstücksfläche | 1.256 m2 |
| Bezugsfrei ab | 1.4.2026 |
| Zimmer | 3 |
| Schlafzimmer | 1 |
| Badezimmer | 2 |
| Haustiere | Nach Vereinbarung |
| Garage/Stellplatz | Garage |
| Anzahl Garage/Stellplatz | 1 |
Kosten
| Kaltmiete |
1.280 € |
|---|---|
| Nebenkosten | + 200 € |
| Heizkosten | in Nebenkosten enthalten |
| Gesamtmiete | 1.480 € |
| Kaution o. Genossenschaftsanteile | 3.840,00 |
Weiter mieten oder doch kaufen?
Wer in Miete wohnt, überweist dem Vermieter im Laufe der Jahre hohe Summen, die sich
auch in die eigenen vier Wände investieren lassen könnten.
Bausubstanz & Energieausweis
| Baujahr | 2017 |
|---|---|
| Objektzustand | Neuwertig |
| Qualität der Austattung | Gehoben |
| Energieausweis | liegt vor |
| Energieausweistyp | Bedarfsausweis |
| Energieverbrauchskennwert | 51,0 kWh/(m²*a) |
Beschreibung des Objekts
Lage
Das Einfamilienhaus befindet sich im ruhigen Ortsteil Hopen von St. Michaelisdonn.
Der Kleve, ist nur unweit vom Haus entfernt, lädt zu Spaziergängen und erholsamen Stunden in naturnaher Umgebung ein.
Die Umgebung ist geprägt von gepflegten Einfamilienhäusern, wenig Verkehr und einer angenehmen Nachbarschaft.
In der näheren Umgebung befindet sich eine Golfanlage, die sich harmonisch in die Landschaft einfügt.
Einkaufsmöglichkeiten, Ärzte, Apotheken, Bahnhof sowie weitere Einrichtungen des täglichen Bedarfs sind in kurzer Zeit erreichbar.
Weitere Dokumente
Energiebedarfsberechnung HopenGrundriss
Einfamilienhaus Erdgschoß
>
>
Adresse
Hopen 2, 25693 Sankt Michaelisdonn
Interessante Orte
Preis- und Lageinformationen
Preistrend für Bestandsimmobilien in Sankt Michaelisdonn