In idyllischer und ruhiger Randlage von Leipzig-Rückmarsdorf entstehen aktuell zwei hochwertige Doppelhaushälften mit modernster Energietechnik und nachhaltigem Konzept in Holzständerbauweise. Hier verbinden sich Komfort, Design und Umweltbewusstsein zu einem außergewöhnlichen Wohngefühl - ideal für Familien die Wert auf Raum, Ruhe und Zukunftssicherheit legen. Und dank fußläufiger S-Bahn-Anbindung trotzdem alle Vorteile der Leipziger Innenstadt genießen möchten.
Jede der modernen Doppelhaushälften bietet ca. 158 m² Wohnfläche auf drei Etagen und steht auf einem ca. 380 m² großen Grundstück mit sonnigem Garten. Der durchdachte Grundriss mit 6 Zimmern schafft Platz für Familie, Arbeiten im Homeoffice und Gäste.
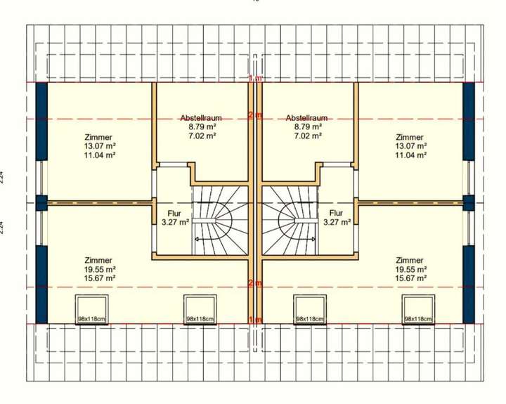
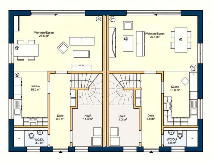
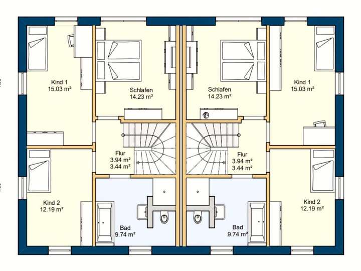
Im Erdgeschoss erwarten Sie ein offener Wohn- und Essbereich, ein Badezimmer sowie ein geräumiger Hauswirtschaftsraum. Eine 4 m breite Hebeschiebetür lässt Garten und Terrasse Teil Ihres lichtdurchfluteten Wohnzimmers werden. Eine voll ausgestattete hochwertige Einbauküche rundet das Angebot ab. Im Obergeschoss befinden sich drei helle Zimmer und ein modernes voll ausgestattetes Tageslichtbad. Das ausgebaute Dachgeschoss bietet zwei zusätzliche Zimmer mit Weitblick bis zum City-Hochhaus oder dem Wasserturm als Wahrzeichen von Rückmardorf. Ein praktischer großer Abstellraum und ein zusätzlicher Spitzboden mit Auszugstreppe sorgen für wertvollen Stauraum.
Im Außenbereich stehen Ihnen zwei PKW-Stellplätze sowie eine Wallbox mit 11 kW Ladeleistung für Ihr Elektrofahrzeug zur Verfügung.
Die Doppelhaushälften werden nach dem "Qualitätssiegel Nachhaltiges Gebäude Plus" zertifiziert und erreichen die Energieeffizienzklasse A+. Herzstück des Energiekonzepts als Plusenergiehaus ist jeweils eine leistungsstarke Photovoltaikanlage mit Batteriespeicher, kombiniert mit einer modernen Luft/Wasser-Wärmepumpe. Damit decken Sie zwischen ca. 65 % und 85 % Ihres gesamten Strombedarfs über das Jahr selbst - einschließlich Heizen, Kühlen, Haushalt und Laden Ihres E-Autos.
Die Nutzung des Stroms aus der Photovoltaikanlage, welche ca. 11.000 kWh pro Jahr erzeugt ist in der Miete enthalten. Bei einem angenommenen Eigenverbrauch von z.B. 70 % und Stromkosten von 35 Ct/kWh ergibt sich ein finanzieller Vorteil von ca. 2.900,- EUR pro Jahr.*
Wird dies berücksichtigt, entspricht Ihre Warmmiete nur etwa der Höhe der Kaltmiete. Das ist ein wesentlicher Vorteil eines Plusenergiehauses, welches über das Jahr gesehen mehr Energie erzeugt als es selbst benötigt.
Die Nebenkosten Strom, Wasser/Abwasser und Müll rechnen die Versorger direkt mit Ihnen ab. Dort können Sie mit einer Größenordnung von ca. 80,- EUR pro Monat kalkulieren. Für die Nebenkosten wie Grundsteuer, Haftpflicht, Wohngebäudeversicherung und Wartungen wird eine monatliche Vorauszahlung von 169 EUR mit der Miete erhoben und jährlich abgerechnet.
Im Mietvertrag wird auch eine Indexmietregelung enthalten sein. Die Miete kann demnach künftig im Rahmen der Entwicklung des vom Statistischen Bundesamtes ermittelten Verbraucherpreises (VPI) angepasst werden.
Die Häuser befinden sich aktuell in der finalen Bauphase und stehen Ihnen ab März 2026 zum Erstbezug direkt vom privaten Eigentümer provisionsfrei zur Verfügung. Bei Interesse freue ich mich über Ihre Kontaktaufnahme mit einer kurzen persönlichen Vorstellung. Lassen Sie sich dieses besondere Mietangebot nicht entgehen - hier beginnt Ihr neues Kapitel voller nachhaltiger Lebensqualität.
*Abhängig von Sonnenstunden, individuellem Verbrauchsverhalten und gewähltem Stromanbieter sind diese angenommen Werte als Richtschnur für die Abschätzung einer realistischen Größenordnung zu verstehen. Besonders gut lässt sich der Solarstrom z.B. durch das regelmäßige Laden eines E-Fahrzeuges ausnutzen.
Ruhe mit Blick über Felder: Exklusives wohngesundes Plusenergie-Doppelhaus, S-Bahn fußläufig
An der Vogelweide 66,
04178 Leipzig
Auf Karte anzeigen
Infos
| Haustyp | Doppelhaushaelfte |
|---|---|
| Etagenzahl | 3 |
| Wohnfläche ca. | 158 m2 |
| Nutzfläche | 170 m2 |
| Grundstücksfläche | 380 m2 |
| Bezugsfrei ab | 01.03.2026 |
| Zimmer | 6 |
| Badezimmer | 2 |
| Garage/Stellplatz | Außenstellplatz |
| Anzahl Garage/Stellplatz | 2 |
Kosten
| Kaltmiete |
2.675 € |
|---|---|
| Nebenkosten | keine Angabe |
| Heizkosten | keine Angabe |
| Gesamtmiete | 2.675 € |
| Kaution o. Genossenschaftsanteile | 8025 EUR |
Weiter mieten oder doch kaufen?
Wer in Miete wohnt, überweist dem Vermieter im Laufe der Jahre hohe Summen, die sich
auch in die eigenen vier Wände investieren lassen könnten.
Bausubstanz & Energieausweis
| Baujahr | 2026 |
|---|---|
| Objektzustand | Erstbezug |
| Wesentliche Energieträger | Solarheizung |
| Energieausweis | liegt zur Besichtigung vor |
Beschreibung des Objekts
Ausstattung
Terrasse, Garten, Vollbad, Duschbad, Einbauküche, Gäste-WC, Laminat, Fliesen
Bemerkungen:
Die Doppelhaushälften überzeugen mit einer modernen, durchdachten Ausstattung, die Komfort, Design und Nachhaltigkeit vereinen.
Highlights je Einheit:
•4 m breite Hebe-Schiebetür im Wohnzimmer mit Übergang zur großen, einladenden Terrasse im individuell gestaltbaren Garten
•Fußbodenheizung in allen Räumen
•Kontrollierte Wohnraumlüftung mit Wärmerückgewinnung
•Luft/Wasser-Wärmepumpe mit Kühlfunktion im Sommer
•10,8 kWp Photovoltaikanlage mit 9,6 kWh Batteriespeicher
•hochwertige Einbauküche mit Markengeräten von Siemens
•Elektrische Aluminium-Rollläden für Komfort und Sicherheit
•Netzwerkverkabelung in allen Räumen
•250 MBit/s DSL-Anschluss im Haus anliegend
•Feinsteinzeug in naturgetreuer Parkettoptik im gesamten Erdgeschoss
•Hochwertiger Laminatboden in den Obergeschossen
•bodentiefe Südfenster für lichtdurchflutete Räume
•Wandaufbau aus 85 % nachwachsenden Rohstoffen mit natureplus-Gütesiegel
•zertifiziert gesundes Wohnraumklima (QNG Plus)
•Spitzboden mit praktischer Auszugstreppe - ideal als zusätzlicher Stauraum
•Parkmöglichkeiten: 2 Stellplätze unmittelbar am Haus (im Mietpreis enthalten)
•11 kW-Wallbox mit Solarstrombezug (im Mietpreis enthalten)
Lage
Die Doppelhaushälften liegen in einer besonders ruhigen, ländlich geprägten Umgebung am Rand von Leipzig-Rückmarsdorf. Gleichzeitig ist der Hauptbahnhof nur eine 12-minütige Fahrt mit der S6 entfernt. Im Süden grenzt das Grundstück mit seinem Garten direkt an offene Felder und bietet einen herrlich weiten, ungestörten Blick ins Grüne. Auf der Nordseite verläuft eine kleine asphaltierte Straße in einer 30er-Zone des Wohngebiets - ideal für Familien mit Kindern und beliebt bei Spaziergängern. Das Umfeld ist geprägt von einer über Jahrzehnte gewachsenen Bebauung mit Einfamilienhäusern und gepflegten Gärten. In den letzten Jahren wurden nahezu alle freien Flächen durch Neubauten ergänzt, was die hohe Wohnqualität der Lage unterstreicht.
Rückmarsdorf ist ein charmanter Stadtteil - ruhig, grün und gleichzeitig hervorragend angebunden. Hier genießen Sie die Vorzüge naturnahen Wohnens, ohne auf die Nähe zur Leipziger Innenstadt verzichten zu müssen. Familien schätzen die Sicherheit, die gute Nachbarschaft und das vielfältige Freizeitangebot. Berufspendler profitieren von der schnellen Anbindung via S-Bahn, Bus und Autobahn. Alle wichtigen Einrichtungen des täglichen Bedarfs - von Supermärkten und Bäckereien über Ärzte und Apotheken bis hin zu Schulen und Kindergärten - sind bequem erreichbar.
Wer Wert auf ein ausgeglichenes, nachhaltiges Lebensumfeld bei idealer Anbindung legt, findet hier den perfekten Ort zum Ankommen.
Anbindungen:
•Fußläufig: großer Spielplatz (3 Min), Einkaufszentrum "LöwenCenter" (12 Min), Saale-Leipzig-Kanal, ehemalige Kiesgrube Rückmarsdorf
•Fahrrad: Kita, Grundschule, Arztpraxen, Wald Bienitz (5 Min), Kulkwitzer See (16 Min), Musikalische Komödie (18 Min), Neues Rathaus (29 Min)
•ÖPNV: S-Bahnhof Rückmarsdorf (11 Min zu Fuß +12 Min bis Leipzig Hbf, +39 Min bis Naumburg); Bus-Linien: 62, 130, 131, N3, X5
•Auto: A9 (8 Min), A38 (14 Min), Leipzig Hbf (14 Min)
Sonstige Angaben
Heizungsart: Fußbodenheizung
Energieträger: Solar
Energieausweis nicht vorhanden
ohne-makler (OM) ist weder Anbieter noch Vermittler der Immobilie. OM betreibt eine Plattform für Immobilieneigentümer, die unter anderem die gleichzeitige Veröffentlichung einzelner Inserate auf mehreren Immobilienportalen ermöglicht. Die Inhalte dieser Inserate werden ausschließlich von Dritten verantwortet. Für die Richtigkeit, Vollständigkeit oder Rechtmäßigkeit der Angaben übernimmt OM keine Haftung. Hinweise auf mögliche Rechtsverstöße können jederzeit gemeldet werden und werden nach Prüfung umgehend bearbeitet.
Grundriss
EG - beide Haushälften
>
>
1. OG - beide Haushälften
>
>
2. OG - beide Haushälften
>
>
Adresse
An der Vogelweide 66, 04178 Leipzig
Interessante Orte
Preis- und Lageinformationen
Preistrend für Bestandsimmobilien in Burghausen-Rückmarsdorf